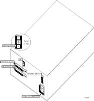
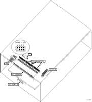
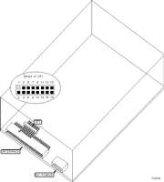
Tape drives. SCSI