KINGSTON TECHNOLOGY CORPORATION

DK100-DE8

Device Type

Internal Tape Drive

Interface

SCSI

Format

DAT, DDS

Sustained Transfer Rate

700 KBPS

Size

5.25 in. Half-height

View

Top

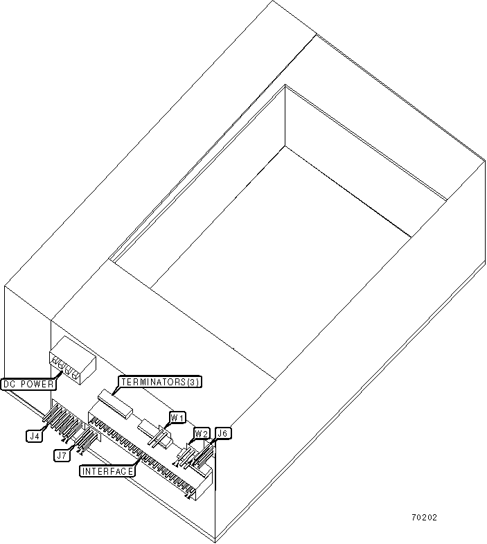
USER CONFIGURABLE SETTINGS

Setting

Label

Position

»

Factory configured - do not alter

J7

Unidentified

»

Termination enabled

W2

Pins 1 & 2 closed

 

Termination disabled

W2

Pins 2 & 3 closed

»

Factory configured - do not alter

J6

Unidentified

DRIVE SELECT ID

Note: SCSI ID is selected by either rotating the Unit Select Rotating Switch inside the Receiving Frame, or installing a connector at J4 and setting the ID through a remote location.

TERMINATION POWER SELECTION

Setting

W1

»

TERMPWR supplied by drive to SCSI interface

Closed

 

TERMPWR supplied by SCSI interface to drive

Open

MANUFACTURERS RECOMMENDED MEDIA

Tape

Capacity

90-meter DDS

8GB