The Project Gutenberg EBook of The Art of Building a Home, by 
Barry Parker and Reginald Unwin

This eBook is for the use of anyone anywhere in the United States and most
other parts of the world at no cost and with almost no restrictions
whatsoever.  You may copy it, give it away or re-use it under the terms of
the Project Gutenberg License included with this eBook or online at
www.gutenberg.org.  If you are not located in the United States, you'll have
to check the laws of the country where you are located before using this ebook.

Title: The Art of Building a Home
       A collection of lectures and illustrations

Author: Barry Parker
        Reginald Unwin

Release Date: August 28, 2020 [EBook #63071]

Language: English

Character set encoding: UTF-8

*** START OF THIS PROJECT GUTENBERG EBOOK THE ART OF BUILDING A HOME ***




Produced by MWS, Charlie Howard, and the Online Distributed
Proofreading Team at https://www.pgdp.net (This file was
produced from images generously made available by The
Internet Archive/American Libraries.)






Transcriber’s Note

Larger versions of most plates towards the end of this eBook may be seen by right-clicking them and selecting an option to view them separately, or by double-tapping and/or stretching them.

THE ART OF
BUILDING A HOME.


MANCHESTER:
Chorlton & Knowles, Mayfield Press.

1901.


T

THE ART OF
BUILDING
A HOME.

A Collection of Lectures and
Illustrations by Barry Parker
and Raymond Unwin.

Longmans, Green & Co.,
39, Paternoster Row, London,
New York, & Bombay,
1901.


PREFACE.

S

Some time ago I published a reprint of two of my articles with illustrations which had appeared in “The Building News.”

This little publication, though long out of print, being still constantly asked for; and the need of something to take its place being felt by us; the question of re-issuing it arose. Instead of doing this, however, it seemed better, as being a later and fuller expression, to collect two or three of the lectures which my partner and I had from time to time written for various audiences; and to add by way of illustration some of the sketches and photographs we had by us.

So came into existence this book in its present form.

BARRY PARKER,
The Quadrant, Buxton, 1901.


CONTENTS OF THIS BOOK. Page.
Introduction I-VI
I. Of the Smaller Middle Class House 1
Barry Parker.
II. Of the Dignity of All True Art 21
Barry Parker.
III. Of our Education in Art 37
Barry Parker.
IV. Of Art and Simplicity 55
Raymond Unwin.
V. Of Furniture 69
Barry Parker and Raymond Unwin.
VI. Of Building and Natural Beauty 83
Raymond Unwin.
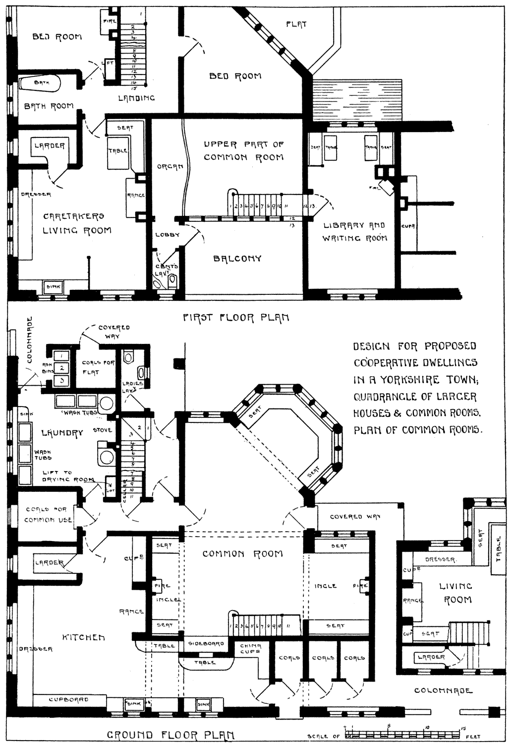
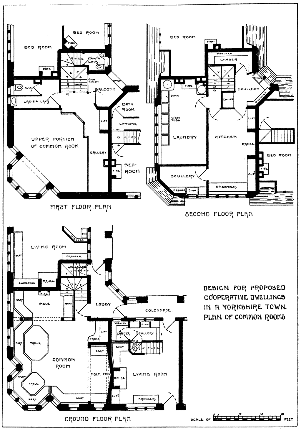
VII. Of Co-operation in Building 91
Raymond Unwin.
VIII. Of the Art of Designing Small Houses and Cottages 109
Barry Parker and Raymond Unwin.
List of Plates and Plates at the end. 136

i


INTRODUCTION.

The way we run in ruts is wonderful: our inability to find out the right principles upon which to set to work to accomplish what we take in hand, or to go to the bottom of things, is simply astonishing: while the resignation with which we accept the Recognised and Usual as the Right and Inevitable is really beautiful.

In nothing is this tendency more noticeable than in the art of house-building. We begin by considering what, in the way of a house, our neighbours have; what they would expect us to have; what is customary in the rank of life to which we belong; anything, in fact, but what are our actual needs. About the last thing we do is to make our home take just that form which will, in the most straightforward manner, meet our requirements.

It is too often evident that people, instead of being assisted, and their lives added to, by the houses they occupy, are but living as well as may be in spite of them. The house, planned largely to meet supposed wants which never occur, and sacrificed to convention and custom, neither satisfies the real needs of its occupants nor expresses in any way their individuality.

The planning having been dictated by convention, all the details are worked out under the same influence. To each house is applied a certain amount of meaningless mechanical and superficial ornamentation according to some recognised standard.ii No use whatever is made of the decorative properties inherent in the construction and in the details necessary to the building. These are put as far as possible out of sight. For example, latches and locks are all let into the doors leaving visible the knob only. The hinges are hidden in the rebate of the door frame, while the real door frame, that which does the work, is covered up with the strip of flimsy moulded board styled the architrave. All constructional features, wherever possible, are smeared over with a coat of plaster to bring them up to the same dead level of flat monotony, leaving a clear field for the erection of the customary abominations in the form of cornices, imitation beams where no beams are wanted, & plaster brackets which could support, and do support, nothing. Even with the fire the chief aim seems to be to acknowledge as few of its properties and characteristics as possible; it is buried as deep in the wall, and as far out of sight and out of the way as may be; it is smothered up with as much uncongenial and inappropriate “enrichment” as can be crowded round it; and, to add the final touch of senseless incongruity, some form of that massive and apparently very constructional and essential thing we call a mantelpiece is erected, in wood, stone, or marble, towering it may be even to the ceiling. If we were not so accustomed to it, great would be our astonishment to find that this most prominent feature has really no function whatever, beyond giving cause for a lot of other things as useful and beautiful as itself, which exist only thatiii they may be put upon it, “to decorate it.”

Could we but have the right thing put in the right place and left alone, each object having some vital reason for being where it is, and obviously revealing its function; could we but have that form given to everything which would best enable it to answer the real purpose for which it exists; our houses would become places of real interest.

The essence and life of design lies in finding that form for anything which will, with the maximum of convenience and beauty, fit it for the particular functions it has to perform, and adapt it to the special circumstances in which it must be placed. Perhaps the most fruitful source whence charm of design arises in anything, is the grace with which it serves its purpose and conforms to its surroundings. How many of the beautiful features of the work of past ages, which we now arbitrarily reproduce and copy, arose out of the skilful and graceful way in which some old artist-craftsman, or chief mason, got over a difficulty! If, instead of copying these features when and where the cause for them does not exist, we would rather emulate the spirit in which they were produced, there would be more hope of again seeing life and vigour in our architecture and design.

When the architect leaves the house, the subservience to convention is not over. After him follow the decorator and the furnisher, who try to overcome the lifelessness and vapidity by covering all surfaces with fugitive decorations and incongruous patterns, and filling the rooms with flimsyiv stereotyped furniture and nick-nacks. To these the mistress of the house will be incessantly adding, from an instinctive feeling of the incompleteness and unsatisfactoriness of the whole. Incidentally we see here one reason why the influence of the architect should not stop at the completion of the four walls, but should extend to the last detail of the furnished house. When his responsibility ceases with the erection of the shell, it is natural that he should look very little beyond this. There is no inducement for him to work out any definite scheme for a finished room, for he knows that if he had any aim the decorator and furnisher would certainly miss it and would fail to complete his creation. If, when designing a house, the architect were bearing in mind the effect each room would have when finished and furnished, his conceptions would be influenced from the very beginning, and his attitude towards the work would tend to undergo an entire change. At present he but too readily accepts the popular idea of art as a thing quite apart from life, a sort of trimming to be added if funds allow.

It is this prevalent conception of beauty as a sweetmeat, something rather nice which may be taken or left according to inclination after the solid meal has been secured, which largely causes the lack of comeliness we find in our houses. Before this idea can be dispelled & we can appreciate either the place which art should hold in our lives or the importance of rightly educating the appreciation of it, we must realise that beauty is part of the necessaryv food of any life worth the name; that art, which is the expression of beauty as conceived and created by man, is primarily concerned with the making of the useful garments of life beautiful, not with the trimming of them; and that, moreover, in its higher branches art is the medium through which the most subtle ideas are conveyed from man to man.

Understanding something of the true meaning of art, we may set about realising it, at least in the homes which are so much within our control. Let us have in our houses, rooms where there shall be space to carry on the business of life freely and with pleasure, with furniture made for use; rooms where a drop of water spilled is not fatal; where the life of a child is not made a burden to it by unnecessary restraint; plain, simple, and ungarnished if necessary, but honest. Let us have such ornament as we do have really beautiful and wrought by hand, carving, wrought metal, embroidery, painting, something which it has given pleasure to the producer to create, and which shows this in every line—the only possible work of art. Let us call in the artist, bid him leave his easel pictures, and paint on our walls and over the chimney corner landscapes and scenes which shall bring light and life into the room; which shall speak of nature, purity, and truth; shall become part of the room, of the walls on which they are painted, and of the lives of us who live beside them; paintings which our children shall grow up to love, and always connect with scenes of home with that vividness of avi memory from childhood which no time can efface. Then, if necessary, let the rest of the walls go untouched in all the rich variety of colour and tone, of light and shade, of the naked brickwork. Let the floor go uncarpeted, and the wood unpainted, that we may have time to think, and money with which to educate our children to think also. Let us have rooms which once decorated are always decorated, rooms fit to be homes in the fullest poetry of the name; in which no artificiality need momentarily force us to feel shame for things of which we know there is nothing to be ashamed: rooms which can form backgrounds, fitting and dignified, at the time and in our memories, for all those little scenes, those acts of kindness and small duties, as well as the scenes of deep emotion and trial, which make up the drama of our lives at home.

B. P.
R. U.


1

THE SMALLER MIDDLE CLASS HOUSE.

A lecture delivered before an audience of architects in 1895.

I

In the class of house with which we are to deal to-night, there are so many directions in which improvement is needed, that it will only be possible for me, in the space of one lecture, to refer to a few of them, and to those specially which will illustrate most suggestively the main principles for which I contend: suggestively, in the hope that some present will do me the honour of giving further thought to what I shall touch upon, than is possible to them during the length of time assigned to me this evening.

The influences which our common every-day surroundings have upon our characters, our conceptions, our habits of thought and conduct, are often very much underrated; we do not realise the power they have of either aiding or hindering the development in us of the best or worst of which we are capable.

Of the capacity the mere contour of a moulding has to bear the impression of refinement or vulgarity, we, as architects, are fully aware; but, I think, may not quite as fully realise the harmful influence of imperfect and unspontaneous drawing, or ill-conception in pattern design, or ill-assorted combinations of colour.

The thing of first consideration in designing a house is convenience, workability. The plan is that2 which should be first thought of; so, in our small middle class house, I will try to suggest one or two of the improvements that seem to be most wanted in planning.

Diagrams 1, 2, 3

First of all, for the sake of any who may be here who are not architects, I will just point out what is the most comfortable form of room for a sitting room with respect to the relative positions of the door, windows, and fire. If your room must, of necessity, be square or oblong (which should be the case as seldom as possible), the form most conducive to comfort, is of course this: diagram 1. The second best arrangement, (when this cannot be got) is to have the door and fire both on the long wall, diagram 2. When the door is on the opposite wall to the fire, you never feel to be able to get out of the draught of it; and of course this kind of thing, diagram 3, is too palpably bad to need that anything should be said regarding it.

One of the first defects we notice in the plans of houses of the class we are speaking of, as usually3 laid down, is that there are too many rooms & all therefore necessarily too small. In the larger middle class house there are generally drawing room, dining room, library, kitchens, and offices, all tolerably good rooms. Now, when a smaller house is wanted, the general custom seems to be, to put exactly the same number of rooms, only reducing all in size. Would it not be far better to reduce the number of rooms, keeping such rooms as we do retain, large enough to be healthy, comfortable, and habitable?

Are not many of the houses we know only too well, most distressing in this respect, divided up, as they are, into a number of small compartments, we cannot call them rooms, all far too small to be healthy; too small to be really fit for human habitation. And what is gained by this cramping? Only that there shall be one or more of these compartments practically useless. In far the greater number of these houses the third room is never used, or used merely because it happens to be there, and its chief end seems to be to provide a place for the women of the household to spend any spare time they may have, cleaning down, dusting &c.

Now many people have a feeling that there is a certain cosiness in a small room entirely unattainable in a large one; this is a mistake altogether; quite the reverse has been my experience, which is that such a sense of cosiness as can be got in the recesses of a large room, can never be attained in a small one, be it no larger than a sentry box. But if your big room is to be comfortable it must have4 recesses. There is a great charm in a room broken up in plan, where that slight feeling of mystery is given to it which arises when you cannot see the whole room from any one point in which you are likely to sit; when there is always something round the corner.

And what is made of the hall? Generally one of two things; either it is a passage with a kind of step-ladder for a staircase and a hat stand in it, with not room enough for you to hold the door and let a friend out; or it is a great bare cold comfortless waste space, in the centre of the house: instead of being, as it might, the most comfortable and homely room, the centre of the common life of the household.

Of course a hall of this kind needs some care in planning. In the first place, the staircase must occupy exactly that position in which it can be made an ornament and a pleasing feature in the room, all of which it is quite capable of being, and a position in which it does not detract from the cosiness, or give any unpleasant feeling of draughtiness, or too great openness. In the second place, the doors necessarily opening into a hall must be carefully so grouped that the parts of the room in which anyone would sit, shall be out of the draught of them as far as possible.

Any house is cold all through the winter months unless a fire of some kind is kept burning in the hall; many people, therefore, find it necessary to have a stove or heating apparatus; and, in most houses, it is thought necessary to have two other5 fires burning, one in the living room, and one in some other room that there may be somewhere to show visitors. Now when the hall is also a sitting room, with a fire in it, we get, for the trouble and expense of two fires, all the advantages ordinarily attaching to three.

I must now pass on to Decoration and Furniture. The best test of the artistic merits or demerits of a room as a whole, is the impression it makes, on one’s entering for the first time. We can get accustomed to anything, and it is from this fact, taken in conjunction with what we have already noted, of the power as an influence for advancement or degradation of beautiful or unbeautiful surroundings, that the importance of our subject to-night is partly drawn. And what should be our feeling, on entering a room? Simply this: How exquisitely comfortable! For the first essential in the form and design of any decorative object, (and everything in a room should be a decorative object), is reposefulness. I feel herein to be guilty of giving utterance to a truism, and I should hardly dare to state so obvious a fact, were it not that I see this first principle so almost universally violated; for, if this test of reposefulness is the test, the average farm house kitchen has an artistic value far beyond that of ninety-nine out of every hundred drawing rooms in the kingdom; and I will endeavour to show why.

The first fault in our rooms which contributes to this result is over decoration. This is an almost universal failing. Everything has a pattern on it and6 almost every pattern is mechanically produced, run out by the yard, and cut off just where it happens to be when the time comes for it to finish. No pattern bears any relation to any other pattern, and the whole effect is fidgety, fussy, and painful to a degree. Nothing is let alone, but every surface must needs be worried and tortured into some unwholesome form of altogether soul-less ornament. We cannot even find rest for our weary eyes on the ceiling, for tortuous intricacies of design meet them there also.

The second fault I wish to refer to, is that all this ornament is made to shout, everything is clamouring for notice. It would not be in place for me to say much here about those rooms in which any one element of decoration is in such flagrantly bad taste as to be noticed, immediately on entering, with a sort of start and feeling of “Oh! wall-paper,” or “Oh! carpet,” or whatever it may happen to be. (A designer will often aim at this for the sake of the advertisement and at the sacrifice of his artistic principles). But even when this extreme is not reached, everything seems trying within certain limits to assert itself, to attract attention.

Now any ornament you notice when you do not look for it, or perhaps I might better say, when you do not wish to think of it, is necessarily in bad taste. The degree of assertiveness admissible in a decorative object depends upon the degree of its naturalisation or conventionalisation, or, to put it another way, on the degree in which it is fine or mechanical. And though we cannot pretend to7 regulate by rules of this kind, pictures which are direct mirrors as far as possible of real things, yet, in so far as they are mural decorations, they come under this law.

Mr. Ruskin’s wall, painted to look like a vinery, would admit of much more forcible treatment, being entirely painted by hand and as true to nature as possible, than would a wall with a printed vine pattern on it in which there necessarily was repetition. And natural flowers painted may fittingly be treated much more forcibly than would be admissible in a purely conventional design, because natural flowers, hills, & trees, cannot become assertive enough to influence one disquietingly. Therefore the more nearly approaching to nature, the more assertive may be our ornament, or rather the less assertive it will be from this very reason, and therefore may be the more forcible in treatment. So we can stand, in a conventional pattern design, a degree of contrast in tones, which we could not tolerate in flat masses of colour.

One of the chief underlying causes of this failing of fussiness we have noted, is, that a room is scarcely ever designed as a whole, never enough thought of as a whole. The designer of each individual thing, knowing nothing of the form or character which anything else in the room was going to take, thought only of his own design, & worked enough interest into it to make it all-sufficient in itself; and the consequence, when his design gets put into a room in conjunction with a lot of other things, all designed in just the same spirit, is,8 that restlessness we have been deploring.

A room is a place in which to think of other things besides those relating exclusively to the room itself, and so much incident and interest should not be worked into it as to distractingly affect the pursuance of these thoughts & occupations. I say again, any ornament which you notice when you do not wish to is necessarily in bad taste.

When choosing anything, a wall paper for instance, we forget that we are, while so doing, devoting all our thought and attention to the design we are considering; and that, though pleasing under these circumstances, it may not be equally so to have by us when we wish to think of other things, or in the position for which we intend it. Now no flat mechanical ornament, designed to cover a large space, should ever be so designed that you are able easily to trace the pattern at the other side of the room. Please do not understand from this that it should be small in design; far from it; things small in design are, almost necessarily, finikin and therefore unreposeful; but being quiet and retiring in colour and contrast of tones, whether large or small, let it reveal, when you come to have leisure to examine it, vigorous broad and direct treatment, good loving thoughtful drawing, real artistic conception, and perception of beauty in form and line.

How seldom we get these qualities: how laboured and unspontaneous most patterns are! Into what unwholesome forms the ornament is tortured, how the one aim seems to be to make the design as9 restless and fussy as possible! A sort of feeling pervades the whole, that the designer could not let the thing alone.

I think we must not now go far into the faults in actual draughtsmanship most common in our designs. But one thing is very striking: our designers, almost without exception, seem to be out of their depth directly anything in the way of foreshortening is required of them; this cannot but lead us to the conclusion, that drawing from Nature does not form a sufficiently important part of their training. In fact I have myself known several men, engaged entirely in drawing ornament, who never drew a bud or twig from Nature in their lives. However this may be, the fact remains that very few of our designers seem able to draw a leaf turning over with any truth and accuracy.

Another cause of failure in our rooms is the dread of repeating ourselves. With my wish that a more wholesome feeling in this may spring up among all engaged in artistic work, I am perhaps more anxious to have your sympathy than with anything which has gone before. Let us then do nothing different from what we have done before, until we feel it to be better than what we have done before.

Now this fear of repetition is no imaginary evil, but a very real and living one. How often do we all attempt something fresh, knowing it not to be the best we can do, (best I mean more in kind than degree) simply from a weak dislike that people should say of us, that we have only one style. How often do we turn out a design for a certain purpose10 and position, knowing it to be not so good as one we have before made for a similar purpose and position, simply because we have not strength to repeat what we believe to be best, lest people should think that is all we can do. In so doing we preclude all possibility of development.

Now observe, this never occurs during the progress of any living art in the past. The man who had carved one Early English capital did not, when next he had a capital to carve, say, “I know nothing more beautiful, but I must at any rate do something different, I must not put the same capital here again.” On the contrary, his aim was to carve a similar capital again, only he would try to do a better one; for probably he had noticed some little point in which he could improve on the last he did; some way in which he could mass his light and shade so as to give them a more pleasing form when seen at a distance; or some more lovely feeling it was possible to introduce into the reveal of a leaf or the curve of a stem.

You must forgive me if I dwell on this a little. For it is of vital importance that all of us who have any hope or wish to see a living art again existent among us, should realise the full significance of this. There are many other changes which must take place in our practice of the arts, and these very radical changes, before living art is again possible to us; but if I can bring home to anyone, directly or indirectly, the full significance of this, I shall have done something towards this great end.

In excuse it may be and is said, “This aiming at11 change, variety, novelty, &c. is demanded of the designer by a capricious change-loving public, broadly speaking, incapable of any true judgment or appreciation of good and bad in art.” In reply to this, I think we cannot do better than recall what Mr. Ruskin says on this head. “You may like making money exceedingly; but if it come to a fair question, whether you are to make five hundred pounds less by this business, or to spoil your building, and you choose to spoil your building, there’s an end of you. So you may be as thirsty for fame as a cricket is for cream; but, if it come to a fair question, whether you are to please the mob, or do the thing as you know it ought to be done; and you can’t do both, and choose to please the mob,—its all over with you;—there’s no hope for you; nothing that you can do will ever be worth a man’s glance as he passes by.”

A further cause of failure in decorating and furnishing is virtually the same as we noticed when speaking of planning. When a small middle class house is wanted, what is usually done, we saw, is virtually to take a plan suitable for a larger house and reduce it every way, instead of designing a house suited to the new requirements. This same mistake is generally made in the decoration and furniture; instead of these being designed to suit the condition or circumstances in which they are to be placed, each designed for its position and purpose, and good and honest as far as it goes, what do we find? Cheapened imitations of the sort of thing common in the larger house, cheapened12 by being badly made, by veneer on pine instead of solid wood, by cast metals and ornament made to look like wrought, by machine carved wood, by marbled slate, &c. P. G. Hubert in his little book entitled “Liberty and a Living,” says: “One of my critics, for whom I have great personal deference, tells me that my theory of life tends to a relapse into barbarism, and in illustration of the truth of his position, he pointed one evening to a music stand near the piano with the remark: “With your ideas, that stand would never be made of mahogany and elaborately ornamented, but would be of pine, perhaps stained.”

“Well, suppose it was, I am inclined to think that the greater use of common material, stained pine and other cheap wood, in the houses of people of taste is a distinct indication of a needed reform. Take the little music stand in illustration. Its purpose is to hold a number of music books and loose sheets of music. It has three or four shelves, and is so made as to stand in a corner near the piano and take up but little room. It is made of mahogany, highly polished, & is ornamented, as most people would call it, with a sort of stucco-beading, which to me is distasteful. But it cost money, and therefore has its reasons for being in certain eyes. I have forgotten what it cost me—probably from fifteen to twenty dollars. Thanks to the growth of good taste, I can to-day pick out from half-a-dozen books I know of a little design for a music stand, or sketch it myself, and the nearest carpenter will make the thing in a day at a cost of two or three13 dollars for wood, labor, and staining. The result will be something which is pleasanter to my eye, and I will venture to say to the eyes of nine out of ten persons of educated taste. The other fifteen or sixteen dollars saved may be devoted to books, pictures, music—any of the things which really add something to life. The music stand of stained pine will do its work just as well as the one made of mahogany, inlaid with stucco beading—in fact it will do it better, for it will not need a periodic rubbing on the part of the parlour-maid to keep it bright and polished, and it can be moved about when occasion demands, as it weighs but little. It is as strong as the other, and it will last a hundred years.”

And now for the last cause of failure of which I shall speak, and this is: the very marked feeling which everything has of not having been designed for its place: the look everything has of being ready to move at any moment. Most things to look right and happy in their places must be designed for their places. The advantages attaching to a room furnished in this way, and largely by means of fixtures, I think the accompanying sketches will do something to illustrate.

There is a unity, completeness, comfort, and repose about such a room, which can never be got in a room in which the furniture &c. is not designed for its position and looking at home there, but is just temporarily stuck where it happens to stand, with a look of being on the alert, and ready to move on at a moment’s notice.

But it is time to sum up our position and note 14 the general conclusions to which we are led. I have described some of the defects we most commonly see in planning, and the arrangement of the hall; the entire want of reposefulness, (that infallible criterion of good ornament), that troubles the man of taste in nearly all domestic decorative work; and the lack of fitness in the furniture that is generally crowded into the rooms of smaller middle class houses, which adds the final touch to the complete failure, from an artistic point of view, of the great majority of such rooms.

I further mentioned as causes generally contributing to this failure, over-decoration, the covering of all surfaces with a mass of incongruous patterns, quite fatal, even where the designs are in themselves good: the effortfulness of most ornament, by which every pattern seems to clamour for notice, in which connexion I stated as a guiding principle, that any ornament you notice before you look for it, is likely to be in bad taste. Further I noticed the laboured and unspontaneous character of so many of the designs themselves and the lack of good drawing in them, and hinted that this arose partly from the designer’s dread of repeating himself, and his eagerness to produce something fresh without considering whether it was better. Finally I drew attention to the way in which so many rooms are furnished with cheap imitations of better or more esteemed materials, decorated with cast, or otherwise mechanically produced imitations of hand-wrought ornament, and the general15 unfitness, and ready-to-move look, which results from there being no fixed furniture, but all having been designed without any thought of the room, and the room planned without any view to its furniture.

I have several times hinted that the entire lack of unity, which is the inevitable result of all this, must continue, so long as our rooms and our houses are never thought out as a whole, so long as one man plans the building, another arranges the decorations, and a third picks up the furniture of twenty designers, here and there and everywhere. It is essential to any good result, that one man should design the house as a whole. I do not mean necessarily that he should design everything in it, or draw with his own hand every detail; but he must exercise a controlling power, selecting where he does not design, and ensuring that the work of all may be done in a spirit of co-operation towards the complete whole which he planned.

You will all be wishing to ask me, I doubt not, how this is possible in our days of speculative building, short leases & shorter tenancies. I must at once admit that to a large part of this work such a system is inapplicable, though even here much could be done if each department made what improvements are possible irrespective of the others. The lack of power to control the decorations does not excuse a badly planned hall. But outside the purely speculative building there is yet a large amount of work to which the system is applicable, in greater or less degree, such degree16 mainly depending on our clients: and here we have the real difficulty. We are powerless to compel our clients, nay, to a large extent, the client has a right to have his own way.

I suppose a doctor is in a similar fix; he is called in to prescribe for a patient and finds his prescription is useless because the patient will continue to smoke; he does not, if he is worth anything, accept the situation; but he explains that smoking is, in this case, fatal, that it renders his skill unavailing; and, if all his advice is neglected, he will finally refuse to act.

Architecture is rightly called a profession only when the architect advises his client what is best, and brings the whole weight of his knowledge and experience to persuade him from anything foolish, or in bad taste. When he produces to order some plan of which he cannot approve, he is merely a merchant of plans.

While speaking of this duty of the architect, I would not be thought to make light of many conditions of modern life which will, so long as they continue, and to the extent to which they spread, hinder all attempts to produce beautiful and dignified homes. One such condition is the instability of social position; everyone is seeking to get a step further up the social ladder. The result is a demand for houses which look as though they belonged to the social grade next above that of the people who are to live in them. To such untrue aims art refuses any countenance; and it is well. But there is an already great and daily increasing17 number of those who are weary of this fruitless struggle, of a life spent in work entirely without interest or beauty, or the power of giving a vestige of real pleasure, that they may have the means to acquire things without interest, beauty, or the power of giving any pleasure beyond the sordid satisfaction of letting Mr. and Mrs. So-and-So see they can afford to have them. These are anxious to find houses suited to their genuine wants, houses in which the work will be reduced to a minimum, and the beauty increased to a maximum, by the only true method of making all the useful and necessary things beautiful; not by the false method of keeping all useful & necessary things out of sight, trying to conceal their purpose or to appear unconscious of their existence, and substituting for them things recognised to be useless but regarded (so long as the fashion lasts at any rate) as beautiful.

This polished mahogany life of ours, with stucco trimmings and jerry joints presented for view to our visitors and acquaintances in the front room, is not, I believe, what many of us really want; we are tired also of the dismal and cramped, but at anyrate real, back office, back room, and kitchen life; & many are looking for houses in which they shall not spend their labour for that which is not bread, but shall be able to live a life of less artificiality than our present complex 19th century existence, a truer, healthier life altogether.

I have just said, that the true method of making a room beautiful is to make all the necessary and18 useful things in it beautiful; so much is this true that it becomes almost impossible to design a really beautiful room that is to have no useful work done in it or natural life lived in it. An architect called upon to design a room in which nothing more earnest is to be done than to gossip over afternoon tea has, indeed, a sad job.

For a room must always derive its dignity or meanness from, and reflect somewhat, the character and kind of occupation which is carried on in it. For instance, the studio of an artist, the study of a man of letters, the workshop of a carpenter, or the kitchen of a farmhouse, each in its position and degree, derives a dignity and interest from the work done in it. And the things in the room bear some relation to that work, and will be the furniture and surroundings natural to it; as the bench and tools in the carpenter’s shop; the easels and canvasses in the studio; the books and papers in the study; and the bright pans and crockery in the kitchen. All these lend a sense of active, useful, human life to the room, which redeems it from vulgarity, though it be the simplest possible; and no amount of decoration or ornamentation can give dignity or homeliness to a room which is used as a show room, or in which no regular useful life is lived. For in the work room all things have a place, by reason of their usefulness, which gives a sense of fitness and repose entirely wanting in a room where a place has obviously had to be found for everything, as in a drawing room.

How far things beautiful alone, are to be allowed19 place in our rooms I am not prepared to say. Thoreau, you will remember, threw away his fossil, the only ornament in his room, because it required dusting. While not suggesting that we should follow his example to such an extreme, I yet think that in retaining his spade and his axe he retained more of true decoration. And I believe in the main that the more adapted to its use anything is, the more graceful will it be in shape. The bent handle of the axe, more comfortable to hold, is also more beautiful than the straight, and in the degree the curve and form of the handle is adapted to its uses as an axe, by just so much the more beautiful it becomes.

The charm of the farmhouse kitchen, with everything in its place because of its usefulness, can of course be increased to an unlimited extent by making all the useful articles also beautiful in form, and harmonious in color. This is the line on which alone, I contend, a really beautiful room is to be got; and I would discourage all attempts at adornment by finding places for useless things.

I am glad to think that, owing to the great increase of education and employment among ladies, there will be less and less call for the old-fashioned drawing room; ladies will want a room to work in, not to dawdle in.

Pardon me if I seem to have dwelt over long on some of these difficulties in the way of designing really beautiful rooms. I have done so in the belief that they do not, as at first may appear, lie outside our province. For I believe, as professional men,20 we have just such power of influencing our clients by helping them towards a more natural life as the doctor has in such matters as diet; and particularly is this power evident in the domestic branch of the profession, with which we are dealing.

In building a man’s shell for him we certainly can influence very largely the life he will live within it; and while it is our duty to make that shell fit the life as well as possible, it is surely also our privilege to make it conduce to the realisation of the best of which he is capable.

In so far as we do this, we shall rise above the mere planner of houses and take our places in the work of planning and moulding the future life of the people.

BARRY PARKER.


21

THE DIGNITY OF ALL TRUE ART.

T

The kinship between all the various branches of art is so very close, that instead of speaking of them as different arts, it would really be more accurate to describe them as only different media for expression of the same truth. Our object in trying to express ourselves in some one form of art, is to bring home to those to whom this form most appeals, truths which we see are passed over by them unheeded and uncomprehended when expressed in another. Many of the principles and truths I hope to bring before you are so much more easily set forth in other arts than that of language, that the attempt to use this form would seem unnecessary and undesirable were it not for the truth of what I have just said, that each of the arts appeals & clearly expresses its meanings and teachings only to a part of those to whom it is addressed. All feel something of the meanings expressed through art, no matter what form of expression may have been chosen, but every one will be more directly appealed to and will more clearly understand the message expressed in one art than they would that, or some other message, expressed in another.

It cannot be denied that many get from music what they see not in poetry, while others learn from poetry what they miss in music, painting, sculpture, or architecture; that some can feel and know truth in architecture they find not in the22 drama, and many learn from the drama what no other art can teach them.

For though it is true that many of our greatest artists could have expressed themselves, as some have expressed themselves, with equal power through several media; many of our greatest poets might have made equally great painters, and our painters, poets; still few could possibly find time to acquire equal knowledge of several arts. And though most men, being masters of one art, will have abundant sympathy and love for the others, yet life will prove too short for them to come to feel and know the messages or truths of any other with equal clearness. But, having them in the depths of their natures, they will feel, though dimly perhaps, that they are all one, and that their vital truths belong to all alike, and are essentially the same in all, and are of the very life of all that is worthy, all that is beautiful, true, or noble.

Now all the greatest truths are so broad and universal in their very elements, that they are incapable of clear definition and must depend on the subtleties of true art for expression. And in this lies the dignity of all true art, in that by it and through it only can the highest truths be taught, or true education reached.

Music is the most perfect means of saying what cannot be expressed in words. None of us can translate into words what has been revealed to us through music, it is a means of expression above and beyond words; painting, poetry, sculpture, architecture, even a mere colour scheme, can all tell23 us much which is beyond the power of any direct expression. The deeper the truth the more dependent it is upon one or other of these arts for its expression. None of us can say what music has brought home to us, none of us can tell what a beautiful building has said to us. If we try to give all these things in words, “beauty,” “truth,” or that hopelessly feeble phrase “elevating influence,” and kindred terms, are all that come to our aid with which to tell of them. Into these weak inadequate words we have to read all that which we have learned from other arts, & so give them a meaning they are incapable of conveying, unless we have felt it through influences above and beyond them. Music, the most perfect of the arts, is the most subtle, the most inexplicable. It seems to be, (if I may use the expression), the most direct gift of God to man, excepting of course that revelation of Himself which we call Nature, and which is above all arts or anything needing man’s instrumentality.

Why has music this power of calling forth all that is best in us, of making us feel the great things beyond expression? We cannot say.

We feel, and so we know and realise, that music never deceives, and is the only art which is never misunderstood. Her revelation is either taken or left, it is either comprehended or passed by unheeded, but it is never misconstrued. It may be understood and felt in a degree only. It may give more of its message to one than to another, but in so far as it is understood at all, it is truly understood and never misleads, and herein lies its greatness.

Some there are who say they can express by language 24 or other arts what the musician is speaking of in his music; this only shows that all in which music transcends other arts is beyond their conception. The messages music has for us are above and beyond such things as can be put into words, and to have it merely telling a story which could equally well, or perhaps even better, have been told in words, or even to have it imitating the sounds of the sea, the voices of the storm, the whisper of the trees, or the sorrow of the wind, is to miss much of its greatness.

The messages of music may have been at some times the same as those of Nature, in the sea, the stream, or the trees, but to make it merely a less comprehensible language, telling us what written or spoken language can tell us, is to take from it much of its nobility and to deprive it of some of its most sacred prerogatives.

So if we follow this through we see its truth in all the arts. Poetry, partaking of the character of music, can bring home to us things too subtle, too high, to be told to us in prose, but may be misunderstood as music cannot be. In its highest influences, in those elements which it has in common with music, it is, like music, either taken rightly or not comprehended at all, but in many of its lesser and more definable messages it may be misunderstood.

A very little thought will show how absolutely true in literature is what I have said, as to the position art must hold as the only means of expressing25 the greatest truths, and will show too, that just as our theme advances in dignity, will it increasingly need the aid of art to give it expression. The meanest things of life are most easily expressed. We can give our financial position with clearness in figures. We can express the composition of a gas with absolute accuracy in a formula. We can give almost any mere scientific fact in words. We can even state the properties of a triangle with some definiteness. But beyond this we cannot go without calling Art to our aid; and the higher we attempt to soar the more dependent upon her do we become.

Our laws and legal documents are a constant comment upon and illustration of the utter failure inevitably resulting from any attempt to express with absolute accuracy, without the aid of art, any of those things which involve questions of morality, love, truth, justice, or any of the higher qualities of our nature; for they have always been and must always be the most obscure, involved, and incomprehensible attempts at expression in any language.

So we go upwards from the scientific formula and the laws of geometry, past the legal document to the newspaper article, and everyday prose, until we come to the more matter-of-fact forms of philosophy, thence on to parable, fiction and fairy tale, & from these to sculpture, architecture, painting, and poetry, calling in at every stage more and more of the aid of art, until we arrive at last at that most perfect art, and most complete expression, music.26 And observe, all the way through the series we have moved less and less within the regions of definitely statable facts, and more and more in the regions of those truths which can be felt & known, but not definitely expressed.

Great truths, which are for all time and all peoples, must be expressed in an art at any rate as high in dignity as parable in one of its many forms. The greatest teachers have recognised this. All great truths must be presented in a form in which those who are capable of realising them can find them, while others miss, & each can take away what he can comprehend. This is only another way of saying again, great truths can only be expressed through the medium of art, for it is an essential property of all true art that it shall suggest and imply more than it actually says.

I have said art is the only true educator between man and man, and a knowledge and appreciation of those things which through art alone we can learn, is the only true education. But I would not for one moment be thought to lose sight of the fact that Nature can and does teach us more than any work of man. She has influences over us tending to the highest education; with these I was not concerning myself in the above, for I was speaking of man’s influence upon his fellow man. I am to try and give some idea of wherein lies the life and vitality of some of the humbler branches of art. I say humbler, for I will have none of the shallow hypocrisy of those who, not being able to paint a great realistic picture, pretend that their27 little conventional decorations are a higher and nobler branch of art, and who, because the great picture may be still greater by being also decorative, and can only attain to its greatest when it is also decorative, argue that all decorative art is greater than pictorial.

It is my aim to show that to these applied arts also belongs much of that power to express those higher things which are felt and known only through art.

We all know that the mere form of a chair, the contour of a mould, the shape of a bracket, a scheme of colour, have power to affect us, in a degree, in just the same way music does, and, with awe let us realise it, even as Nature herself does. And I would have every craftsman and every practiser of the arts as deeply impressed with the dignity this places upon him, and the responsibilities it brings with it, as he can possibly be. I would have him feel this truth, that in his degree he is instrumental in either forwarding or retarding his fellow men in their highest and truest education; that in just so far as his art is true or false, real and vital, or feeble and insincere, he is advancing or hindering this great work; that true art is the grandest work of which humanity is capable, and that through it alone can man advance to higher things than those of which he is now capable.

We can none of us know, and certainly none of us are in any danger of over-estimating, the good influence of a beautiful building upon all those who pass and repass it daily; and the smallest and28 most insignificant article in our daily use has, in its own degree, like power to help or hinder our development.

Wherein truth in art consists, none but the artist can know, and he cannot tell to another what he knows of it himself; he has learned it, first from an inborn instinct and gift, and second, by that education which true art only can promote, and others can only come to a knowledge of it in the same way.

The whole spirit and trend, all the outside circumstances, influences, and conditions of modern life, are against the artist and true art. The present individualistic and competitive basis of society makes a living art almost an impossibility, but I do not propose we should concern ourselves now with questions which are not within the designer’s power, but only with those things which he can and must see that he personally rightly understands and practises.

No good work in any field of art was ever yet done in a hurry; it maybe done quickly, with the utmost energy, this will probably only give it vitality, but all outside pressure means death to art.

All true art work must always be done under the very keenest stress of mental effort; it cannot be slovenly, careless, or interestless in its smallest detail, but must be wrought with every faculty alert with an absorption and concentration amounting to abandon, and it must be done, can only be done for the love of it. Other motives there may be, and in greater or less degree there will be, but this29 must be first and paramount, or true art is impossible.

A very fruitful cause of failure is the effort to be original. In the loathsome distortions of fashion we see daily the result of this attempt to originate new forms, simply for the sake of novelty, without the slightest reference to any feeling for beauty or fitness. Originality has no value other than a purely commercial one, unless the original thing has advantages over the commonplace. Most of the things which we have about us show unmistakably that their designers went to work in the wrong spirit from the very first. We see at a glance that the position taken up was this. The designer has said to himself “This is generally done so and so, in such and such a manner; now how can I modify this to make it in some degree original: where can I introduce a little novelty?”

No good result was ever yet arrived at by any one who took up this position. No: the way to go to work is, to get clearly into your mind the functions, duties, requirements and limitations of the thing to be designed, then choose the material or materials which will enable it best to fulfil its functions, duties, and requirements, and keep within its limitations. Afterwards, with a full knowledge and candid recognition of the properties and characteristics of your materials and the best way of using them, set to work to evolve the form which will, in the simplest and most direct & at the same time most beautiful and decorative manner, fulfil the requirements, and the result will bear the impress30 of your own personality, it will have your own feeling, and will probably also have something of true originality.

You may if you like, with all this clearly in your mind, pass in review the customary forms employed to fulfil the conditions, retaining such characteristics as you see are valuable either because they advance the objects, or add to the comeliness, but this must come second not first.

I would like you to notice in passing that this right and true method of going to work in design is entirely inapplicable to all things having no functions to fulfil, by such a throng of which we are now surrounded.

The whole trend of modern civilisation would make the outlook for the artist one of blank hopelessness, were it not that there are signs of a reaction, due to the efforts of great men who have fought hard that art may not die.

We call the present the “Machine Age.” Now the influence of machinery on art is one of the most degrading we have to contend with, for every advance made by machinery must mean a corresponding retreat on the part of art.

When I have expressed the keen sense of pleasure given me by the beautiful variety of surface, the light and shade, the crisp, clean adze cuts, the vital human interest, of some old beam, the commercial mind has said to me “If the workman who wrought it had possessed the tools with which to get it up to a better surface, he would not have left it as it is.” This is probably true, but it does not affect the31 question of the relative beauty of the two beams, the absolutely square, smooth, machine planed one, and the irregular rough hewn one so full of character and interest. The artistic value of each is a question quite apart from such considerations. To-day, if we require a beam in our building, we take every bit of natural character out of it, and bring it, by mechanical processes, to as dead and flat, as lifeless and monotonous a state as possible, then we stupidly try to replace some of the natural and characteristic beauty we have been at so much trouble to get rid of, by some form of applied ornament, moulding, or what not, which probably has only this one result, that it obscures the one trace of natural beauty which has been able to survive the previous processes, that is the grain and figure of the wood. Afterwards we stand and look at it, with a sort of feeling that there is something wrong, and wonder why it was so much more beautiful before.

This is only one illustration, it would be easy to give hundreds. For beauty of texture and surface are nothing to the machine producer or the commercial spirit of to-day.

When I say I want a piece of copper just hammered out to the size and shape I require without that grinding and polishing by which all trace of the hammer & human hand is lost in mere smoothness and mechanical finish, the workman tells me it will be injurious to his credit, people will see nothing in it but bad workmanship and inability to finish. He would prefer to efface the sympathetic32 surface and natural beauties of the beaten metal as completely as possible, then he would put it in a press and stamp some meaningless pattern on it, but the result would be entirely uninteresting to him, and he would have no satisfaction in it, unless sheer commercialism had utterly killed every grain of everything higher than itself in his nature.

Think of the beauty of leaded glass compared with the lifeless hard mechanical perfection of polished plate. This beauty has nothing to do with its old-fashioned look, with romantic associations, or quaintness of effect; it is simply an inherent property of all leaded glazing, due to the wonderful and never ending charm of the play of light and shade on the different panes, each one catching the light slightly differently from any other, some glistening brightly, others dead and sombre, and the rest occupying every tone between the two. One sheet of glass with the leading laid upon it would be more ugly and meaningless than the plate glass. Many would-be artistic people think that it is an essential characteristic of the artistic that it should be in some degree eccentric or unusual. This is as great a delusion as any one could well labour under. That it is the case at the present time cannot be denied; but it is because we have sunk to such depths of degradation, that the artistic has become the eccentric and unusual, not that to be different from the ordinary is the property of the artistic. There was a time when the exact reverse was the case, when simple natural beauty was the rule in33 all things and ugliness the exception, and the unusual and eccentric was then the inartistic.

So also many would-be artistic people think that things derive an artistic value simply from being old or old-fashioned. This again is entirely untrue except of such things as undergo a modification and change for the better in themselves at the hands of old Father Time. But this too is an error easily accounted for, as at the present time, as regards the common things of daily life, the standard of design is so debased that it would be almost impossible to bring out of the past (at any rate of centuries before the last), forms for these which would not surpass in beauty those now current among us. If art in our homes were living and progressive the old and old-fashioned would be the ugly and inartistic.

A perfectly frank recognition of construction and an honest compliance with its demands is an absolute essential of all good designs; any attempt to disguise or thwart, or failure to acknowledge, the necessary characteristics and features of construction, must result in artistic disaster and is indeed a very fruitful cause of it. So also is that kindred error, the adoption of a less perfect construction to get the form wanted. It is not necessary I should dwell upon this now, for it is recognised by all art teachers, though by very few of those who practise the applied arts, and illustrations of the truth of it meet us in abundance on every hand and will occur to all.

Neither is it necessary (and for the same reasons)34 that I should say much about imitations & shams; wood made to simulate stone or marble; iron cast in forms suited only to wood; wood worked into forms suited only to stone, or in imitation of stone, as in tracery and groining. The evil of all this is too well known, and I have had to pass over it for the sake of what is less recognised and not so often brought before us. To put the right thing in the right place; to give it its most appropriate form, and above all things the form which will best enable it to fulfil its functions and uses, and withal the simplest, most direct, and the most perfect in construction; this is the first duty of every designer, and in doing this he will generally find he gets the maximum of beauty.

The conscious effort to be original will always produce abortions and painful results; the only originality worth anything is arrived at in trying to do something better not something new; and the true artist shows himself in giving beauty of form, of colour, and design to the necessary and useful, and adding that higher usefulness belonging to a work of art. But may we not have ornament, pure ornament which has no other definite use? Certainly we may, but let us at the very outset apply this test to it. It does not, we say, fulfil any useful purpose on the physical plane, does it fulfil any purpose on that higher plane of which I have spoken? Is its educational influence good? If so we will welcome it. If not let it go. And I fear, when this test is applied, it will be found that there is but little of the enormous profusion of the (so-called) ornament35 spread over everything about us, which would not have to go.

Most of us would do well to change it all for one or two good pictures, a bit of really beautiful metal work, carving, or embroidery, done by an artist with his own hand, and possessing something of that dignity of true art I have tried to show.

BARRY PARKER.


3637

OUR EDUCATION IN ART.

My subject is “Our Education in Art,” & I approach it with a sense of trepidation, feeling that the task I have set myself is one of very great difficulty, and being, as I am, so fully alive to the tremendous issues involved in our holding right or wrong views upon art education.

The place in our lives which Art must fill is so exalted that it is with reverence I would consider the way in which we should teach or be taught to express ourselves in art, or learn to read the meaning of others expressed through that medium. Those who have come to realize that only by the employment of Art can the highest truths which we are capable of receiving be conveyed from one man to another, must feel that the method of preparing ourselves to wield so great a power, or render ourselves receptive of such an influence, should be most earnestly considered. I have taken “Our Education in Art” as my title, instead of “The Education of an Artist” or any other title which would have fixed more definitely the limitations within which I should confine myself, because I want what I am about to say to have a much wider application than it would if simply taken as addressed to those who propose to practise an art. For, to train all to an appreciation of what is good, true, and beautiful, in Art, is hardly less important than to train artists capable of38 expressing what is good, true, and beautiful.

All have not vouchsafed to them the power to express themselves in an art, but all are in some degree influenced by the artistic qualities of the things by which they are surrounded, and I wish to suggest a way of learning to appreciate what is good and true and beautiful in art, even more than a way of learning to create such art. That there shall be those who can appreciate good art is necessary to its life. That we should have those who can create it is not enough; this is the work of the few; the work of the many is to make an atmosphere in which it can live. I would impress as gravely as possible upon those who aspire to the practice of an art, not only the dignity belonging to what they would undertake, but the tremendous responsibility attaching to it.

The first thing that must go to the making of an artist is that he should have that within him which craves for expression, and which can only be expressed through the medium of an art. This first essential is given to many to whom the power to express it is not given, but without it the facility to express will be a power for harm not for good: it is the presence of great qualities, not the absence of bad, which makes a work of art.

The artist’s great responsibility lies in this: every time he creates anything capable of bearing the impress of the true art instinct, he brings into existence that which will have an influence upon all who see it, and will quicken or deaden in them this high instinct. The thought that, if he create not39 something better than would have been created by others, had he left it to them, he is doing harm in the world, not good, is one that should come home to him very solemnly. To the art worker belongs this privilege—that his art can be a great power for good; and this responsibility—that he must of necessity have done either harm or good by his work, and that unless he has done something which is beyond and above the conception of the general run (nay, of the great majority) of his fellow-creatures, something they feel to have a little more in it, and to be a little more than they can grasp, he is not merely harmless, he is a failure. For as in life generally, so in the artistic life, he who merely does what no one can attach blame to, and has not done better than others would have done in his stead, has lived to no purpose. Virtue is not a negative quality in art or in life; it does not consist in keeping the Ten Commandments. “All these things have I kept from my youth up: what lack I yet?” This man 1900 years ago had grasped the truth of what I have said above better than most of us have to-day.

I will herein confine myself to speaking of those arts which depend upon our eyes for their means of appealing to us; and as I wish that these suggestions may be of real practical value, to all who desire to appreciate what is artistically good and true, I must leave out of our consideration, for the moment, all the greater qualities which belong to art; and confine myself to showing how we must first learn to see, and to what I may call the purely technical side40 of learning to see and represent. For simplicity I will take the art of portraying Nature, as seen in her landscapes, as my example of how to learn both to see and to draw; for the process is the same in either case.

Now when first one attempts to paint a landscape, one is over-whelmed by the tremendous number of different things one sees in it and has to take into consideration at the same time. There is the form and drawing, the light and shade, the atmosphere and its effect upon the local tints or real colours of each individual object in the landscape, the overpowering profusion of detail, the reflected lights and reflected colours, the relative value of objects, the texture, and character of surfaces, the composition, what we call the accidental effects; and last but not least, the teaching and meaning, the particular message Nature has to convey in the whole scene. And only by long and patient study of each of these separately, can we acquire the power to grasp them all together in the way which is necessary when painting.

Were I to teach, I should make my pupils go through a long and patient study of each of these separately, devoting much thought to each in turn, quite apart from the use of pencil or brush; for it is impossible to represent one without the others, but not impossible to study one without the others. And that we should be able to first dissociate one from another in our minds, and then see the influence of one upon another, is absolutely necessary to a true portraiture of Nature in landscape.41 I would then begin with the simplest of the things in my category, and impart to my pupils a knowledge of form (probably best done by some simple process of modelling), and I would go on to the drawing of form without reference to light and shade. Next I would teach them to see form in masses of light and shade only, leaving out of consideration at the first (as far as possible) the influence of reflected light, but eventually giving much time and thought to enabling them to see the reflected light truly, and to measure its gradations and degrees accurately. From this they should go on to represent textures and character of surfaces, and not until all this had been done would I bring in the use of colour. This should begin by the accurate matching of local tints, before the representation of the colour effects produced by atmosphere with its varying degrees of moisture, of density and transparency or opacity, its power of diffusing light, and its effect on distance, was attempted. Next I would allow sketching with reference to composition, grouping, and much study of the relative values of one object to another in the landscape, affected as it is by all the foregoing, and difficult of explanation as it always is, even in view of and with a perfect knowledge of all the foregoing. Finally, being first able to see and feel, then we would go on to try to catch & portray the moods and messages of Nature, and the poetry of the whole.

I would then point out to the accomplished craftsman, that he, upon sitting down to paint from42 Nature, must first ask himself what it is which makes a picture (in the true sense of the word) in what is before him, and why he has chosen this particular subject: and he must never for a moment allow himself to lose sight of this. Much there is he must of necessity leave out, but he must grasp the essentials and retain these. His study has taught him to see things as they present themselves to his eye, rather than as he knows them to be. In a sentence, he has learned to know what he sees, not to see what he knows: he is aware that yonder hill in the distance, were he there, would be green, but that seeing it as he does, affected by the intervening atmosphere & light, it is blue. The painter must by training, and power of analysing causes of effects, be able to see his subject somewhat as he would were he suddenly dropped into his seat from another planet, without any knowledge of the appearance on closer inspection of the component parts of his subject. May I explain some of what I have said, with the aid of a simple example, a stone wall bounding a green field, the wall casting a shadow on the grass. Of drawing pure and simple there is not much; there is the form of the stones in the wall, the irregularities of the contour of the field, the shadow of the wall & the modifications which the rise and fall of the surface of the field effect in it, presenting it to the eye now more foreshortened and now less as the angle between the wall and the ground changes. In the reflected light there is much to note and dissociate in our minds from the direct lighting. In this we should see that the shadow on43 the shade side of the wall is much lighter than the shadow cast by the wall upon the grass. This results from the fact that the grass from its horizontal position receives far more diffused light from the atmosphere and the sky than does the vertical surface of the wall; therefore it reflects more light upon the wall than the wall can in its turn reflect on to it. But though the shadow on the shade side of the wall is lighter than the shadow on the grass, the shade side of the wall will be darker than the grass within the shadow of the wall; and this is not due to the local tint, the grey of the stone and the green of the grass, for probably the horizontal surfaces of the stones on the top of the wall, show as light as the part of the grass which is also in the full blaze of the sun; it is due to the different character of surface or texture of the grass field and the stone wall, and the different effect upon each of varying degrees of lighting. So observe, all these, the light and shade, the diffused and the reflected light, the character of the surfaces, the local tints and the atmosphere & distance from the observer, all affect the relative value of the tone of the grass and wall, which value must be seen truly before it can be painted truly.

As I said, for simplicity, I have herein so far followed out the course of study as applied in landscape only, but at the right stages I would have the student, in exactly the same way, study the seeing rightly, and then drawing rightly, first plants, then animals, then the human figure; then finally I would let him apply his knowledge and artistic44 feeling to design.

Art is at its greatest when applied. If the great picture, while retaining all its merits as a picture, can at the same time also hold its own as an element of decoration and lend its aid to producing the general effect to be made upon us by the whole building, it is by so much the greater. I would not, until the final stage, encourage the study of any form of applied art. None of the figures drawn or studied should be those applied to the decoration of a building, used in flat design, or in any way conventionally treated or grouped. I would encourage no study of ornament of any style, period, or nation. Our need is for a system of education which will strengthen our inborn perception for what constitutes real beauty. It is comparatively easy to learn to distinguish a beautiful thing from an ugly thing, but to know wherein the difference lies is quite another matter. It is our education in art that must strengthen our power to see what are the essentially beautiful properties which the one possesses and the other does not. We, whose work it is to design, frequently find the client who has best been able to appreciate the difference between the good and bad design in the finished result, will, when a design is being worked out for him, be most emphatic in his instructions that one by one every feature which has contributed to that difference shall be eliminated: and the bearing upon this of what I have said, about educating those who are not to practise the arts, but to appreciate, will be easily seen.

He who has studied landscape earnestly and lovingly, 45 and learnt to see wherein its beauty lies, when he comes to apply that landscape to an architectural or decorative purpose, such for instance as the decoration of wall surfaces, stained glass, or what not, will find his own characteristic way of conventionalising it. His conventionalisation will be such as is dictated to him clearly by the limitations of the material in which his design is to be produced, and by questions of fitness and suitability. And his feeling for true beauty will enable him to retain the essentials of the beauty in the landscape he is applying, & to discard what is less necessary. He will suggest the mood of Nature and convey her influence upon the beholder. He will also, in his freedom from the influence of long established conventions, be able unconsciously to impart his own personality and feeling, and so give real originality to his handiwork.

For him who would practise the art of the architect, a course of study directed primarily to the strengthening of the power to see wherein lies the secret of the beauty of one form over another, and not merely that one form is more beautiful than another, is perhaps more important than to him who follows any other art appealing to the eye: for this art is further removed from the influence of Nature’s own teaching.

I have been obliged to dismiss in a single sentence the training by means of drawing and studying plants, animals, & the human form, which I would advocate; and fear I may so have given a very46 wrong impression as to the importance I attach to this study. I must ask that this be not measured by the time I have devoted to it; for I hold it to be all-important, and the work at it should be long and thorough. In this work the student could be carried much further in many of the separate branches of his study I have indicated, than he could be in landscape. The plants & animals would demand of him a far greater perception of the subtleties of form than did the landscape, and of course his drawing would be carried very much further. He would have to apply all he had learnt of light & shade and reflected light under very much more complex conditions. Much more subtle distinction of the character of surfaces and textures would be required of him; and also greater nicety of perception in local tints. But composition or grouping should not enter yet into his consideration. Before he thought of these I should want him to specialise, and decide in what field of artistic labour his feeling & knowledge were to find expression. I should then require that he get a complete mastery of the technicalities of this, and of its methods, restrictions, and capabilities. If he elected to be an architect, I would have him acquire a comprehensive knowledge of pure building construction, but no architecture—in so far as it can be separated from building construction. If possible, I would have him learn one of the handicrafts for which he is eventually to design, that he might show forth his feeling for beauty of form modified by, and in due and proper relation to, complete mastery over47 methods of construction. If he were to be a sculptor I would have him next master the technical side of the art. If a glass painter he should be able to make a window before he attempted to design one. The embryo painter should master all the details of the painter’s art; the would-be textile designer should work at a loom; and the ceramic designer with wheel, mould, glazes, & kiln. Then at length, each should in his own line attempt to give expression to his own ideas, his own feeling, and his own love of beauty, in something really to be used, and for which there was a definite requirement and a place in the world already assigned.

And this brings us to what I consider perhaps the most vital point in the whole system I am advocating. The student is now in a position to solve the difficulties which will beset him on every hand. In his own way he sets himself to create that which will best fulfil certain definite conditions and requirements, and to give it what he conceives to be the best and most beautiful form in which it can do this. At this stage, having first encountered the difficulties, he may, with advantage to himself and his work, look round and see how others before him have met and overcome similar difficulties; and how, out of the way they have done this, certain historic styles, accepted forms, and recognised conventions have resulted. As each difficulty presents itself it will help and stimulate him to study how it has been overcome in old work, but if he is saturated with knowledge of the forms and finished result of old work, without first having met48 the problems which brought them into existence, he will simply have his own instincts swamped by them, and will blindly reproduce them without any feeling for the spirit which prompted them. Really vital design will be well-nigh impossible to him.

That we substitute suggestion for development is one great defect in our educational system to-day in all things, but especially in those things appertaining to the arts. Our schools of art begin their training in design with an exhaustive study of historic styles of ornament and applied form of every kind. The course of study laid down by the Institute of British Architects for its pupils, commences with “Evidences of Study” of old Greek and Gothic buildings; in all cases suggestion is substituted for development, and in consequence we have turned out by the thousand men capable of reproducing works in all styles, but with no vital appreciation of the spirit and causes which lead to the existence of any one of them, and not one who can evolve a really vital work of art among them.

If we look round among those who are the leading spirits in the really great forward movement in art which is going on among us, how many of them shall we find to be the product of our recognised educational authorities in art? How many have got their art training on the lines laid down by our schools of art, for instance? If they come out of government schools at all, we shall generally find they have acquired their grasp & mastery49 in spite of that system, and owe it to influences arising in some by-path, there, or outside its curriculum altogether; or to the fact that their own individuality has been too big to be drowned or stamped out by it. Still we cannot fail to be struck by the very small percentage of these leading spirits which it can be claimed are the outcome of any system of training at present recognised.

The embryo architect is in a somewhat better position than those intending to follow other arts, for the old apprenticeship system still obtains in this profession; and in his master’s office he is at anyrate engaged upon work for a definite purpose and designed to fulfil definite conditions. He has opportunities to go some depth into the why and wherefore of things, and must of necessity do so. Very differently is he situated from one who is patiently acquiring a knowledge of the outward forms of things in a large technical school. The advocates of this “Study from the beginning of the best examples,” talk of getting imbued with the spirit of the old work. It is not for me to go now into the many reasons why it is not possible for us in these later times to enter fully into the spirit which prompted the beautiful work of the past: this one reason, that we have not first met with the difficulties the overcoming of which brought it into existence, is all that is within my province at the moment. Get yourself saturated with knowledge of form, of beautiful form, presented for your study by Nature on every hand, and apply this in your own way to meeting requirements and50 overcoming difficulties which you fully comprehend, which present themselves to you in the work which you have to do. Be not swamped with anothers’ ways of fulfilling other (though perhaps similar) conditions, meeting the requirements of another age, or overcoming other difficulties which you at best understand very imperfectly.

It would be very easy to give numberless illustrations of the harm resulting from this very wide-spread and far-reaching error in our conception and teaching of the duties of the designer, of the way he should go to work, and the methods he should follow.

We do not now require to be told that to fasten thin strips of wood to the face of a brick or stone wall in imitation of half-timber work is bad; but I may just in passing point out, that it was this same fault in our training and in our conception of the whole question, which ever made this possible, and rendered us able to tolerate it. We saw the beauty of old timber and plaster construction, and not seeing also that that beauty resulted from straightforwardly & honestly using the best form of construction known for these materials, we thought of the finished effect only, and imagined we got it by imitating it in other construction, where the conditions and requirements and the difficulties to be met and overcome were different. Nor do we need to think about these things much before we can see that it is wrong to erect gable, projection, cove, parapet, continuation of a bay window, or what not, for no useful purpose but51 solely for the display of even constructionally genuine half-timber work, that it may, by its echo of the beauties we have felt to exist in some true art work in the past, lead us to suppose that it too is beautiful.

But to avoid all possibility of becoming in the least personal, I will not take my illustrations from recent times, for it is easy to find them in abundance without. The abominations of the Renaissance are in themselves enough. These abominations were simply the outcome of giving the study of the finished result in the beautiful work of the past undue prominence in men’s minds, and allowing this study to smother the feeling for what had constituted the beauty in that work. As all know, the Renaissance came from the revival of the study of old Greek and Roman work in the 14th, 15th & 16th centuries. Men then began again to see the beauty that was in a Greek capital, shaft and base, but had not first learned to see that that beauty was the result primarily of the simple and direct way in which the pillar fulfilled its functions, in the form of construction in which it was used; and they began to use it again, and tried to work it in just as it was, and at the stage it had reached in the process of its evolution. They began to introduce it in buildings of a different construction, and in places where the conditions were very different from those under which it was so great. It had been beautiful where it supported a roof and cornice, and stood strong and adequate under their dead crushing weight: but it was now introduced in conjunction with the52 dome, the thrust of which it was entirely unsuited to sustain, therefore chains hidden in the masonry (like those in our own St. Paul’s Cathedral), were requisitioned, and we got an apparently stone building so constructed that it would not stand up in stone, just as we have to-day on every hand imitation half-timber buildings which would not stand up if of timber construction. It had been beautiful in the sunny climes of Greece and Italy, where the shade of the entablature it supported was needed, and an attribute of beauty: but it was now placed where the wall could not be set back from it, but must be brought out to it, and must have windows unshaded by cornice, frieze, & architrave. Therefore the pillar stood in front of it, carrying nothing, doing nothing, and a melancholy, painful thing to all who beheld it rightly.

They studied the ornament of the Greeks, but failed to notice how it was in all cases subordinated to, and explained and enhanced the general forms and contours and emphasized the construction; and the result was the meaningless inanity and vapid gracefulness of their compiled arabesques and ornament on pilasters, their festoons, and all the rest of the imitative and uninspired artificialities of the style.

The work became lifeless & compiled. In a Gothic cathedral, of the times before the Renaissance tainted our northern work, one feels the mason honestly developing the resources of his material, age by age. Behind one of Wren’s spires one always sees the man with paper and drawing instruments,53 hard mechanical lines laboriously measured off on a drawing board, with mathematical calculations of proportion figured all round the margin.

And apropos of all this, may I be allowed parenthetically to say, that there is a movement on foot to make architecture a close profession. I do not propose to enter here into this, or into the question whether any true standard of qualification in architecture, or any other art, can possibly be secured by examination; but all I have been saying has a very distinct bearing on the policy of those who advocate that all who would enter the profession of an architect, should go through the same course of study as definitely laid down by them; a course which begins with the study of ancient work, and, in so far as it includes at all those things which constitute the true training, brings them forward in the reverse order from the one indicated above. But this is not the point I wish to show; I wish emphatically to say that to train all would-be architects in such a way that they can pass the same examinations is bad enough; but for all to go through the same mill in preparation for these examinations, not allowing those who have other ideas of what an architect’s training should be a free hand to act upon their own convictions, can only have most disastrous results to architecture, as it would to any other art.

It is well to think earnestly of our education in art, and to fit ourselves for true appreciation; but when we have done this, if we come to actively practise an art, to keep a watch upon our motives54 is our only true guide. Everything depends on this. If the motive is unworthy the art will be unworthy. Unless we create any work of art, unless we write, paint, design, or whatever it may be, first with a desire to create an influence for good, to bring home to others something of the true & beautiful which might otherwise escape them, our art will be unworthy.

The first thing that must go to the making of an artist is not that he shall have the power to express himself, but that he shall have that within him which needs expression. The artist’s duty is a very grave and solemn one; it is for him to rouse in others the power of seeing truth and beauty, “The best impart the gift of seeing to the rest.”

BARRY PARKER.


55

ART AND SIMPLICITY.

“Ability to live without furniture, without impedimenta, with the least possible amount of neat clothing, shows more than the advantage held by this Japanese race in the struggle of life; it shows also the real character of some weaknesses in our civilization. It forces reflection upon the useless multiplicity of our daily wants.” Kokoro, Lafcadio Hearn.

Looking over some colour prints from Japan, I have been much impressed by the extreme simplicity which characterizes the interiors of Japanese houses as depicted in them. Print after print shows us a room almost bare, the walls in some delicate brown or grey tint, with the wood framing exposed: this latter consists of bamboo cane or simple squared posts and beams, with now and then a door head slightly arched. For the elaborately ornamented screens and bric-à-brac which are associated with Japan one searches these prints in vain: the rooms are characterized by an almost complete absence of mere ornament. There is in one a single panel of the wall or screen adorned with a landscape very slightly suggested; in another a blind or hanging of some sort bears a text or painted floral decoration; or a vase standing on a slightly raised dais, holds a carefully arranged spray of flowers; or ajar on the centre of a wall displays a single peony or chrysanthemum exquisitely poised; but beyond this there is no ornamentation.

There is considerable variety in the shape of the 56 rooms shown, none seemingly being just four-square. A complete absence of furniture characterizes them, and only such things as are actually being used find a place there. Yet the whole suggestion conveyed is one of refined and elegant life: the lady arranging flowers does not have the sprays from which she is to select on the floor by her, but on a beautifully lacquered tray; while all the utensils one sees represented, such as boxes, candle-sticks, tea-cups, or platters, are elegant in shape and colour and often much ornamented. They are quite obviously in the room for use however, not for ornament.

Judging from these prints, the refinement of Japan seems to result in no desire for beautiful ornaments or elaborate decorations, but rather in the demand that everything that is required for use shall be elegant or even highly ornamental. Their æstheticism evidently does not bring a craving to be always surrounded by innumerable articles of vertu, but rather a demand that such things as must come to their hands justified by their use, shall come also graced by beauty.

In contrast with the extreme simplicity of the rooms is a lavish display of bright colour and ornament on the dresses of the ladies, as they are represented chatting or working; this tells with wonderful effect against the soft grey or brown, or the pale green of the dried rush matting, which are the prevailing colours shown on the walls and floors.

Such rooms as these are obviously thought of 57 mainly as the back-ground to the people and their life. There is evidently in the Japanese no lack of love for the beauty of Nature and of ornament; only there is a dignity which makes them demand a suitable setting for their lives; and a very rare refinement which teaches them to prefer the complete realization and enjoyment of the beauty of a few simple things, to the superficial appreciation of many elaborately beautiful ones; which leads them to spend their thought rather in showing to the best advantage the utmost beauty of one spray, than in finding places for a basketful of rare flowers.

How different is the common estimate of art and refinement here in the west. When we think of the elaborately upholstered houses of our ‘artistic circles,’ the people of taste—crowded as they are with costly decorations and ornaments; when we find that one of the most refined of our modern painters is in danger of being remembered as much for the gorgeous palace in which he lived as for the works of art he painted; what wonder if philosophers and moralists tell us that art is the enemy of simplicity, the fosterer of luxury!

If the love of art did really result in making more and more elaborate collections of beautiful things necessary to us, then indeed it would be the enemy not alone of simplicity but of liberty also. Then would it be but an added burden, still more terribly dividing those who work from those who enjoy, and further enslaving the one to the other; but another millstone hung about the neck of58 miserable man to keep him from rising above the slough of mere material wants and entanglements, in which he is already well-nigh engulfed. But the accumulation of beautiful things from all the ends of the earth is no sign that a deep love for art exists, and the admiration of them in itself is no sign of much refinement. Rather does this result from our utter lack of true art, from our complete inability to make the things we need beautiful. It is a sign too of our entire want of refinement that we are content to use such ugly things as we do make, if only we may have a few of the beautiful things that other people have made, to look at. Fancy a Greek carrying water in a galvanized iron pail, and thinking it artistic to put his pitcher on a bracket in his hall! The Greek required his pitchers for water carrying, and made them for that purpose, made them as comfortable and easy to carry as possible; and that his work in the making of them might be to him somewhat of an interest, he made them as beautiful as he could in form, and decorated them with suggestions of the things his mind loved to dwell upon. And so was art to him both a solace to labour and an expression of his interest in his work. And to the one who used the things made, what was it but a pure added joy in his life; suggesting to him the pleasure of that worker, and starting in his mind thoughts of gods or heroes on which he also liked to dwell. This is the origin of all true art, springing from some joy in the maker and giving to all who use the thing made some suggestion of this joy. Or it may59 be, in the higher branches, springing from some great thought demanding expression or great emotion yearning for sympathy, & in the beholder ever after stimulating something of that thought or emotion. Instead of being an added burden to men it may be an added joy; may gladden the hours of toil to the maker; and for the user may lift the every-day affairs of life out of the commonplace, satisfying his taste with the comeliness of all the implements he uses and cheering him with the beautiful suggestions of their ornament.

Art such as this must be in close touch with simplicity; for, under its influence, ornament that has no message of suggestion, that conveys no memento of a maker’s pleasure, would not exist; and if you come to think of it, why should it? There is no virtue in mere ornament: far otherwise. It is not easy to create a decoration more beautiful than the play of sunlight or firelight on a whitewashed wall; and unless some one has joy in doing it, or can give us something more constantly pleasing or suggestively helpful, why should it be attempted? Certainly refinement does not demand it; for it is refinement that teaches us to appreciate the subtle colouring of the varying light and to be content with it.

In other ways also the growth of the æsthetic faculty will lead to simplicity, & will help to produce those changes in the conditions of life and work, without which there is no hope for any great revival of art on the lines just sketched. Until recently the beautiful feathers of the heron, the60 so-called ospreys or egrets, were a favourite decoration for the head dress; but since the cruelty attendant on the obtaining of them has been generally known, they have vanished alike from the plume of the soldier and the bonnet of the gentle lady. Their beauty brings no more pleasure; it is marred by the mental picture of the bleeding heron and its starving young: none but the ignorant or vain can wear them now. As our appreciation of beauty becomes, if I may so use the term, intensive as well as extensive, many similar changes will be brought about. For one must not forget that the appeal of beauty, of art, to us is not solely a matter of the senses. A work of art does not cease to touch us the moment it is out of our sight; nay, we may even get more pleasure and help from it after than when actually gazing at it. But if it is to continue to please us, beauty must bear to be thought about. If we cannot dwell with satisfaction on the origin or production of the beautiful object, its beauty ceases to please, we feel it to be superficial.

This desire for such a harmony in our life and surroundings as will not alone delight the eye, but will also satisfy and please the mind and heart, springing as it does from a deeper appreciation of beauty, will have far-reaching results in the direction of wedding art and simplicity together. There are many who can no longer enjoy an artistic life above stairs, undisturbed by the lack of what art could add, in the life below stairs on which it rests; for they feel that no beauty in the drawing room can make up for the want of beauty in the lives of61 those in the kitchen; no refinement in the study compensate for the utter lack of it in the workshop. In fact we are coming to realize that although we may have the right and the power to create for ourselves a costly palace to dwell in, and to gather around us all the luxuries and refinements we can think of, and may moreover have plenty of servants to wait on us and plenty of labourers to help us to support our costly life; yet art will not make such a life beautiful, simply because of that want of harmony between the life and all that goes to support it. However right and just such a life may be thought to be, it cannot be beautiful.

And so those to whom beauty really appeals are seeking a simpler form of life, one which need not cost so much of the labour of others to maintain, or so much of their own to procure. And the more they come to love & enjoy beauty, the greater must this tendency to simplicity of life become, not from any virtue or asceticism, but simply as a matter of choice. Why should one having such tastes encumber himself with an elaborate household, which but offends his inner love of harmony, and takes his time and energy from the enjoyment of so much greater pleasure? He knows that the art in a picture belongs to all who can appreciate it, not solely to the purchaser of it, who buys not the art but the right to shut it up; and he realizes that the beauty of a landscape is a pleasure open to all who can see it, and that it cannot be conveyed in the title deed. Such an one does not barter away his time and his freedom to enjoy these solid pleasures, for the sake62 of a fine house, fine society, or any other fictitious refinements. He minds not how simple his surroundings, if only he may be able to dwell in thought on everything he handles or sees about him without any painful suggestion of drudgery in the making of them, or squalor in the maintaining of them, marring his pleasure in their simple elegance. The most humble house will content him, so only he may have time and quiet to appreciate the beauties of nature and art, and opportunity for the sharing with others of like taste the enjoyment of these things. For the love of beauty is not selfish, it grows by sharing: we all love to make others see the beauty that we enjoy.

It is true that such a man may be fastidious, that he may hate all ugly or sordid things, and may demand that everything he has shall be the best of its kind. But this must not be confounded with a desire for many things, or a dislike of simple ones. The musician too, is hurt by harsh sounds and requires his music to be of the best, but he does not ask that an orchestral concert shall be for ever going on.

This general dependence of beauty on simplicity, at any rate in the private dwelling house, is of special interest to those whose function it is to give an artistic setting to the lives of clients by so designing their homes that they shall be comfortable for those who are to occupy them and comely for all who shall behold them. The architect is astonished to find how very conventional generally are the reasons which dictate the size and arrangement63 of the house. He is impressed by the great difference that exists between what are considered to be suitable houses for different classes of people: and he begins to wonder whether there are not discoverable some factors determining what is a suitable size for a man’s shell having more intimate relation to his life than the depth of his pocket, or some reason for its form and adornment less conventional than those usually accepted.

For example, an architect receives a commission to design some labourers’ cottages. The cost is the first stipulation: this must be low enough for the cottages to yield a fair return on the outlay when let at such rents as the labourers can afford to pay out of their present wages. Probably the next stipulation is that each house must have a parlour, kitchen, and three bedrooms. The usual result of such instructions is a design for a row of cottages, all alike, each having a small parlour in front with a front door into it, a kitchen behind—it is well if this is not smaller still—with the stairs going up between the two and a little larder under: the kitchen has a back door leading into the yard, a sink under the only window, and a copper between that and the fire. Here we have as the living-room for a family a place twelve to fifteen feet square, containing three doors, a sink, and a copper. True there is a sitting-room; but that is of little use. The occupants will have neither money to find coal for a second fire, nor energy to keep the fire going and the room tidy for use, nor will there be any inclination for the family to divide for the little64 time they are all at home. But a false convention of respectability demands this sitting-room; and the stern limits of cost preclude the possibility of having a scullery or washhouse in addition.

How an architect must wish he could attack this commission from another standpoint. How he must long to design a house to fit the habits of life of those who are to occupy it. Then he would work on quite different lines. Knowing that the family will practically live in the kitchen, he would think out the space needed to give room for doing work, taking meals, and resting. He would consider what of the work which must be done most tends to make the living-room uncomfortable and dirty; and he would banish that to a scullery or wash-house. In the living-room he would plan so that there might be warm seats round the fire in winter, free from draughts, and seats for summer near the window; a good dresser for work, well lighted and supplied with cupboards, plate-rack, and perhaps a small washing-up sink for the crockery. Then he would allow space for a table for meals, and a few shelves for books; perhaps he might even find a corner for a piano or desk, in case either should be wanted. Instead of the sitting-room, he would either build a little den for quiet reading or writing, if any member of the family desired to study, or more probably so plan one of the bedrooms that a portion of it could be made cosy for such a purpose, about the only one for which a sitting-room would be at all likely to be wanted. Remembering too that cleanliness has been placed only65 second among virtues, and that probably most of the labourers would have dirty and arduous work, he would contrive to give a bath; and if nothing better could be done might put it in the scullery. In this way he would have obtained a cottage as nearly as possible fitted to the lives of the people. It would take no more daily labour and expense to keep up than the conventional one, and would not cost such a great deal more to build—in fact, omitting the bath, and keeping within the total size, need cost no more.

Perhaps the next commission is for a country house. It is stipulated that there shall be dining-room, drawing-room, and library, a good entrance hall and six bedrooms, together with kitchen, scullery, two servants’ bedrooms, butler’s pantry, china pantry, larder, laundry, a lavatory and cloak-room on the ground floor, and a bathroom on each bedroom floor. Such requirements have probably as little real connection with the lives of the people who are to live in the house, as the conventions which dictated the two roomed cottage. The size of the house has more to do with the social position assumed by its owner, than with the number of his household; and the library quite as likely is due to the length of his purse, as to the number of his books or his literary pursuits.

Somewhere between these two extremes must lie the sort of house which the lover of art and beauty would desire for himself. Somewhere, in each case, must the two opposing tendencies of comfort and simplicity meet. Up to a certain point it will66 add to a man’s real pleasure in life to enlarge upon the bare shelter of the labourer’s cottage; but beyond that point any gain there may be will be too dearly bought. This point is fixed for any individual, but must of course vary widely with the temperament and circumstances of each. It is sufficient for our purpose to realize that there is such a point, and that the development of a man’s love of beauty and art will in the long run give more and more force to the tendencies which make for simplicity. Those whose main desire is for beauty in their lives, are coming to see that to the rational cottage as sketched above, with its ample living-room and the other absolute necessaries of a decently comfortable life, they must add with great caution and reluctance, and only as dictated by really pressing needs. Every extra room is an added care, means further demands on time and energy, and makes it harder to maintain the home without introducing additional inharmonious elements in the way of service. It is possible, though not easy, to introduce one helper into the home life on equal terms, but very difficult indeed to do this with two. The increase of the house must be zealously resisted, if it is to be kept within the limits of one helper doing a fair share of work. And not only must the size be watched: the furnishing and decorating likewise need to be kept simple. It is a good rule in such a house to add nothing until actually needed, and to think well whether the pleasure and comfort it can give will repay the care and dusting it will require.

Working on these lines there will be a good chance 67 that our homes will grow beautiful, that they will fit our lives and be really filled with life. When we try how few things we can do with, we also begin to try how beautiful those few may be made. When we value our time, and the time of our helpers, by the pleasure which may be had from a wise use of it, we shall take care that any adornment we have, shall at least give pleasure equal to any other use we might have made of the time required to obtain it. Therefore none but good decoration will tempt us. We shall be content with our bare coloured walls, until perhaps some artist friend comes along and adorns them for us with some true ornament, which will be an abiding satisfaction, not only in the direct suggestion which it conveys, but also in the memories it revives of a pleasant visit and a guest happy in a congenial task.

RAYMOND UNWIN.


69

OF FURNITURE. Part 1.

A lecture given before a gathering of art workers.

Our instructions for to-night are that we show you examples of some of our work. But we have found ourselves unable to comply with the letter of the instructions, to confine the examples that we show you to-night to furniture; for, of furniture which can be considered apart from the building it furnishes, we have scarcely any to show. Complying as nearly as we can, we will as far as possible keep within what may be considered furnishing.

Before proceeding to the illustrations of our work, I would like to point out what we claim you shall find to be its leading characteristics: and among these I will name first, absolute simplicity, directness, and straightforwardness. I feel that we are to-day so completely smothered in lifeless and meaningless fuss of pattern, moulding, knick-knack, flourish and convention, and the machine-made & mechanically produced substitute for ornament, that it is well-nigh impossible for our artistic sensibilities to exist at all unless liberated from them. I would mention secondly complete unity and absolute harmony between all the parts, such as can only be obtained when a house, its decorations and furniture, are all designed by one man—or at least under the entire supervision of one man. Now when I claim that if the result is to be artistically satisfactory, nay also if it is to be70 satisfactory from the point of view of comfort and practical utility, the house and everything in the house must from the first be thought of and designed as a whole, the objection most commonly made is that a house should reflect somewhat the character, habits, and taste of those who live in it; and that if the architect is to make his influence felt in every detail of its furnishing and decoration, it will show his feeling, taste, and character, not his client’s.

There seems at first glance to be some truth in this; but a very little thought will show, that instead of the power of the members of a household to impress their own individuality upon their home being lessened by this extension of the architect’s influence, it would be greatly increased.

The architect who is worth anything will always design a house which will fit any particular client much better than would any house he could possibly find not designed for him: and of furniture, fittings and decoration, and all else belonging to a house, this is also true. The client wanting a piece of furniture, can otherwise only select, from those offered for sale in the shops, that which will most nearly fill the place of something designed specially to meet his requirements. His own taste and individuality can have no influence upon it whatever; no say in the form it shall take; this has been decided for him by a designer to whom he probably never gives a thought. But if his architect designs something to fit him & his house, the client can make his own taste felt from the beginning; he71 can make known to his architect his own personality, habits, and feeling; and have some chance of getting what will accord with these and moreover be in proper relation with the whole. It is not a question whether he shall have things to his own design or to that of another: this would be a different matter altogether: the question is: Shall he have things designed to fit in with him and his requirements, or do the best he can with what chance may offer him?

It has struck me as very wonderful how good a result has in rare instances been attained by one of true artistic feeling through long years of careful watchfulness making the most of such opportunities as came in his way of picking up & gathering round him—often in a house which has not a redeeming characteristic—furniture and decoration which his own taste has told him are good and reasonably congruous. But I have always felt: What would not this man have made of it if he had been able to have some influence upon the design for the house and the things in it! By choosing an architect capable of sympathy with his own artistic feeling, he could have done more at the very outset towards procuring a fitting setting for himself and his life, than he has been able to do by all his care and thought in selection.

That they who lack taste will also stamp their own individuality on the house they live in, no matter how extended has been the architect’s province, we know to our cost to be only too true.

All here know that the only right way to go to72 work to design anything is to give it that form which will best enable it to fulfil its functions, that form which is best adapted to the methods by which it is to be produced, at the same time giving it the most beautiful form consistent with & explaining these conditions of purpose and construction: and I contend further that to gain artistic success the position it is to occupy must also be taken into consideration; it must be designed for its place; and, to get the best result, its place must even be designed for it.

Socially morally and artistically one of the most necessary reforms to-day is that we should simplify our lives; we should shake ourselves free from all this hampering web of artificialities in which we have become so degradingly entangled: and in our homes we must make this possible for ourselves by first sweeping away all these fussy substitutes for ornament, all these supposed indications and requirements of refinement. Then, when we have done this, we must set ourselves to make those things which are necessary and helpful to real life and true refinement also beautiful.

But have you ever seen the ordinary room with nothing but the bare necessaries of educated and refined life in it? I can assure you the effect is not comfortable. And it is not to be wondered at that people condemned to live in such rooms should try to supplement their baldness by all sorts of added ornament and bric-à-brac. Some time ago a picture dealer was looking at some of our designs for rooms, and he said: “Yes, but it cannot be expected73 that I should admire them. You, and those who follow your teaching are the worst enemies I have. I want people to have houses of the ordinary type, that they may always be trying in vain to make something of them, by patiently buying & buying in the hope that by adding first this then that some approach to a satisfactory result may be obtained. Each of these rooms is in itself a complete and satisfactory whole: there is no temptation to add anything.”

Lest the foregoing should give any the impression that I do not find places for pictures, I will let this bring me to what sooner or later this evening I shall be called upon to justify myself in, namely, the amount of realism I admit in a picture to which I accord a place as an element of decoration. I hold that the degree of conventionalisation justifiably demanded in any decoration is only such as is necessitated by the following: The limitations of the materials and the processes by which it is to be produced; a just appreciation of the special beauties of these materials and characteristics of these processes; and a full recognition of its proper relations to all by which it will be surrounded, and with which it is to be combined as a component part of an architectural whole. There is no need for adding any further artificial restrictions. But as a legitimate reason for convention I would add a perfectly frank acknowledgment of considerations of economy. If you use one process in preference to another because it is less costly, there is no occasion to disguise this. But, spite of the74 convention justified by this needful economy, seek to retain something of the effect which the motif that gave the inspiration had upon you.

The easel picture hung on the walls of our houses is certainly unsatisfactory; that it is only more so when hung on the walls of an exhibition all will admit: but that all the advance we have made in our power to represent nature in realistic portraiture is in the wrong direction we cannot admit. We may insist that our easel pictures shall be regarded as complete in themselves, and thought of as detached & dissociated from all that surrounds them; but this is demanding an impossibility: they must form part of a whole. We find the easel picture is less unsatisfactory if we do nothing more for it than consider its frame, the colour scheme of its setting and surroundings with relation to it: give it a definite place made for it, and it is better still. But let us add to all its other dignity this too, that it fulfils all the demands made upon it in its capacity as an element of decoration, and it will be by so much the greater. The imaginative picture, or the picture giving a bit of nature with her mood, and having something of the effect upon one the real scene would have, only gains by being at the same time also decorative. And it is equally true that if decoration, by the suggestion of a beautiful scene, can also have upon us something of the uplifting effect such a scene would have, as a decoration it is finer.

Do not let us have convention pure and simple. If we are to retain all that art has gained in the75 development of the easel picture, we must face the problem fairly, not shirk it. Let us first have something which we feel to be really beautiful, and then let us suffer it to undergo only such conventionalisation as is dictated naturally by the conditions and processes of its production, the limitations of the materials from which it is to be created, and a true feeling for fitness; never losing sight of the essential elements of the beauty of our motif and the factors in creating that beauty, and sacrificing nothing we can help of its meaning and charm.

BARRY PARKER.


77

OF FURNITURE. Part 2.

There is one point touched upon by Mr. Parker in his paper, about which I should like to say a few words: I refer to the question of simplicity in furnishing. I feel that in showing to an assembly of art workers many of the illustrations which we wish to show, some further explanation on this point is due.

There may be rooms required for state purposes in the palaces of kings or the mansions of the great, which call for elaborate & very ornate furnishing: such I do not propose now to consider. I would refer rather to the homes of average middle-class people, where this style of furnishing would be out of place.

Such people have usually thought it necessary for their houses to contain several sitting-rooms, calling them dining-room, drawing-room, and breakfast-room, although the means at the disposal of the great majority would not allow three decent rooms; and the desired number could only be obtained by reducing them all to tiny box-like chambers, not one of them large enough to make a comfortable living apartment. From this supposed necessity has sprung the typical modern suburban residence, which consists of a series of these small box-like chambers more or less cleverly fitted together; while to meet the demand thus caused, we find the warehouses filled with ready-made furniture, supposed to be suitable to these78 rooms, inscribed “drawing-room suite,” “dining-room suite,” and so on. These also I will not consider; they have no interest, no actual touch on life. Such houses and the furniture which is made for them are no more fitted to the lives of nine out of ten middle-class families than would be the old hall and solar of the middle ages with their rude fittings. My contention is that the great majority of middle-class families live in one sitting-room. It is even pathetic to watch their attempts to do this in houses which seem specially designed to make it as difficult as possible. Many make the dining-room serve them for a living-room, wasting the best room in the house by keeping it vacant, except on more or less state occasions; others live in the drawing-room, taking their meals only in the dining-room. But whatever the arrangement, they all alike seem to be hampered for want of a good comfortable living-room designed and furnished as such.

I want specially to speak of rooms of this class, in the designing and furnishing of which we are at once brought into touch with the daily life of the household, and have scope to consider and meet their actual requirements. In such a room, if they possessed it, most families would take some at any rate of their meals; suitable table and seats must therefore be provided, with something of the nature of a sideboard or dresser to hold the many accessories which are most conveniently kept in the room. The ladies would do their work here and should have cupboards or other provision for their numerous apparatus. A piano and place to keep79 music will generally need providing; while book shelves, cupboards or drawers for newspapers and magazines, will be required; and some kind of writing table or bureau properly fitted to contain the household stationery & business papers would mostly be a great boon. The room too should have cosy seats, and something in the way of a sofa or settle as the family will sit and rest here; and these must be comfortably placed in relation to the fire, door, and windows. A place would not uncommonly have to be found for children to spend at any rate part of the day, which implies a toy drawer and some space for play.

It is of course only in the smaller middle-class house—which by the way is numerically far the most important—that the whole of the family life is carried on in one sitting-room: but the need of a good living-room is none the less felt in many a larger house where the means of the occupants will allow of their having more rooms than one in regular use. In such houses some of the functions of the living room will no doubt be provided for separately. There will be a nursery or play-room for the bairns in one house; a special room for meals in another: in one, afternoon callers will be received in a boudoir; in another, a study or library will be set apart for more studious pursuits; while the tastes of some families may demand a room set apart for music. But whatever rooms may be added, still, in the great majority of cases, there will be needed one to serve as a general living-room. Just as in the middle ages the great hall was the80 centre of the house, all the other chambers clustering round and being subordinate to it; so in the modern middle class house a good living room is the first essential, and all the other rooms should be considered in relation to it.

This living room requires furniture and fittings specially suited to its various functions, and its requirements can no more be met by a suite of dining-room or drawing-room furniture than they could by a set of kitchen things. If we remember that large numbers of such houses as we are speaking of are worked with one servant, and the majority with not more than two; it will be obvious that this room, which in so many cases will be used for an early breakfast, must be so arranged that it can be easily and quickly cleaned. If we consider further the great number of articles that must be kept handy in such a room, to say nothing of the people themselves who are to occupy it—for whom after all the room exists, and as a back-ground for whose life it alone has any reason for being—it will be evident that the furniture cannot well be too simple.

If the result is not to become a crowded jumble, ample allowance must be made, in considering the decorations and furnishing, for the life that is to come into the room, and for the hundred and one articles which we may call the implements of such life. These of themselves must form a large element, good or bad, in the decoration of a room; and could they all be obtained graceful and beautiful, there would be a liberal supply of ornament.81 But this is one of the greatest difficulties; for, while it is possible to find beautiful plaster-work, carving, gesso panels, and so forth, it is almost impossible to obtain the necessary implements of life even tolerably elegant.

In vain do we seek to make a room look beautiful by the elaboration of its decoration and furniture, irrespective of all that goes to make up the life that will be lived in it. The successful room is the one which looks well with all the life in it, not the one which looks its best before it is occupied. It is only by making proper allowance for this life that a living room can be made to look well. Great simplicity is needed in the treatment of a room which may so soon become crowded and restless; but which may also, if properly treated, be more charming and homelike than any other, just because it is so full of life and the evidences of life—a decoration after all by no means to be despised.

RAYMOND UNWIN.


83

BUILDING & NATURAL BEAUTY.

Around the cottage I live in there is a large rookery, spreading over many trees which form a small wood on the hillside. Last year a pair of rooks began to build a nest in a beech-tree that stands by the cottage: they chose a large bough over-hanging the road, quite away from the general colony, and in a very prominent position. This was evidently the cause of great annoyance to the black-coated community, who again and again destroyed the half-built nest. The enterprising pair maintained their position however; and after some weeks of contention got the nest completed, by working in turns, one mounting guard while the other fetched the twigs. They reared their family without further molestation, so far as I could observe; but this spring the first thing the rooks did was to destroy the last remnants of the nest left by the winter storms.

This interesting little episode of rook life set me musing as to why the community should object to this nest. I could only suppose that its isolated and prominent position offended their sense of the general fitness of things, and that they wished to guard against the first beginnings of “Suburban Villadom.” If so, we must I think commend alike their good sense and their good taste. For there is nothing which it seems more hopeless to harmonize with natural scenery than the modern town suburb. We find plenty of cities, towns, and84 villages, castles, mansions, and cottages, which are a joy in the landscape; but when a modern town begins to sprawl its squalor or its suburban gentility out into the fields, what desecration of scenery follows! Most people feel this without realising the cause very fully. But if we look for it, we shall find that modern suburbs specially offend in coming between the town and the country; so that, however the city may be fitted to beautify the landscape, we cannot see it from the fields; nor can we catch a refreshing glimpse of the cool green hillside from amidst our busy streets. For between lie miles of jerry cottages built in rows, or acres of ill-assorted villas, each set in a scrap of so-called landscape garden.

In the old towns which we admire when we chance to come on them, we notice that the country comes up clean and fresh right to the point where the town proper begins: and it does begin indeed: honest town, confessed, which does not seek to look half-countrified. In the oldest cities we sometimes find a wall with the country coming right up to the gates, which adds to this effect. In old times all the townspeople lived in the town, and tried to make it comely as a town; and when this was done it generally looked pleasing in the landscape. It was possible to get most charming peeps of country from its streets—framed in perhaps with an old gateway, or with some decent town buildings. Of our modern citizens, all who can afford it live outside the town, removed from those who work to make them wealthy. Hence they lose85 interest in the town as a dwelling-place, and we get a great central business quarter, surrounded by the residential suburbs containing only poor town buildings or nondescript half-country dwellings. It is not however with suburbs only that we spoil scenery; in isolated buildings, or groups of buildings, we very often put up what is offensive to the lover of country; and it will I think be both interesting and useful to enquire a little further why the buildings which our forefathers put up mostly adorn a landscape, while our own erections so frequently spoil it.

Much of the charm of old buildings is no doubt due to the kindly hand of Time, which not only heals the scars that man makes on the earth, but tones down the raw surfaces, and softens the hard lines and colours of anything he may build. But not to Father Time can we give all the credit. It will be more than he can do, I think, to make our modern suburbs look as beautiful, as fitting in the scenery, as many an old city or country town does. Apart from the question of beauty in the style of building, which of course is an obvious factor of great influence, there are a few more easily understood reasons for the difference between old and new. If we take for example their position: do not old houses and villages generally seem to nestle in a valley, under a hill, or by the edge of a wood or copse, and both by their placing and style convey the idea of shelter and retreat? Sometimes this characteristic was carried so far, that we find houses placed so as to get little or no view. But they were86 built for busy people who lived mainly out of doors, and returned to their shelter at night as the rooks come home to roost. Too often now we place a building so as to strike a note of defiance with surrounding nature. The thing stands out hard and prominent in the landscape; shouts at you across the valley; and through not co-operating with the scene, fails to convey anything of that sense of nestling in a fitting nook, or on an appropriate ledge—that sheltering under Nature’s wing as it were—which makes a building look really at home.

Then, too, does not the old building seem almost to grow out of the ground on which it stands? Built of the local stone; roofed with material common to the district—thatch, stone shingles, or grey slates, perhaps; harmonizing in colour with the rocks and soil; it is as appropriate to the earth on which it rests, as the twig built nest of the rook is to the tree top on which it sways so lightly and yet so securely.

As we pass from county to county, rejoicing in the unspoilt bits of old villages and towns, we cannot but notice how much of the restful quiet beauty is due to the general harmony. We see the grey stone-roofed village of Yorkshire and Derbyshire, so quietly fitting to the country of rocks and stone walls; the green slate of Cumberland and Westmoreland, that country of bright colouring; the thatch of Shropshire or Somerset, always cosy and homely looking, whether on the timber-framed building or on the whitewashed cottage; or again,87 the purple slates of North Wales, unobtrusive among the dark blue shadows of her towering peaks, and fitly covering in the cottage whose walls are of rough slabs of the same slate. The red tile, too, coloured with the iron which tints the soil, more widely distributed and in greater variety than any of the roof coverings, though not exactly a natural product only needs to be clothed with the golden green of the lichen to look as much at home as any of the rest: we know it well in Staffordshire, and to think of Whitby without its red roofs is to realise at once what beauty it can give to a scene. Each of these roof coverings has a special beauty of its own; some look well almost anywhere; but we do not always realise how much of roofs we see in a landscape, or to what extent the restful charm of old places springs from their harmony with surroundings and the general prevalence of one material in the district.

Our fathers were not tempted as we are in this. They had to use the local material and to stick to it. There were no railways in their time carrying blue slates to Whitby, or red tiles to North Wales. Now all these materials are brought to our doors, and the builder chooses each according to his own fad; and so we get all sorts of materials and colours hopelessly jumbled up together, with no thought of general harmony.

Our manufactured materials too are less beautiful. Our tiles by perfect machinery are made so true and flat that a modern tile roof looks as though it had been ironed with a polishing iron, like a shirt88 front. And both our tiles and bricks tend to become so hard and forbidding that no kindly lichen will clothe them, no wind and rain soften and tone them. It gives one something of a shock to see the delicate clematis and the clinging ivy struggling with a wall which, after twenty or thirty years, still looks as hard and new as the day it was built. The old tiles were a little curled in burning, and had a surface rough enough to afford lodgment for moss and lichen; and so the lines were less hard, and the newness of surface and colour soon mellowed into all sorts of lovely shades.

Many an old building that has little pretension to fine architecture, yet adorns a scene of natural beauty by its simple fitness of design, where a modern one would probably spoil it. Such design was the outcome of a natural effort to get the most use and convenience out of materials thoroughly known. Hence a general suitability is found between design and material, and an obvious connection between quaint features and the want that has called them into being. Look at the plainest old four-square thatched cottage, and there will nearly always be some interest in the way the thatch has been coaxed up over a window, or a ridge worked to avoid a chimney gutter, which redeems it from baldness. The same skilful handling of tiles is found in all real tile districts; and so we find many picturesque gables, which we should miss in a country of slates or stone shingles.

There is on all hands evidence of a willingness to give labour without stint; to do a job well and a89 bit more; to linger over it, and see if a little more work here and there would not improve the look. In fact, we read in these old buildings, as in an open book, of a simple workman who was something of an artist, one who could take pleasure in his work, finding joy in the perfection of what he created, and delight in its comeliness.

Whenever we again raise up such an army of builders, working at their trades with the pleasure of artists, then will all buildings become as beautiful as of old; then will it be possible for such workmen, co-operating with a true architect or master builder, to raise fine architecture, like our old cathedrals and abbeys. No effort of office-trained architects, with workmen whose chief interest on the job is to find ‘knocking-off time,’ can ever take the place of the co-operation between real craftsmen under the leadership of the most able among them: for it is to this that we owe most of the building that we can truly say adorns our country.

RAYMOND UNWIN.


91

CO-OPERATION IN BUILDING.

As beautiful as an old English village.” The phrase arrests our attention and calls up many a pleasant picture stored in our minds; but with the remembered beauty there comes too the associated sadness of something loved that is fast passing away. The picture we recall may be the view down some long wide village street bordered with clusters of cottages, some opening direct on to the roadside, some with their bright bits of flower border in front; here and there a break in the buildings is marked with the dark foliage of trees in a larger garden; a dignified forecourt with its iron railings reveals an old manor house, or a gate-way in a high wall overhung by elms leads to the vicarage; while at the street end where the road turns away is the lich-gate, leading to the church whose parapetted roof and slender spire rising far above all the surrounding buildings complete the whole group. Or maybe we picture to ourselves rather some village green, with the rows of sunny whitewashed houses, the barns and haystacks of an occasional farmyard, the end of an orchard, and the village school, that are gathered round it.

In such views as these there are houses and buildings of all sizes: the hut in which the old road-mender lives by himself, the inn with its ancient sign, the prosperous yeoman’s homestead, the blacksmith’s house and forge, the squire’s hall, the92 vicarage, and the doctor’s house, are all seemingly jumbled together; and mingled with them are barns and village shops, wood-yards and wheel-wrights’ sheds. Yet there is no sense of confusion; on the contrary the scene gives us that peaceful feeling which comes from the perception of orderly arrangement. This is the more surprising because the order is rather intuitively felt than seen or consciously realised by the beholder. It is due very largely to the beautiful grouping of buildings and roofs, a grouping which has come so inevitably that it seems as if it would be somewhat difficult to avoid it, or to utterly spoil it. Certainly where many buildings of various characters and sizes are gathered together, as in a village, a picturesqueness of grouping is rarely absent even when the individual buildings have in themselves no special beauty; and very often the introduction of one or two really ugly modern buildings detracts little from this particular charm.

The village was the expression of a small corporate life in which all the different units were personally in touch with each other, conscious of and frankly accepting their relations, and on the whole content with them. This relationship reveals itself in the feeling of order which the view induces. Every building honestly confesses just what it is, and so falls into its place. The smallest cottage has its share of the village street on to which the manor house also fronts. It is content with that share and with its condition, and does not try to look like a villa. It is this crystallisation of the elements of93 the village in accordance with a definitely organized life of mutual relations, respect or service, which gives the appearance of being an organic whole, the home of a community, to what would otherwise be a mere conglomeration of buildings. This effect is greatly enhanced where the central feature around which the village has clustered, the church, castle, or manor house, is of sufficient size and architectural interest to challenge comparison with the whole village rather than with the individual houses. The impressive pile of the old Priory as seen across the valley towering above all the other grey roofed buildings of the little town of Cartmel, is a fine example of this. The sense of unity is further increased in most old villages by a general harmony in colour and style of the buildings themselves, due to the prevalent use of certain materials, which are usually those found in the district.

In the modern building-estate all these elements of beauty are entirely wanting. The land is cut up into little plots all about the same size; these are sold to a chance collection of people who erect on them houses of any conceivable style, or lack of style; each deals with his own plot quite regardless of the others; and every house seems to be wishing to dissociate itself as much as possible from its neighbours, to look as distinct and imposing as it can. Ground enough not being allowed for each house to stand comfortably within its plot, such separation as exists only makes it possible for every house to block the view from some other, and easy94 for the occupants to over-look their neighbours and realise their near presence all round to a maximum extent. No grouping of buildings is thought of nor any organized arrangement, beyond occasionally some feeble attempt at laying out streets; and it is rarely indeed that we seem able to erect a public building of any sort at all in scale with the extent of the surrounding houses.

To compensate for the loss of the interest springing from variety of grouping, a loss specially evident in the old-fashioned four-square suburban villa, an attempt is now mostly made to introduce some special features into each individual house, and so to create an artificial picturesqueness. This is not uncommonly done by needlessly cutting up the roof with turrets from which there is no outlook, or gables which serve no purpose except to provide an excuse for a little black and white half-timber work. A street of such houses is however even less satisfactory than one of the old square box houses, in that it is more artificial, and lacks a certain element of dignity which its predecessor often acquired from its very simplicity. In short, around all our towns are spread patches of villadom of the beauty of which no one can cherish any memories, but the ugliness of which causes them to be regarded by many with a cordial hatred; so much so that to the lover of natural scenery the commencement of a new house is regarded as a sure sign of the coming destruction of the old beauty.

Modern conditions of life and work are not conducive95 to the production of great architecture, and it seems probable that we shall have to await some change in these conditions before much that is really fine in building will be accomplished. But in the simpler buildings required for domestic purposes there are marked signs of improvement. Already a few architects are meeting our wants without affectation or pedantry, but with simple directness and honesty of construction, and are producing individual buildings of great beauty; but so long as these remain isolated examples, mere units in a chance collection, they can do little to help the whole effect. The various buildings must be brought into harmonious relations one with another; the suburb or settlement must be conceived in some broader spirit and developed in relation to a definite idea of the whole, if any improvement is to be effected.

We cannot of course put back the hands of time, nor can we re-create the spirit which built the old churches that crown so many villages. The relationships of feudalism have gone, and democracy has yet to evolve some definite relationships of its own, which when they come will doubtless be as picturesque as the old forms. But allowing full force to these disadvantages, we could, if we really desired it, even now so arrange a new building site that it should not be an actual eye-sore, and might manage that it should have some little of the charm of the old village.

Thanks to the growth of taste among all classes of people there is springing up a demand for96 something of the kind. In all the large towns are numbers of people who hate the ugly & dreary life that they are condemned to live in them, who love the country and country life, and who will travel long distances to and from their work that they may be able to enjoy them. These people do not want to live in isolated houses, out of sight of their neighbours; they are townspeople of sociable instincts: but neither do they desire to live in a mere extension of the fringe of the town. What they really want are country villages, little centres of life large enough and varied enough to give them interesting human society and a few of the more necessary comforts of modern life, such as a post office, a railway station, efficient drainage and water supply. These people have many common interests, much that all would wish to preserve in a new home, as, for example, fresh air, and an open view of country that cannot readily be spoilt. Just such an amount of associated action as would ensure these advantages for them all, would suffice to give the sense of cohesion to the whole settlement which is so lamentably wanting when each struggles ineffectually to secure as much as he can of them for himself alone. With some co-operation the maximum of these advantages could be obtained for every individual house, be it large or small; without it none but those rich enough to purchase a large tract of country for themselves can be secure of even a limited share of them.

Within easy reach of large towns, estates & farms are constantly changing hands at prices little above97 their value as agricultural land. Frequently we find the enterprising purchaser takes advantage of the demand for country homes: he spends a few hundred pounds in developing his purchase as a building estate, by making roads and laying drains; then he cuts it up into small plots and sells it at three, five, or even ten times the rate at which he bought it. If a few of those who wish to secure a country home were to purchase such an estate or farm among them, they could get all the advantage of cheap land themselves. If they were then to develop the site on co-operative lines, they could obtain many other equally solid advantages. The houses could be grouped together and so arranged that each would obtain a sunny aspect and an open outlook; and portions of the land could be reserved for ever from being built upon to secure these views.

See plates 11, 38 and 39.

The arrangement that should be adopted to obtain the best result, would depend entirely on the nature of the site. If it were on the ridge of some rising ground, probably the best plan would be to group the houses at each side of a good broad roadway, taking the wide village street as the suggestion; while on a good southern slope, the most successful plan might be to gather the houses and other buildings on three sides of an open space, adopting the village green as the model. Where the site was large enough, and the slope sufficient, a second green with its houses could be arranged, low enough not to obstruct the view from the upper one; or where two sides of a valley were98 included, villages might be placed on each of the slopes, leaving the valley below for ever free to afford a pleasant prospect for each village. The particular arrangement to be adopted would be a matter for most careful thought, and no building should be commenced until some definite conception of what the completed village was to be like had been worked out. The sites for prospective schools, church, or other public buildings, should be reserved from the first, in accordance with the size to which the available land would allow the community to grow. The houses should be clustered together as much as possible, not set villa-wise each in the centre of a little plot. Some few houses of wealthier members could stand back in larger grounds, taking advantage of outlying positions or sharing in the common outlook as seemed best: their gardens and entrances would make pleasant openings in the buildings. But the majority of the houses should be gathered into groups, which would inevitably acquire picturesqueness from the variety both in size and form of the buildings.

A good number of the houses too might be open to the road or green. The unfenced common coming right up to one’s doorstep, always gives a charming sense of openness whether viewed from within or from without; a sense in no way diminished by the contrast that occasional fenced gardens or forecourts offer where the houses are set back somewhat. All sorts of individual tastes and needs would afford opportunity for obtaining variety:99 the one thing to be avoided at all costs would be the producing of anything like a street of detached villas.

The common insatiable desire for detachment is very remarkable; it appears to arise mainly from a resigned acceptance of the jerry builder’s party wall as the inevitable one. Everyone suspects a party wall, looks to hear through it his neighbour’s child in the dead of night, or his piano on a Sunday afternoon. Guarantee a sound-proof party wall, and few will be able to give any valid reason why there should be from ten to fifty feet of useless ground between every two houses. In a properly built house, one is really much less conscious of one’s neighbour, and much less over-looked by him, if his house is attached, than if it is a few yards away. Where it is desired, however, many minor devices, such as a highly walled garden or a covered-in yard, may be used with effect to increase the number of separate houses without destroying the grouping.

Artistically, the success of the plan would depend largely on the clustering of the buildings, the avoidance of mere rows on the one hand and of detached villas on the other. But, in addition, some controlling influence must maintain a certain degree of harmony. The use of local materials as far as possible should be encouraged, and the introduction of discordant colours or styles of building be prevented. The extremest degree of simplicity should be allowed, but anything pretentious, showy, or false, be rigidly excluded. Probably this100 general control could be best secured by giving to some architect in full sympathy with the scheme powers similar to those usually possessed by the agent of a large ground landlord, though exercised in the latter case more often to maintain the value of the property than its beauty.

The question of design in the individual building is one that cannot be touched on here, though obviously a matter of vital importance to the degree of beauty attainable; rather I seek to emphasize the great advance which is possible to us by a right use of such taste and designing ability as may be readily commanded to-day. So soon as the desire for some collective beauty in our buildings has been stimulated, the chief difficulty will have been overcome. If by some little co-operation we can arouse interest and pride in the matter, time will develop that collective appreciation of what is fitting, to which we must look for final success.

See plates 36 and 38.

Association for mutual help in various ways is undoubtedly the growing influence which is destined to bring to communities that crystalline structure which was so marked a feature of feudal society, and the lack of which is so characteristic of our own. When our new settlements begin to feel this influence they will again take on some of the unity which comes from organic growth. And as this influence increases in force, and interest and thought become more and more centred in the communal institutions and buildings, so will these begin to grow in beauty; for the people will wish to adorn them. The beauty of the village and its public101 buildings will then become a first consideration, and the pride of the inhabitants will be displayed in these, not in the aggressive elaboration of their own houses.

There is the more hope of this because the practical advantages to be derived from such co-operation as suggested, are so great and obvious as to form just such a reliable basis of utility as is required for the healthy growth of art. Without going fully into this side of the question, a few of the more obvious directions in which co-operation could help people of limited means, after they had associated for the purpose of purchasing and developing their settlement, may be referred to. The improvement and use of the land not required for building purposes, by draining, planting of fruit trees, or the erection of a suitable dairy, would be one of the first and most important of these; this would secure a good supply of pure milk and fresh farm produce, and at the same time allow the open ground to be enjoyed to the full for recreative purposes. A laundry would be another enterprise specially easy to organize on co-operative lines, and even in a village too small to support a fully staffed laundry, it would make all the difference if everyone could have the advantage of a well appointed wash-house instead of having to use the ordinary inconvenient cramped scullery with no proper appliances. In a community where several business men daily journeyed to the town, a co-operative conveyance to and from the station could be arranged in connection with the farm, as could also102 the general carriage and cartage requirements. In providing education for the young and recreation for all, association would be invaluable; while it could easily be used as a means of buying, on advantageous terms, in large quantities, commodities which cannot economically be obtained in the country in small quantities, and of securing many valuable services for all which would be out of the reach of individuals.

It is of course not necessary that the first steps towards the development of such a building scheme should be taken by the prospective tenants. A landowner might well work on this line; he would find in it a means of adding greatly to the value of estates which might not be available for an ordinary building scheme. If he would lay out a plot of land and offer to all comers a site of such size as they wanted with sufficient open land between them and any future buildings that might block their view secured by perpetual guarantee, he would get plenty of applications even in positions that are not the most favourable. He could also, by building some houses of various sizes and carefully grouping them, give an example of the sort of building he would encourage, which would soon be followed. By retaining some control of plans for buildings to be carried out by others on his land, he would be able to secure a general harmony and a consistent development. He could too enlist the interest of his tenants or purchasers in the growth of the colony, and foster among them co-operative effort in that direction.

On the same lines, also, the state or municipal landlord 103 might relieve the over-crowding in towns by developing hamlets and villages in the out-lying districts wherever they had, or could get, suitable land. And even in the towns and immediately surrounding suburbs, much might be done to remove the dreary ugliness of the streets by the use of co-operation in building, and by the fostering of it in the occupants of the houses. The arrangement would need to be different for a town or suburb, where land would be costly, from that suggested for a village. For just as the price of land in the centre of cities regulates to a large extent the height to which it is profitable to carry up the buildings, so on the outskirts it must determine the area of land that can be allowed to each house. By co-operation it may be secured, however, that all the land which can be afforded shall be available to give air and outlook to all alike, while its actual occupation can be reserved for those who really want a garden.

See plates 6 to 10, also 34 and 35.

In the country we have seen how co-operation could give back to us some of the picturesqueness of old villages. In the same way it would add character and dignity to our towns, even to rows of cottages. What more satisfactory town buildings could one desire than some of the old colleges? Yet these consist primarily of rows of small tenements grouped round quadrangles or gardens with certain common rooms attached. The hall, the chapel, and the gatehouse, are prominent features; while the cloisters, where such exist, affording104 covered ways from the tenements to the common rooms, help to give a sense of unity to the whole. Why should not cottages be grouped into quadrangles, having all the available land in a square in the centre? Some of the space so often wasted in a useless front parlour in each cottage, could be used to form instead a Common Room, in which a fire might always be burning in an evening, where comfort for social intercourse, for reading, or writing, could always be found. Such a room could be used also for music & general recreation, and might add much colour to the lives of all those who frequented it. To this Common Room could be added a laundry and drying-room fitted with a few modern appliances which would not only reduce by half the labour and time occupied in the weekly wash, but would take the bulky copper and mangle out of each cottage, and relieve them all of the unpleasantness of the steam and the encumbrance of the drying clothes. In connection with this a bath-room could be arranged for groups of the smallest cottages, while the growth of co-operation would soon bring the common bakehouse and kitchen. From this to the preparation of meals and the serving of them in the Common Room would be only a matter of time; for the advantage of it is obvious. Instead of thirty or forty housewives preparing thirty or forty little scrap dinners, heating a like number of ovens, boiling thrice the number of pans & cleaning them all up again, two or three of them retained as cooks by the little settlement would do the whole, and could give better and cheaper105 meals into the bargain.

It is not only to those who live in cottages that co-operation offers advantages. From another class we hear much of the great servant difficulty. Hotels, boarding houses, and hydropathics, are springing up in every direction to accommodate those who are seeking to escape from the worry of servants, the trouble and expense of jerry-built houses, and the endless small anxieties that go to the running of a separate establishment. But hotels and boarding houses do not really meet the wants of this class. What they need is some arrangement by which they could retain the privacy and individuality of a separate house, while gaining the advantage, which they have in a boarding house, of properly organized service and skilled cooking. These needs would be admirably met by groups of houses arranged to give ready access to a communal establishment, where meals would be supplied, laid either in the common dining room or in the private house as desired; where the occasional use of commodious rooms could be obtained for entertaining purposes; and from whence properly trained effective helps could be sent out daily, for as long or as short a time as might be required, to do all the domestic work of the separate houses, or such part of it as the occupants might prefer not to do themselves. Such an establishment could readily be built and worked on co-operative lines, giving many of the advantages of hotel life without entailing its disadvantages or its costliness.

The planning of the Common Rooms would106 require much thought and care. On this would depend greatly the success of the co-operative effort. The usual small meeting-room, high, four-square, having a great deal of tawdry decoration, but lacking anything whatever to give a sense of comfort or to add a bit of interest, would be fatal. High the rooms should be, in parts, sufficient to give air space and promote easy ventilation. But there should be deep recesses or ingles with low ceilings, places which by the contrast of their special cosiness should attract people to sit there. If there could be a little gallery for the musicians, a deep balcony overlooking the street or the gardens for the smokers, these would prove great attractions for which everyone would gladly dispense with the adornments usually thought necessary for public rooms: though adornments of a more interesting character there well might be, and undoubtedly would be, when people came to appreciate their Common Rooms. As such co-operative quadrangles multiplied, the necessary variety to suit different habits of life would arise; for even those composed of houses of similar size would become differentiated, somewhat as different colleges in a university acquire a character for hard reading, for athletics, or for sport, and each could choose according to his tastes. The essential thing from the æsthetic point of view is that there shall be enough co-operation to secure some grouping of buildings, some centralising influence on them.

How different our streets would look if instead of the rows upon rows of dreary uninteresting107 cottages and hardly less dreary terraces of larger houses, we could have blocks such as suggested. Some might be adorned with a colonnade facing the street, and leading to the common rooms at the corner; some might have a comely arched gateway into the court as a special feature, through which, as one passed, a peep at the quadrangle, tennis ground, or garden, would be obtained. There need be nothing elaborate about such buildings. Quite simple cottages or houses, with some variety of size to suit large and small families, a little taste in proportioning doors, windows, and other details, a little imagination in welding them into a complete whole—these would suffice to change our dreary streets into something, the beauty and interest of which would be a constant source of pleasure.

Architecture has always reflected the condition of the society in which it flourished, being great in times of organisation, and deteriorating in times of disintegration. Recently it has very clearly represented the inordinate desire for individual independence. One sees terraces of houses, each painted a different colour to try and emphasize their independence. Or one may find the gable end of a porch which is common to two villas, painted half a bright green to match one house, half a chocolate red to accord with the other. These may be extreme instances, but they are very typical of the length to which independence has been carried. Society is, however, now realising very fast that this independence is no end in itself, and is only108 good in that it sets free the individuals to form new relationships based on mutual association. This is already having its effect on architecture, in that it is now not uncommon for the individual to make some effort to have his buildings made beautiful for the public to look at, as well as convenient for himself: the interest of the community in the matter is so far acknowledged. Very soon it will seem equally obvious that the relations of the separate buildings to each other should be considered, and concerted effort be directed to the creation of streets with at least some unity and dignity of effect, and settlements that, if they may not have all the charm of the old English village, shall at any rate look at home in their country surroundings.

RAYMOND UNWIN.


109

THE ART OF DESIGNING SMALL HOUSES AND COTTAGES.

By Barry Parker and Raymond Unwin.

A paper read by Mr. Unwin before an audience of Architects in January, 1901.

In the domestic branch of architecture, each commission presents to us a fresh problem, full of human interest, the right solution of which demands that we shall consider it from many points of view. We must look upon the task primarily as the providing of a suitable setting for the life of our client and his family. In this connection, not only his actual wants but his ideals of life have to be taken thought of; nor must we overlook our possible influence upon him through his house.

Again, each house appeals to us as a new creation of our art. We are in much the same position as the portrait painter: the likeness, truly, is that of the sitter, but the interpretation of it, the setting, and the colour—in short, the art of the picture—belong to the painter. So, too, the house as a habitation belongs to and must satisfy the client, while as a work of art it belongs to and must satisfy its designer. In this matter we stand as guardians, alike of our reputation and of the general interest of the public as beholders of the building. The right of the public to be considered is much clearer than many seem to realize. No one who might add to the joy of life by building something comely110 should add to its gloom by building what is ill-looking.

I do not anticipate that these considerations, or those to which we shall presently come, are new to you. But it is probable that they would appeal to each one in a different order of relative importance, so that in no two of us would our attitude towards the problem be exactly alike. In no house can every advantage be obtained; each must be somewhat of a compromise; in each there must be a sacrificing of what we deem less important to secure what we esteem of greater value. It follows that the variety of our attitude must produce individuality in the result. When, therefore, you did me the honour to suggest that I should bring this subject before you, I felt that the best response I could make would be to try to give you, as from one fellow-workman to another, some account of the way in which we approach our domestic work, hoping, that in comparing this, and the results which we shall show, with other methods and results, you might find some little interest.

Suppose then that we have received a commission for a dwelling house; that we have made ourselves sufficiently acquainted with our new client’s wishes, his mode of life, and habits, by getting him to write to us very fully of everything he would like to be specially considered, discussing points with him, or visiting his home, as circumstances may suggest; and further, that we have made full notes of all the instructions and information thus gathered for our111 own use; the first thing is to visit the site and devote some time to thinking out the problem on the spot.

The site is the most important factor to be considered, for it usually suggests both the internal arrangement and the external treatment. If the site is a large one the position of the house upon it must first be determined. In past times the house was regarded mainly as a shelter, and this greatly influenced the choice of its position. But we do not to-day so much build shelters for people who live out of doors, as dwellings whence they may occasionally go forth. A primary consideration then must be, to so place the house as to afford its occupants the greatest possible enjoyment of such beauty of adjacent country or grandeur of distant view as the site can command. While doing this, however, we must place and design the house in such a way that it shall not stand out as a disturbing excrescence, but shall look at home in its site, in harmony with its surroundings.

This consideration of the house as a detail in a larger picture will bring us to a determination of its general form, its treatment and its colouring. Some positions demand a lofty building, while others seem to suggest that it be kept as low as possible. And in the country, certainly, the low house is more successful, more in harmony with the scenery; perhaps because it is suggestive more of man’s dependence upon Nature, less of his defiance of her powers. In the choice of materials112 and colouring, harmony rather than strong contrast should be sought. There is only one sure way of obtaining this at all generally, which is, of course, to keep to local materials and local ways of using them. At any rate I think we may lay it down that strong reasons of use or economy are needed to justify a departure from these. Where a departure is made, let the contrast with what is usual in the district be as slight as may be. We do not enough consider when we introduce for the first time into some valley a bright red roof, how it will haunt the eye from every point of view, and may go far towards marring the beauty of the whole scene by destroying its restfulness. We should let the surroundings which are to constitute the picture suggest the colouring as well as the form of the new object we are about to introduce. Some definite scheme suitable to the position should be adopted, and colours of paint and any enrichments made to contribute to it.

Greatly as must the site influence the external treatment of the house, its internal arrangement will be even more definitely dictated by it. The position of each room in relation to the points of the compass & the outlook should be determined on the spot. It is now pretty generally realised that no sacrifice is too great which is necessary to enable us to bring plenty of sunshine into all the main living rooms. In the South of England perhaps some moderation must be observed in applying this rule, there being no inconsiderable113 number of days on which a too sunny room may become unbearably hot; and, where the size of the house will allow of it, to have an east and west room is often a great boon. But over the greater part of our country, certainly in the Midlands and the North, the importance of arranging for the few days when the sun is oppressive is small indeed compared with that of planning to suit the many days when every hour of sunshine is of the utmost value. The general rule, then, would seem to be, so to contrive as to get the sunshine into a room at the time when it is most likely to be occupied. Let a study or breakfast-room be east or south-east, a general living-room or drawing-room south and south-west. A good western window in the room we most occupy during the latter part of the day, gives us many an extra hour of daylight; while the opportunity it affords us of habitually seeing the bright colour of sunset is a privilege which is worth some effort to obtain. A kitchen is best north-east or east, for the first coming down into the fireless house may well have its cheerlessness reduced for the servants by what sunshine is to be had at an early hour; later in the day, when the kitchen is hot with cooking, the heat of the sun should not be added. A bath-room and bedrooms, too, are pleasant with an eastern aspect, though some cannot sleep in a room into which early sunshine can come.

Next only in importance to such considerations of aspect, and certainly important enough to modify114 them somewhat, is the question of prospect; for a pleasant outlook is a boon only less great than a sunny aspect. We must not ignore a fine view even when it can only be had to the north, and much less must we allow any trivial conventions, like the old commonly accepted idea that the front of the house should be to the road, to betray us into sacrificing such solid advantages as sunshine and a pleasant view. In fact, to produce a good plan, one should go to the site without any preconceived conventions, but with a quite open mind, prepared to think out each fresh problem on the spot from the beginning, and to receive all the suggestions the site can offer. I hope you will pardon me if I seem to insist unduly on the importance of so elementary a principle as that of building to suit each site. But one sees the principle so commonly disregarded that it is needful to emphasize it. Not only do we find houses perched uncomfortably on the shoulder of a hill, or thrust into prominence one way or another regardless of their effect on their surroundings; but, in arrangement, the disregard of the site is carried so far that semi-detached houses are even built with their plans just reversed, so that a plan designed for the north end is made to serve for the south, or one arranged to suit the east side allowed to pass for the west. Before leaving the site one should be able to carry away not only detailed notes of drainage, water supply, levels, fine trees, views and aspects, but also a general idea as to the best arrangement of115 the rooms of the new house, an ideal plan to be aimed at, and a sort of mental sketch in block of the general form the new creation should take externally.

It would be only tedious to you if I were to go through all the items of a house, trying to deal with them in a general way. I will therefore now take one or two definite examples, and explain how and why we worked them out as we did, trusting that the interest which attaches to any actual problem solved may come to my aid and redeem the details from tediousness.

We have chosen for the first example a country house designed for a site in North Staffordshire, partly because this site is not one to very obviously suggest or very imperatively demand a special treatment. The plot of land consists of a small field, long, and rather narrow; it is much the shape of a suburban building plot, though situated right in the country. The main road runs along the north-east end, and the ground rises on the far side of this road, cutting off all view in that direction. The ground falls from the road towards the south-west: the slope being very slight at the top, suggests a level terrace on which to place the house. The land continues to fall away to a stream; across this there is a very pleasant view, which becomes finest to the south of the plot.

See plate 1.

The client required the house to have a good comfortable living-room for the general family life; another good room for entertaining guests and116 callers; a small den for his own use, with desk, safe, and sample cupboards; four bedrooms, one to be a bed-sitting-room for an only son; and a kitchen with the usual offices. The house was to be arranged to give as much open-air life within as possible. As the site is exposed to the prevailing winds, and the best prospect is in the direction whence they blow, some form of court upon which the rooms might open, suggests itself as a means of obtaining the needful shelter. The stableyard not being very suitable for the purpose, the house is grouped about a very small central court, round which a corridor is planned fitted with sliding windows, so that it can be converted at will into a sort of small open air cloister by sliding the sashes down below the sill. This is roofed over at as low a level as possible, to avoid anything of the feeling of a well, which a court, as small as this needs must be, might soon produce. The main roof also is made to slope away from the court in all directions, so that a good deal of sunlight may find its way in. Upon this corridor the main rooms open with wide double doors, and the court being protected against wind on all sides, it is possible, except when extremely cold, to have the living rooms much more open to the fresh air than is usual. A ventilating stove prevents cold draughts in winter. The kitchen, butler’s pantry, front and side entrances, and stairs all communicate with the corridor, but so as not to destroy the privacy of the living rooms by obliging anyone to pass the doors when going117 from one to the other. Pleasing vistas are obtained from the rooms across the court, and from the corridor into the rooms, such as it is not often possible to contrive in so small a house. This charm of vista should always be thought of when planning. The living-room, as the most generally occupied, and therefore most important room, is placed at the south corner, having the double outlook to south-east & south-west, and getting all available sunlight and the best of the prospect. It is not enough to give a room windows in the right direction, however; the room must be so arranged that it shall, so to speak, turn its face right; and the windows be so placed that one would naturally look out of them from the most usually occupied parts of the room. For this reason an angle window commanding the pick of the view is thrown out on the south-east side. This brings the sun well into the room, and at the same time provides a good well-lighted position for the piano, from whence anyone can easily face to the whole room while singing. For the same reason the fire is put on the north-east wall; and, that a thorough sense of cosiness may always be obtainable, it is placed in a deep recess or ingle.

Now an ingle affords a very good instance of how easy it is to misuse the old examples which we study, and that in two manners. For while some neglect altogether the suggestions which they offer, others copy the old forms without troubling to understand them. To make use of old features118 legitimately, of course, one must first understand the reasons which called them into being, the difficulties which they were designed to meet: and when similar reasons or difficulties present themselves to us we may then avail ourselves of the solution which they indicate, not copying slavishly the details, but taking the principle and working it out to suit our own particular circumstances. The ingle had two main uses: the first was to protect a wide open fire from the cross draughts arising from badly fitting or open doors, shutters and windows; the second was to afford sheltered seats near the fire, where the aged and feeble could rest and anyone could keep warm in cold or rough weather. Incidentally, no doubt, our forefathers appreciated the value of contrast, the charm of the ruddy fire-lit space glowing red in the grey ill-lighted building, and the cosiness of the sheltered low recess in the wide and lofty hall. To obtain this charm, as is often done, by forming an ingle so small that one cannot sit in it comfortably, is merely to remove the fire further from the room; while on the other hand, to arrange a large ingle, as is also sometimes done, with a modern tiled register stove set in a chimney breast, is to lose the feeling of sitting on the hearth, and the charm that springs from the fire being able to cast its glow all over the recess and be seen from every part where one can sit. The ingle adapted to modern use, and justifying the space it occupies in rooms of moderate size, must be large enough119 to be comfortable for one to sit in regularly, a place where one can live, not merely sit to be roasted. The fire must be so designed as to have something of the feeling of the old fire on the hearth, and must not be cut off from the recess or in any way allowed to grow into a fireplace within a fireplace. It is generally well to make the whole recess into the hearth, and we often arrange for the fire to burn in a suitably shaped fire-brick hollow, which answers all purposes excellently. The ingle must be protected from cross draughts, otherwise the fire cannot be sufficiently exposed. Fenders are best avoided, and anything like a loose coal-box is a disadvantage. A coal-box can often be contrived in the thickness of the wall. When properly arranged, and fitted with comfortable low seats, the ingle always proves to be a favourite part of the room; the place where people naturally go to sit and rest.

But I am digressing from the plan, and must return to the living-room which we are designing. There the ingle is of somewhat special construction, having several small windows to afford peeps out towards the court and the view, and to give light conveniently placed for reading; and also having cupboards for the display of oriental pottery. The seats are made long enough to recline on.

See also plates 25 and 50.

A large sunny bay facing the fire is arranged to be used as a dining recess, except in very cold weather. Such a recess relieves a living room from120 being uncomfortably blocked up with a meal-table. The bay also gives us a west window through which the evening light will come.

In all rooms there is a part by the door where no one willingly sits, because of a certain lack of comfort; it is well to keep such part of the room as small as possible. Very often a room may be actually improved by being reduced in width just where the door opens, while the space cut off may be put to valuable use. In this case the sheltered south-west balcony, which is obtained by narrowing the two rooms opposite the doors, adds greatly to the amount of open air life it is possible to enjoy, and makes it easy to have the pleasure of frequently taking meals in the open: the little window by the sideboard is convenient to hand things through for this purpose. A recessed balcony is, in our climate, much more useful than any projecting verandah. It is possible, owing to the extra shelter, to sit in such a balcony two or three times as often as in the verandah with open ends.

See plate 32.

In this room, a sideboard, a large cabinet and the other important furniture, form part of the scheme: they are thought out and designed with the building. In the treatment of the room advantage is taken of the beams and lintels required for the recesses, and where these are lacking a deep picture rail carrying line with them is adopted, under which the sideboard, cabinet, and most of the windows are arranged to finish, leaving an unbroken frieze above, and giving a sense of order and unity121 to the whole. This frieze is decorated with a painted suggestion of landscape; but in simpler treatment, if whitewashed, or coloured with the ceiling, it would be light & satisfactory. The lower portion of the walls, under the decorated frieze, is finished in plaster tinted to the required shade by mixing colouring matter with the skimming coat; this forms a good, plain, solid-looking background for either pictures, furniture, or the people who inhabit the room.

Where economy is any consideration we may keep rooms as low as possible, giving additional space outwards, which is as valuable as space upwards for use as an air reservoir, and for all other purposes so much more valuable. This house is nine feet from floor to floor.

See plate 33.

The hall, or entertaining room, being intended for less constant as well as more formal use, takes a somewhat simpler shape. Placed at the west corner with windows south-west and north-west it gets all the sunshine during the afternoon and evening, when most occupied. It is immediately accessible from the entrance, and opens upon the balcony and garden through a double window. The fire is placed in an ingle contrived under the stairs and half landing, an arch being used in this case to carry the chimney stack and form the recess. The flue from the fire is brought over on to the arch by means of a copper hood. A little bay, partly in the porch, lights this ingle. The messenger’s seat in the porch, a cupboard, and a coal box complete the122 utilization of the space under the stairs, which is thus not only made to add to the convenience, but also to contribute something to the interest of both the room and the porch.

Adjacent to the entrance is the small sanctum. Here, again, something is taken off the square room, which, while improving it rather than otherwise by giving a recess for desk and pigeon holes, enables us to have a small vestibule with cupboard for visitors’ hats and cloaks. A comfortable corner between fire and window is left clear for easy chair and reading stand.

Behind the living-room, with its fireplace at the back of the living-room fireplace, is placed the kitchen. It occupies the east corner of the house, and has its main window to the north-east, the right aspect for a kitchen. There is a small window to the south-east, to light the range and make a comfortable place for sewing or reading. One corner between fire and window should always be kept free from doors in a kitchen, so that there may be a place to sit in; and a still more comfortable kitchen results, when it is possible to collect all the doors on one side.

The larder has its window in the back porch, to get a north aspect; while thorough ventilation is secured by an opening on the south-east under the eaves where the sun cannot reach it. The cellar was added after the preliminary plans were made, the scullery being re-arranged to allow of it. This latter is shaped to obstruct as little as possible the123 squint window in the living-room ingle, and at the same time faces south, which, as there is no fireplace, is a good aspect for it.

The staircase rises from the corridor, and as it is accessible from all parts without passing the doors of the reception rooms, a back staircase is not needed. Where economy is a consideration the back staircase is one of the first things which may be dispensed with, for it adds so little real comfort in proportion to its cost.

See plate 2.

The bedroom plan follows pretty closely the ground plan, the bedrooms also leading off a corridor round the inner court. All four bedrooms are arranged so that in addition to being convenient as bedrooms, they have at least a corner near the fire comfortable to sit in. In small houses to regard a bedroom as a sleeping room only is a mistake. The accommodation is greatly increased when each member of the household can use his or her bedroom as a private den also. The balcony is repeated on the first floor—the bedrooms being as serviceable without the space it occupies—and by reason of the parapet and overhanging eaves, it is even more sheltered than that on the ground floor; and it is thus possible in two bedrooms to sleep practically in the open air in almost all weathers. It has special value, too, as an addition to the west room, which is designed for the boy’s bedroom and study. Here the bed fits in a deep recess out of the way; a washstand is contrived in the sill of the window of the same recess, which is slightly124 bayed to give the needful room; and a curtain may be drawn across, cutting off all the special bedroom appliances; so leaving a good comfortable study. A window is put to bring the south-east sun into bedroom No. 3, the wide sill of which in the rather narrow room may be used for a dressing table. In bedroom No. 4 an over-hanging window recess is carried out on the joists, to avoid the want of comfort which one always feels on the window side of a room when the door opens right in the corner, as here. This room has also a little window towards the court to bring in morning sun; and thus all the bedrooms get through ventilation and plenty of sunshine.

Of the treatment of the rooms little need be said. The recesses by the chimney breasts are fitted with cupboards and bookshelves, which are designed to include simple framings or mantels for the fireplaces, and the cornices of which are arranged to match the cornice over doors and windows and to carry line with a picture rail running round the room. Wall papers or other decorations stop at this rail, all above being taken in with the ceiling. This arrangement enables the ceiling to be broken up by the slopes of the low roofs without giving the ugly odds and ends of papered wall, which really are the only unpleasing feature about a ceiling broken up in that way.

During the whole of the planning the elevations are of course kept in view, and the block design carried away in the mind from the site constantly125 exerts a modifying influence. The difficulty usually is to maintain sufficient simplicity; so many features are suggested by little conveniences of planning that one has continually to cut them out, never to seek for them merely for the sake of effect.

This plan which we have just considered, representing, perhaps, rather a large house to be classed as “small,” does not quite illustrate one point to which we attach very great importance in the designing of small houses. The second plan shown gives me an opportunity of referring to this. Here a special effort was made to obtain one room giving some sense of space in a house not large enough to contain several large rooms. In all small houses much must be sacrificed, but it seems to us to be infinitely less of a sacrifice to reduce the number of rooms, than to reduce the size of them all. In every small house it should be a first consideration to secure one room large enough to allow of some interest being worked into the room itself, and to afford some comfort and dignity of life to its occupants.

See plates 3, 64, and 65.

In the plan now before us the hall was made into the chief living room; it is carried up two stories to provide for an organ gallery. The gallery leading to the balcony, the landing, and the staircase, are all thrown into this hall; the stairs are so arranged as to afford a screen to the fire, and form a sort of deep ingle with low ceiling under the landing. The low ceiling continues under the126 organ gallery and the balcony, the central part of the hall being open to the full height. The sense of cosiness in this ingle is greatly enhanced by contrast with the lofty open space outside; while the variety in lighting, whether when the morning sun streams in at the great east window, or when the ingle glows red in the gathering dusk, adds a perpetual charm. In the gallery is a second fire, with a lounge seat by the organ, under a kind of canopy formed by the half-landing of the second floor stairs.

See plate 4.

To obtain this spacious hall the remainder of the house has been reduced as much as possible. Only one other small room, for den or meal-room, is provided, with kitchens, offices, and four bedrooms, two of which are on the second floor. Lest you should be inclined to think that only for people living a very exceptional life would it be advantageous to throw so much space into one room, I will next refer to a design drawn for a London literary man, who, though not able to afford a large house, still by reason of his position required occasionally to be able to entertain a good many people. Here the first consideration has been to obtain a hall which would be at once a comfortable living-room and a dignified entertaining room. The meal-room has been kept as small as would just allow of a little dinner-party being given in it. The fire is placed in one corner, the sideboard in another; had it been possible to put the door also in a corner it would have been still127 more convenient, for in a small dining-room it is in the corners that there is a little space to spare. The narrow Hampstead building plot, having a south-west aspect, and the best prospect to the south, dictated the general arrangement of the house and the placing of the best room at the south corner. This room is spanned by two arches to carry the wall of the study over; within one of them is placed the fire recess with seats and fitment, thus using up all the space under the stairs to add to the size and character of the room; while the stairs themselves, which are shut off from the vestibule by a door, are also open to the room, the quarter-landing forming a small gallery overlooking it.

The staircase is such an essentially interesting and decorative feature in a house, and the space under and around it may be made to add so much to a room both in size and individuality, that it always seems a pity to shut it off in a mere passage. In old houses the charm of some departure from the plain room is well recognised, for the favourite view, alike for the artist and the photographer, is always that which contains some peep of stairs from the hall, some gallery, balcony, ingle, or deep window recess. When the most is made of such advantages as can be claimed for the bare square room, they seem but a poor compensation for the loss of character and charm.

Over the hall in this house are placed the client’s study and bedroom, the two being combined that128 both may have the benefit of the whole air space: book cases and curtains screen off the bedroom portion. Double doors and double windows are fitted to this room, for perfect quiet both by day and by night is essential; and further to secure this, ventilation is obtained independently of the windows by means of two fireplaces and an air shaft built in one of the stacks. The client’s wife, son and daughter all proposed to make considerable use of their bedrooms in the day time.

But I must pass on now to cottages, the second part of our subject. The distinction between a small house and a cottage, never a very clear one, has been further obscured by a common affectation of simplicity. The word certainly suggests a simple shelter for a simple form of life, and for our purposes I propose to regard as a cottage any house in which separate accommodation is not provided for servants. Provision for domestic help there may be, but it must be “as one of the family,” not constituting a separate class to be separately provided for.

To cottages, what has been said about the advantage of securing a good living-room, even at great sacrifice of other conveniences, applies with additional force. For not only is the total space at our command usually less, but the number of functions which the living-room has to provide for is greater, many of the functions of a kitchen being added to it. To combine the comfort of a living-room with the convenience for work of a kitchen129 will tax our skill in planning, and as the space we can give becomes less, our care in the disposal of it must become greater.

See plates 5 & 37.

Let us again proceed by way of example, taking a largish cottage designed for a client who wished to live a quiet simple life, yet on a scale that would allow of his enjoying the more necessary comforts and refinements. The site is near a small Derbyshire town, and consists of a mound caused by the out-crop of some shale grit. On the north runs a stream, to which the ground falls precipitously; the road is to the west, and there is a steep fall here also; to the east the fall is slight, while to the south the ground rises gently. There are fine views in all directions, most interesting to the north, least so to the south. The client, however, desired the main windows of the living-room to be to the west, having a special liking for the evening light. The site seemed to demand a simple oblong house with plain span-roof kept as low as possible, forming a sort of crest on the steep-sided mound.

The western end of the building becomes the living-room, having windows with the desired outlook. There is a window to the north to command the best of the view; another on the south side admits plenty of sun; and in addition on this side there is the outer door, placed there that it may be possible to enjoy the charm which a door opening direct from a room upon a sunny garden always gives. Such a door must, however, be so130 placed that while the peep out is obtained the comfort of the room is not destroyed. Here we have gathered the two doors and the stair foot together in a narrow part of the room out of the way, leaving all the rest of the space comfortable to occupy. The fire is placed on the north wall, in a deep recess; one side of which is devoted to rest, the other to work. The former is occupied by a comfortable low seat; in the latter is fixed a plate-rack, and a working dresser fitted with a small fixed bowl for washing up glass and china. All the kitchen work done in the living-room is thus confined to the one corner handy to the fire for cooking, and well lighted by the north window. The fireplace is designed to be used as a closed cooking stove or as an open fire to sit round. The floor of the recess is tiled, which enhances a little the feeling of sitting on the hearth, and at the same time affords the most easily cleaned surface for the working corner. The arrangement, though producing a little the effect of a room within a room, secures at anyrate some of the cosiness of an ingle. We are enabled to get a sheltered garden-seat by reducing the width of the recess to a more comfortable dimension. The ingle is further defined by an archway, on one side of which is fitted a writing desk, and on the other the piano is designed to stand, occupying part of the space under the rising stairs, the remaining portion being taken up with a store cupboard opening into the kitchen. A second resting place is provided by a wide low131 window seat in the main window. Fixed seats are arranged for two sides of the meal table, one having a high back to screen it from any draught coming through the outer door.

To this one good room is added a kitchen for the more dirty work, fitted with a small range; a good cupboard for coats and hats by the entrance; a coal-place and larder. Upstairs are four bedrooms, necessarily rather small; one has a bed-recess taken off the largest room to help it, and as it is over the low ceiling of the ingle, it gets the advantage of extra height under the sloping roof; and thus the low ceiling, which adds so much to the feeling of cosiness in an ingle, is made to benefit the bedroom over. Where some such arrangement as this is not possible, we sometimes utilize the space between the low ceiling and the floor above as a storage cupboard, and we often take advantage of it for ventilating purposes, by bringing fresh air into the room, slightly warmed by passing behind the fire, and delivering it over the opening to the recess, where it is distributed with the least possible draught. Where an outlet into a flue is desirable to supplement the exhaust due to the fire, we find this a very good place to arrange it. In a room with close-fitting iron casements, sufficiently well built not to leak excessively through floors, skirting, and door, the most frequent cause of a smoky chimney is the want of sufficient air supply, and some form of inlet is an absolute necessity. For bedrooms this may be successfully arranged132 in some cases through a hollow fender kerb.

All the bedrooms in this cottage are so arranged as to have a fairly comfortable corner between the fire and a window, where one can sit to read or write. An east aspect is obtained for the bath-room, and a linen cupboard warmed by the cylinder is provided.

Of the elevations I need only say that local random range stone is used for the ground story, while for the upper portion the need for obtaining four bedrooms over a house so narrow requires the use of nine inch brick walls which are rough-cast in cement. The roof is covered with local stone slate.

It is obvious that the living-room of this cottage could with much less trouble have been made a four-square room with a fire at one end and a door at the other; and might have been furnished with a mixture of kitchen and parlour furniture. But I shall have sadly missed the purpose of this paper should you not now feel, as we do, that life would be immensely more comfortable and more dignified in a room such as I have been describing, where each requirement has been considered and provided for, and which has had just the shape and arrangement given to it that seemed best to meet those requirements; where, moreover, all the furniture has been designed in keeping with its place and its purpose, so that there is no incongruity between the desk and the dresser, the piano and the plate-rack.

Time will not permit me to refer in detail to any 133 smaller cottage plans. But enough has, I hope, been said to make it quite clear, that, whatever the size of the house, we think it should grow, both as a utilitarian plan and as an artistic creation, out of the real needs of the occupants; and that the art of designing small houses and cottages consists, not in following any accepted code of conventions, however useful these may be in their place, but in working out such a convenient and comely setting for the special life that shall be lived in them as shall enable that life to expand itself to the fullest extent, not merely unhampered by the building in which it is clothed, but actually stimulated by a congenial surrounding.

134


136

LIST OF PLATES.

PLANS. Plate
House at Northwood, ground floor plan 1
„   first floor plan 2
House at Marple, Cheshire, plans 3
House designed for a Hampstead site, plans 4
Cottage designed for a Derbyshire site, plans 5
Co-operative Dwellings, Cottage plans 6
Co-operative Dwellings, plan of Common Rooms 7
Co-operative Dwellings, block plan of quadrangle 8
Co-operative Dwellings, plans for larger houses 9
Co-operative Dwellings, plans of larger Common Rooms 10
Plan for a hamlet 11
LINE DRAWINGS. (Barry Parker, delt.)
An Artizan’s Living-room 12
A Living-room 13
A Living-room 14
Sketch for a Hall, near Derby 15
Sketch for a corner in a Hall, near Derby 16
A Library 17
A Living-room 18
A Study in the roof 19
A Hall in Buxton 20
A Living-room in Buxton 21
Sketch for a Hall in Buxton 22
Sketch for a Hall in Marple, Cheshire 23
Corner in a Hall, Church Stretton 24
A Living-room, Church Stretton 25
Sketch for a Billiard-room, Carrigbyrne, Co. Wexford 26
Room to be built on to “The Old Cottage,” Tintagel 27
Sketch for a Fireplace, Westmoreland 28
Sketch for a Hall, Westmoreland 29
A Hall, Montreal, Canada 30
A Living-room 31
WASH DRAWINGS. (Barry Parker, delt.)
A Living-room, Northwood 32
A Hall, Northwood 33
Design for Co-operative Dwellings 34
Common room in Co-operative Dwellings 35
Village Common Room 36
A Cottage interior 37
Design for a hamlet 38
A Village corner 39
PHOTOGRAPHS.
Corner in Dining-room 40
Living-room in Bridgwater, The Garden Bay 41
A Hall in Buxton, view 1 42
   2 43
  3 44
A Living-room in Buxton 45
A Hall in Buxton 46
A House in Church Stretton, the Hall, view 1 47
  view 2 48
The Living-room ingle 49
A House in Church Stretton, Dining recess in Living-room 50
A House in Church Stretton, a Bedroom, view 1 51
A House in Church Stretton, a Bedroom, view 2 52
A House in Bradford, the Hall 53
A House in Bradford, the Consulting-room 54
  the Sitting-room, view 1 55
 view 2 56
A House in Buxton, the Living-room 57
   the Drawing-room 58
   the Balcony 59
A Farmhouse Sitting-room, Derbyshire 60
A Living-room in Buxton 61
A Living-room in Croydon 62
A Living-room in Buxton 63
A Hall in Marple, view 1 64
view 2 65
A Hall in Montreal, Canada, view 1 66
  view 2 67
  view 3 68

PLATE 1.

A HOUSE AT NORTHWOOD, STAFFORDSHIRE, PLAN ILLUSTRATING LECTURE VIII. SEE PLATES 32 AND 33.

GROUND FLOOR PLAN

PLATE 2.

A HOUSE AT NORTHWOOD, STAFFORDSHIRE, PLAN ILLUSTRATING LECTURE VIII.

FIRST FLOOR PLAN

PLATE 3.

A HOUSE IN MARPLE, CHESHIRE, PLANS ILLUSTRATING LECTURE VIII. SEE PLATES 23, 64, AND 65.

FIRST FLOOR PLAN
GROUND FLOOR PLAN

PLATE 4.

A HOUSE DESIGNED FOR A HAMPSTEAD SITE, PLANS ILLUSTRATING LECTURE VIII.

NOTE; THERE ARE TWO BEDROOMS AND A BOXROOM ON THE SECOND FLOOR.

FIRST FLOOR PLAN.
GROUND FLOOR PLAN

PLATE 5.

A COTTAGE DESIGNED FOR A DERBYSHIRE SITE, PLANS ILLUSTRATING LECTURE VIII. SEE PLATE 37.

FIRST FLOOR PLAN
GROUND FLOOR PLAN

PLATE 6.

ILLUSTRATING LECTURE VII. SEE PLATES 8 AND 34.

SECOND FLOOR PLAN.
FIRST FLOOR PLAN
GROUND FLOOR PLAN

DESIGN FOR PROPOSED CO-OPERATIVE DWELLINGS IN A YORKSHIRE TOWN; SUGGESTED PLANS FOR THREE OF THE COTTAGES.

PLATE 7.

ILLUSTRATING LECTURE VII. SEE PLATES 34 AND 35.

FIRST FLOOR PLAN
SECOND FLOOR PLAN
GROUND FLOOR PLAN

DESIGN FOR PROPOSED CO-OPERATIVE DWELLINGS IN A YORKSHIRE TOWN. PLAN OF COMMON ROOMS

PLATE 8.

ILLUSTRATING LECTURE VII. SEE PLATES 6 AND 9.

DESIGN FOR PROPOSED CO-OPERATIVE DWELLINGS IN A YORKSHIRE TOWN
BLOCK PLAN

BLOCK PLAN OF QUADRANGLE OF LARGER HOUSES AND COMMON ROOMS.

PLATE 9.

ILLUSTRATING LECTURE VII. SEE PLATE 8.

SECOND FLOOR PLAN
FIRST FLOOR PLAN
GROUND FLOOR PLAN

DESIGN FOR PROPOSED CO-OPERATIVE DWELLINGS IN A YORKSHIRE TOWN; QUADRANGLE OF LARGER HOUSES AND COMMON ROOMS. SUGGESTED PLANS FOR TWO OF THE COTTAGES.

PLATE 10.

ILLUSTRATING LECTURE VII.

DESIGN FOR PROPOSED CO-OPERATIVE DWELLINGS IN A YORKSHIRE TOWN; QUADRANGLE OF LARGER HOUSES & COMMON ROOMS. PLAN OF COMMON ROOMS.

FIRST FLOOR PLAN
GROUND FLOOR PLAN

PLATE 11.

PLAN FOR A HAMLET, ILLUSTRATING LECTURE VII. SEE PLATE 38.

PLATE 12.

AN ARTIZAN’S LIVING-ROOM.

PLATE 13.

DESIGN FOR THE LIVING-ROOM IN A HOUSE CONTAINING THIS ROOM, SANCTUM, SCULLERY, PANTRY & BEDROOMS ONLY.

PLATE 14.

DESIGN FOR THE LIVING-ROOM IN A HOUSE TO HAVE THIS ROOM, SANCTUM, KITCHENS, OFFICES & BEDROOM ACCOMMODATION ONLY.

PLATE 15.

PRELIMINARY SKETCH FOR A HALL NEAR DERBY.

PLATE 16.

PRELIMINARY SKETCH FOR A CORNER IN A HALL NEAR DERBY.

PLATE 17.

A LIBRARY.

PLATE 18.

A LIVING-ROOM.

PLATE 19.

A STUDY IN THE ROOF.

PLATE 20.

PRELIMINARY SKETCH FOR A HALL IN BUXTON, DERBYSHIRE.

PLATE 21.

DESIGN FOR A LIVING-ROOM IN BUXTON, DERBYSHIRE. SEE PLATE 45.

PLATE 22.

PRELIMINARY SKETCH FOR A HALL IN BUXTON, DERBYSHIRE.

PLATE 23.

PRELIMINARY SKETCH FOR THE HALL IN A HOUSE AT MARPLE, CHESHIRE. SEE PLATES 3, 64 AND 65.

PLATE 24.

DESIGN FOR A CORNER IN A HALL, CHURCH STRETTON, SHROPSHIRE. SEE PLATES 47 AND 48.

PLATE 25.

DESIGN FOR A LIVING-ROOM, CHURCH STRETTON, SHROPSHIRE. SEE PLATES 49 AND 50.

PLATE 26.

PRELIMINARY SKETCH FOR A BILLIARD-ROOM, CARRIGBRYNE, CO. WEXFORD.

PLATE 27.

PRELIMINARY SKETCH OF A ROOM TO BE BUILT ON TO “THE OLD COTTAGE,” TINTAGEL, CORNWALL.

PLATE 28.

PRELIMINARY SKETCH FOR A FIREPLACE, WESTMORELAND.

PLATE 29.

PRELIMINARY SKETCH FOR A HALL, WESTMORELAND.

PLATE 30.

A HALL, MONTREAL, CANADA. SEE PLATES 66, 67 AND 68.

PLATE 31.

DESIGN FOR THE LIVING-ROOM IN A HOUSE HAVING IN ADDITION TO THIS ROOM A SMALL HALL, KITCHEN, BEDROOMS, AND OFFICES.

PLATE 32.

PRELIMINARY SKETCH FOR A LIVING-ROOM AT NORTHWOOD, STAFFORDSHIRE. SEE PLATE 1.

PLATE 33.

PRELIMINARY SKETCH FOR A HALL AT NORTHWOOD, STAFFORDSHIRE. SEE PLATE 1.

NOTE: THE CHIMNEY-STACK STANDS ON THE ARCH, AND THE FLUE IS BROUGHT OVER TO IT WITHIN THE COPPER HOOD.

PLATE 34.

DESIGN FOR PROPOSED CO-OPERATIVE DWELLINGS IN A YORKSHIRE TOWN. TO ILLUSTRATE LECTURE VII. SEE PLATES 6, 7, AND 8.

PLATE 35.

INTERIOR OF COMMON ROOM IN PROPOSED CO-OPERATIVE DWELLINGS IN A YORKSHIRE TOWN. TO ILLUSTRATE LECTURE VII. SEE PLATE 7.

PLATE 36.

DESIGN FOR PROPOSED VILLAGE COMMON ROOM NEAR LEEDS. TO ILLUSTRATE LECTURE VII.

NOTE: THE BILLIARD TABLE HAS BEEN OMITTED FROM SKETCH TO SHOW THE RAISED SEATS WHICH OVERLOOK IT, & THE INGLE.

PLATE 37.

DESIGN FOR A COTTAGE INTERIOR. SEE PLATE 5.

PLATE 38.

DESIGN FOR A HAMLET, ILLUSTRATING LECTURE VII. SEE PLATE 11.

PLATE 39.

SKETCH FOR A VILLAGE CORNER, ILLUSTRATING LECTURE VII.

PLATE 40.

DINING-ROOM IN EAST DERBYSHIRE. THE SIDEBOARD CORNER.

PLATE 41.

A LIVING-ROOM IN BRIDGEWATER, SOMERSETSHIRE. THE GARDEN BAY.

PLATE 42.

A HALL IN BUXTON, VIEW 1.

PLATE 43.

A HALL IN BUXTON, VIEW 2.

PLATE 44.

A HALL IN BUXTON, VIEW 3.

PLATE 45.

A LIVING-ROOM IN BUXTON. FOR DESIGN SEE PLATE 21.

PLATE 46.

A HALL IN BUXTON.

PLATE 47.

A HOUSE IN CHURCH STRETTON. THE HALL, VIEW 1.

PLATE 48.

A HOUSE IN CHURCH STRETTON. THE HALL, VIEW 2. SEE PLATE 24.

PLATE 49.

A HOUSE IN CHURCH STRETTON. THE LIVING-ROOM. VIEW 1. SHOWING INGLE. SEE PLATE 25.

PLATE 50.

A HOUSE IN CHURCH STRETTON. THE LIVING-ROOM, VIEW 2, SHOWING DINING RECESS. SEE PLATE 25.

PLATE 51.

A HOUSE IN CHURCH STRETTON, A BEDROOM, VIEW 1.

PLATE 52.

A HOUSE IN CHURCH STRETTON, A BEDROOM, VIEW 2.

PLATE 53.

A DOCTOR’S HOUSE IN BRADFORD. THE HALL.

PLATE 54.

A DOCTOR’S HOUSE IN BRADFORD. THE CONSULTING-ROOM.

PLATE 55.

A DOCTOR’S HOUSE IN BRADFORD. THE SITTING-ROOM, VIEW 1.

PLATE 56.

A DOCTOR’S HOUSE IN BRADFORD. THE SITTING-ROOM, VIEW 2.

PLATE 57.

A HOUSE IN BUXTON. THE LIVING-ROOM.

PLATE 58.

A HOUSE IN BUXTON. THE DRAWING-ROOM.

PLATE 59.

A HOUSE IN BUXTON. THE BALCONY.

PLATE 60.

A DERBYSHIRE FARMHOUSE. THE SITTING-ROOM.

PLATE 61.

A LIVING-ROOM IN BUXTON.

PLATE 62.

A HOUSE IN CROYDON. THE LIVING-ROOM.

PLATE 63.

A LIVING-ROOM IN BUXTON.

PLATE 64.

A HALL AT MARPLE, VIEW 1. SEE PRELIMINARY SKETCH, PLATE 23.

PLATE 65.

A HALL AT MARPLE, VIEW 2. FOR PLANS, SEE PLATE 3.

PLATE 66.

A HALL IN MONTREAL, CANADA, VIEW 1. SEE PLATE 30.

PLATE 67.

A HALL IN MONTREAL, CANADA, VIEW 2. SEE PLATE 30.

PLATE 68.

A HALL IN MONTREAL, CANADA, VIEW 3. SEE PLATE 30.

Transcriber’s Notes

Punctuation, hyphenation, and spelling were made consistent when a predominant preference was found in the original book; otherwise they were not changed.

Simple typographical errors were corrected.

In the original book, some sidenotes were positioned mid-paragraph. Here, all sidenotes are positioned at the beginning of the paragraph.

Transcriber added a page number (136) to the “List of Plates and Plates at the end” entry in the Table of Contents.






End of the Project Gutenberg EBook of The Art of Building a Home, by 
Barry Parker and Reginald Unwin

*** END OF THIS PROJECT GUTENBERG EBOOK THE ART OF BUILDING A HOME ***

***** This file should be named 63071-h.htm or 63071-h.zip *****
This and all associated files of various formats will be found in:
        http://www.gutenberg.org/6/3/0/7/63071/

Produced by MWS, Charlie Howard, and the Online Distributed
Proofreading Team at https://www.pgdp.net (This file was
produced from images generously made available by The
Internet Archive/American Libraries.)

Updated editions will replace the previous one--the old editions will
be renamed.

Creating the works from print editions not protected by U.S. copyright
law means that no one owns a United States copyright in these works,
so the Foundation (and you!) can copy and distribute it in the United
States without permission and without paying copyright
royalties. Special rules, set forth in the General Terms of Use part
of this license, apply to copying and distributing Project
Gutenberg-tm electronic works to protect the PROJECT GUTENBERG-tm
concept and trademark. Project Gutenberg is a registered trademark,
and may not be used if you charge for the eBooks, unless you receive
specific permission. If you do not charge anything for copies of this
eBook, complying with the rules is very easy. You may use this eBook
for nearly any purpose such as creation of derivative works, reports,
performances and research. They may be modified and printed and given
away--you may do practically ANYTHING in the United States with eBooks
not protected by U.S. copyright law. Redistribution is subject to the
trademark license, especially commercial redistribution.

START: FULL LICENSE

THE FULL PROJECT GUTENBERG LICENSE
PLEASE READ THIS BEFORE YOU DISTRIBUTE OR USE THIS WORK

To protect the Project Gutenberg-tm mission of promoting the free
distribution of electronic works, by using or distributing this work
(or any other work associated in any way with the phrase "Project
Gutenberg"), you agree to comply with all the terms of the Full
Project Gutenberg-tm License available with this file or online at
www.gutenberg.org/license.

Section 1. General Terms of Use and Redistributing Project
Gutenberg-tm electronic works

1.A. By reading or using any part of this Project Gutenberg-tm
electronic work, you indicate that you have read, understand, agree to
and accept all the terms of this license and intellectual property
(trademark/copyright) agreement. If you do not agree to abide by all
the terms of this agreement, you must cease using and return or
destroy all copies of Project Gutenberg-tm electronic works in your
possession. If you paid a fee for obtaining a copy of or access to a
Project Gutenberg-tm electronic work and you do not agree to be bound
by the terms of this agreement, you may obtain a refund from the
person or entity to whom you paid the fee as set forth in paragraph
1.E.8.

1.B. "Project Gutenberg" is a registered trademark. It may only be
used on or associated in any way with an electronic work by people who
agree to be bound by the terms of this agreement. There are a few
things that you can do with most Project Gutenberg-tm electronic works
even without complying with the full terms of this agreement. See
paragraph 1.C below. There are a lot of things you can do with Project
Gutenberg-tm electronic works if you follow the terms of this
agreement and help preserve free future access to Project Gutenberg-tm
electronic works. See paragraph 1.E below.

1.C. The Project Gutenberg Literary Archive Foundation ("the
Foundation" or PGLAF), owns a compilation copyright in the collection
of Project Gutenberg-tm electronic works. Nearly all the individual
works in the collection are in the public domain in the United
States. If an individual work is unprotected by copyright law in the
United States and you are located in the United States, we do not
claim a right to prevent you from copying, distributing, performing,
displaying or creating derivative works based on the work as long as
all references to Project Gutenberg are removed. Of course, we hope
that you will support the Project Gutenberg-tm mission of promoting
free access to electronic works by freely sharing Project Gutenberg-tm
works in compliance with the terms of this agreement for keeping the
Project Gutenberg-tm name associated with the work. You can easily
comply with the terms of this agreement by keeping this work in the
same format with its attached full Project Gutenberg-tm License when
you share it without charge with others.

1.D. The copyright laws of the place where you are located also govern
what you can do with this work. Copyright laws in most countries are
in a constant state of change. If you are outside the United States,
check the laws of your country in addition to the terms of this
agreement before downloading, copying, displaying, performing,
distributing or creating derivative works based on this work or any
other Project Gutenberg-tm work. The Foundation makes no
representations concerning the copyright status of any work in any
country outside the United States.

1.E. Unless you have removed all references to Project Gutenberg:

1.E.1. The following sentence, with active links to, or other
immediate access to, the full Project Gutenberg-tm License must appear
prominently whenever any copy of a Project Gutenberg-tm work (any work
on which the phrase "Project Gutenberg" appears, or with which the
phrase "Project Gutenberg" is associated) is accessed, displayed,
performed, viewed, copied or distributed:

  This eBook is for the use of anyone anywhere in the United States and
  most other parts of the world at no cost and with almost no
  restrictions whatsoever. You may copy it, give it away or re-use it
  under the terms of the Project Gutenberg License included with this
  eBook or online at www.gutenberg.org. If you are not located in the
  United States, you'll have to check the laws of the country where you
  are located before using this ebook.

1.E.2. If an individual Project Gutenberg-tm electronic work is
derived from texts not protected by U.S. copyright law (does not
contain a notice indicating that it is posted with permission of the
copyright holder), the work can be copied and distributed to anyone in
the United States without paying any fees or charges. If you are
redistributing or providing access to a work with the phrase "Project
Gutenberg" associated with or appearing on the work, you must comply
either with the requirements of paragraphs 1.E.1 through 1.E.7 or
obtain permission for the use of the work and the Project Gutenberg-tm
trademark as set forth in paragraphs 1.E.8 or 1.E.9.

1.E.3. If an individual Project Gutenberg-tm electronic work is posted
with the permission of the copyright holder, your use and distribution
must comply with both paragraphs 1.E.1 through 1.E.7 and any
additional terms imposed by the copyright holder. Additional terms
will be linked to the Project Gutenberg-tm License for all works
posted with the permission of the copyright holder found at the
beginning of this work.

1.E.4. Do not unlink or detach or remove the full Project Gutenberg-tm
License terms from this work, or any files containing a part of this
work or any other work associated with Project Gutenberg-tm.

1.E.5. Do not copy, display, perform, distribute or redistribute this
electronic work, or any part of this electronic work, without
prominently displaying the sentence set forth in paragraph 1.E.1 with
active links or immediate access to the full terms of the Project
Gutenberg-tm License.

1.E.6. You may convert to and distribute this work in any binary,
compressed, marked up, nonproprietary or proprietary form, including
any word processing or hypertext form. However, if you provide access
to or distribute copies of a Project Gutenberg-tm work in a format
other than "Plain Vanilla ASCII" or other format used in the official
version posted on the official Project Gutenberg-tm web site
(www.gutenberg.org), you must, at no additional cost, fee or expense
to the user, provide a copy, a means of exporting a copy, or a means
of obtaining a copy upon request, of the work in its original "Plain
Vanilla ASCII" or other form. Any alternate format must include the
full Project Gutenberg-tm License as specified in paragraph 1.E.1.

1.E.7. Do not charge a fee for access to, viewing, displaying,
performing, copying or distributing any Project Gutenberg-tm works
unless you comply with paragraph 1.E.8 or 1.E.9.

1.E.8. You may charge a reasonable fee for copies of or providing
access to or distributing Project Gutenberg-tm electronic works
provided that

* You pay a royalty fee of 20% of the gross profits you derive from
  the use of Project Gutenberg-tm works calculated using the method
  you already use to calculate your applicable taxes. The fee is owed
  to the owner of the Project Gutenberg-tm trademark, but he has
  agreed to donate royalties under this paragraph to the Project
  Gutenberg Literary Archive Foundation. Royalty payments must be paid
  within 60 days following each date on which you prepare (or are
  legally required to prepare) your periodic tax returns. Royalty
  payments should be clearly marked as such and sent to the Project
  Gutenberg Literary Archive Foundation at the address specified in
  Section 4, "Information about donations to the Project Gutenberg
  Literary Archive Foundation."

* You provide a full refund of any money paid by a user who notifies
  you in writing (or by e-mail) within 30 days of receipt that s/he
  does not agree to the terms of the full Project Gutenberg-tm
  License. You must require such a user to return or destroy all
  copies of the works possessed in a physical medium and discontinue
  all use of and all access to other copies of Project Gutenberg-tm
  works.

* You provide, in accordance with paragraph 1.F.3, a full refund of
  any money paid for a work or a replacement copy, if a defect in the
  electronic work is discovered and reported to you within 90 days of
  receipt of the work.

* You comply with all other terms of this agreement for free
  distribution of Project Gutenberg-tm works.

1.E.9. If you wish to charge a fee or distribute a Project
Gutenberg-tm electronic work or group of works on different terms than
are set forth in this agreement, you must obtain permission in writing
from both the Project Gutenberg Literary Archive Foundation and The
Project Gutenberg Trademark LLC, the owner of the Project Gutenberg-tm
trademark. Contact the Foundation as set forth in Section 3 below.

1.F.

1.F.1. Project Gutenberg volunteers and employees expend considerable
effort to identify, do copyright research on, transcribe and proofread
works not protected by U.S. copyright law in creating the Project
Gutenberg-tm collection. Despite these efforts, Project Gutenberg-tm
electronic works, and the medium on which they may be stored, may
contain "Defects," such as, but not limited to, incomplete, inaccurate
or corrupt data, transcription errors, a copyright or other
intellectual property infringement, a defective or damaged disk or
other medium, a computer virus, or computer codes that damage or
cannot be read by your equipment.

1.F.2. LIMITED WARRANTY, DISCLAIMER OF DAMAGES - Except for the "Right
of Replacement or Refund" described in paragraph 1.F.3, the Project
Gutenberg Literary Archive Foundation, the owner of the Project
Gutenberg-tm trademark, and any other party distributing a Project
Gutenberg-tm electronic work under this agreement, disclaim all
liability to you for damages, costs and expenses, including legal
fees. YOU AGREE THAT YOU HAVE NO REMEDIES FOR NEGLIGENCE, STRICT
LIABILITY, BREACH OF WARRANTY OR BREACH OF CONTRACT EXCEPT THOSE
PROVIDED IN PARAGRAPH 1.F.3. YOU AGREE THAT THE FOUNDATION, THE
TRADEMARK OWNER, AND ANY DISTRIBUTOR UNDER THIS AGREEMENT WILL NOT BE
LIABLE TO YOU FOR ACTUAL, DIRECT, INDIRECT, CONSEQUENTIAL, PUNITIVE OR
INCIDENTAL DAMAGES EVEN IF YOU GIVE NOTICE OF THE POSSIBILITY OF SUCH
DAMAGE.

1.F.3. LIMITED RIGHT OF REPLACEMENT OR REFUND - If you discover a
defect in this electronic work within 90 days of receiving it, you can
receive a refund of the money (if any) you paid for it by sending a
written explanation to the person you received the work from. If you
received the work on a physical medium, you must return the medium
with your written explanation. The person or entity that provided you
with the defective work may elect to provide a replacement copy in
lieu of a refund. If you received the work electronically, the person
or entity providing it to you may choose to give you a second
opportunity to receive the work electronically in lieu of a refund. If
the second copy is also defective, you may demand a refund in writing
without further opportunities to fix the problem.

1.F.4. Except for the limited right of replacement or refund set forth
in paragraph 1.F.3, this work is provided to you 'AS-IS', WITH NO
OTHER WARRANTIES OF ANY KIND, EXPRESS OR IMPLIED, INCLUDING BUT NOT
LIMITED TO WARRANTIES OF MERCHANTABILITY OR FITNESS FOR ANY PURPOSE.

1.F.5. Some states do not allow disclaimers of certain implied
warranties or the exclusion or limitation of certain types of
damages. If any disclaimer or limitation set forth in this agreement
violates the law of the state applicable to this agreement, the
agreement shall be interpreted to make the maximum disclaimer or
limitation permitted by the applicable state law. The invalidity or
unenforceability of any provision of this agreement shall not void the
remaining provisions.

1.F.6. INDEMNITY - You agree to indemnify and hold the Foundation, the
trademark owner, any agent or employee of the Foundation, anyone
providing copies of Project Gutenberg-tm electronic works in
accordance with this agreement, and any volunteers associated with the
production, promotion and distribution of Project Gutenberg-tm
electronic works, harmless from all liability, costs and expenses,
including legal fees, that arise directly or indirectly from any of
the following which you do or cause to occur: (a) distribution of this
or any Project Gutenberg-tm work, (b) alteration, modification, or
additions or deletions to any Project Gutenberg-tm work, and (c) any
Defect you cause.

Section 2. Information about the Mission of Project Gutenberg-tm

Project Gutenberg-tm is synonymous with the free distribution of
electronic works in formats readable by the widest variety of
computers including obsolete, old, middle-aged and new computers. It
exists because of the efforts of hundreds of volunteers and donations
from people in all walks of life.

Volunteers and financial support to provide volunteers with the
assistance they need are critical to reaching Project Gutenberg-tm's
goals and ensuring that the Project Gutenberg-tm collection will
remain freely available for generations to come. In 2001, the Project
Gutenberg Literary Archive Foundation was created to provide a secure
and permanent future for Project Gutenberg-tm and future
generations. To learn more about the Project Gutenberg Literary
Archive Foundation and how your efforts and donations can help, see
Sections 3 and 4 and the Foundation information page at
www.gutenberg.org



Section 3. Information about the Project Gutenberg Literary Archive Foundation

The Project Gutenberg Literary Archive Foundation is a non profit
501(c)(3) educational corporation organized under the laws of the
state of Mississippi and granted tax exempt status by the Internal
Revenue Service. The Foundation's EIN or federal tax identification
number is 64-6221541. Contributions to the Project Gutenberg Literary
Archive Foundation are tax deductible to the full extent permitted by
U.S. federal laws and your state's laws.

The Foundation's principal office is in Fairbanks, Alaska, with the
mailing address: PO Box 750175, Fairbanks, AK 99775, but its
volunteers and employees are scattered throughout numerous
locations. Its business office is located at 809 North 1500 West, Salt
Lake City, UT 84116, (801) 596-1887. Email contact links and up to
date contact information can be found at the Foundation's web site and
official page at www.gutenberg.org/contact

For additional contact information:

    Dr. Gregory B. Newby
    Chief Executive and Director
    gbnewby@pglaf.org

Section 4. Information about Donations to the Project Gutenberg
Literary Archive Foundation

Project Gutenberg-tm depends upon and cannot survive without wide
spread public support and donations to carry out its mission of
increasing the number of public domain and licensed works that can be
freely distributed in machine readable form accessible by the widest
array of equipment including outdated equipment. Many small donations
($1 to $5,000) are particularly important to maintaining tax exempt
status with the IRS.

The Foundation is committed to complying with the laws regulating
charities and charitable donations in all 50 states of the United
States. Compliance requirements are not uniform and it takes a
considerable effort, much paperwork and many fees to meet and keep up
with these requirements. We do not solicit donations in locations
where we have not received written confirmation of compliance. To SEND
DONATIONS or determine the status of compliance for any particular
state visit www.gutenberg.org/donate

While we cannot and do not solicit contributions from states where we
have not met the solicitation requirements, we know of no prohibition
against accepting unsolicited donations from donors in such states who
approach us with offers to donate.

International donations are gratefully accepted, but we cannot make
any statements concerning tax treatment of donations received from
outside the United States. U.S. laws alone swamp our small staff.

Please check the Project Gutenberg Web pages for current donation
methods and addresses. Donations are accepted in a number of other
ways including checks, online payments and credit card donations. To
donate, please visit: www.gutenberg.org/donate

Section 5. General Information About Project Gutenberg-tm electronic works.

Professor Michael S. Hart was the originator of the Project
Gutenberg-tm concept of a library of electronic works that could be
freely shared with anyone. For forty years, he produced and
distributed Project Gutenberg-tm eBooks with only a loose network of
volunteer support.

Project Gutenberg-tm eBooks are often created from several printed
editions, all of which are confirmed as not protected by copyright in
the U.S. unless a copyright notice is included. Thus, we do not
necessarily keep eBooks in compliance with any particular paper
edition.

Most people start at our Web site which has the main PG search
facility: www.gutenberg.org

This Web site includes information about Project Gutenberg-tm,
including how to make donations to the Project Gutenberg Literary
Archive Foundation, how to help produce our new eBooks, and how to
subscribe to our email newsletter to hear about new eBooks.