This eBook is for the use of anyone anywhere at no cost and with almost no restrictions whatsoever. You may copy it, give it away or re-use it under the terms of the Project Gutenberg License included with this eBook or online at www.gutenberg.org
Title: Bell's Cathedrals: Southwark Cathedral
Formerly the Collegiate Church of St. Saviour, Otherwise St. Mary Overie. A Short History and Description of the Fabric, with Some Account of the College and the See
Author: George Worley
Release Date: February 14, 2008 [eBook #24616]
Language: english
Character set encoding: ISO-8859-1
***START OF THE PROJECT GUTENBERG EBOOK BELL'S CATHEDRALS: SOUTHWARK CATHEDRAL***
Transcriber's Note:
Inconsistent hyphenation in the original document has been preserved.
Obvious typographical errors have been corrected.
For a complete list, please see the end of this document.
Click on the images to see a larger version.
The numerous authorities, ancient and modern, which I have been obliged to draw upon, are acknowledged, where necessary, in the text.
Those who wish to pursue the study of St. Saviour's Cathedral in greater detail and completeness than is here possible, must be referred to some of the larger works to which I have had recourse; e.g., those by Moss and Nightingale (1817-1818), F.T. Dollman (1881), and the Rev. Dr. Thompson (1904). The Surrey Archaeological Society's "Collections" are also to be recommended for the valuable subsidiary matter they contain, in the shape of original documents, selected and carefully edited from sources not easily accessible to the public.
For facts not elsewhere recorded I am under special obligations to Sir Arthur Blomfield and Sons, architects for the restoration, who have not only afforded most useful information, and given access to drawings, which they alone possessed, but have been good enough to draw up the plan, showing the most recent work at the Cathedral, expressly for this volume.
I am scarcely less indebted to their Clerk of the Works, Mr. Thomas Simpson, who superintended the whole restoration of 1890-1897, and has generously placed his exceptional knowledge at my disposal.
Others to be thankfully remembered are Mr. Harry Lloyd, of "The Daily Chronicle," and the Proprietors of "Church [6]Bells," who have kindly contributed the illustrations bearing their names; Mr. C.A. Webb, Private Secretary to the Bishop of Southwark; Mr. A.W. Dodwell Moore, Chapter Clerk; the Rev. W.W. Hough and Mr. S.C. Lapidge, Secretaries to the Diocesan Society; Mr. F.C. Eeles, Secretary to the Alcuin Club; and the Rev. Dr. Thompson, Rector and Chancellor of St. Saviour's, each of whom has added something within his special province.
Most of the photographs have been taken by Mr. Godfrey P. Heisch, direct from the fabric. The specification of the organ comes from the builders, Messrs. Lewis and Co., Limited.
To all these thanks are due: also to the Cathedral authorities for facilities of access, and to the Vergers of the Cathedral and Chapter House for their services during my examination of the buildings.
G.W.
| CHAP. | PAGE | ||
| I. | The History of the Church | 13 | |
| II. | The Exterior | 41 | |
| III. | The Interior | 57 | |
| IV. | The Diocese of Southwark | 99 | |
| APPENDIX I. | List of the Priors of St. Mary Overie | 103 | |
| II. | The Priory Seal | 104 | |
| III. | List of the Chaplains of St. Saviour's | 104 | |
| IV. | Vestments, Plate, and Ornaments at St. Saviour's | 105 | |
| V. | Specification of the Organ | 111 | |
| Index | 113 | ||

INTERIOR OF THE CATHEDRAL.
Reproduced from a drawing by Mr. Hedley Fitton, by permission of the "Daily Chronicle."ToList
The history of St. Saviour's takes us back to those distant days when Southwark was but a marsh, and when there was no bridge across the Thames. John Stow, historian and antiquary (1525-1605), was acquainted with Bartholomew Linstede, the last of the Priors, and gives the following account of its origin on his authority:
East from the Bishop of Winchester's house, directly over against it, standeth a fair church, called St. Mary-over-the-Rie, or Overie; [14]that is, over the water. This church, or some other in place thereof, was, of old time, long before the Conquest, a house of sisters, founded by a maiden named Mary; unto the which house and sisters she left, as was left to her by her parents, the oversight and profits of a cross ferry, or traverse ferry over the Thames, there kept before that any bridge was built. This house of sisters was after by Swithun, a noble lady, converted into a college of priests, who in place of the ferry built a bridge of timber, and from time to time kept the place in good reparations; but lastly, the same bridge was built of stone; and then in the year 1106 was this church again founded for canons regular by William Pont de la Arch, and William Dauncey, Knights, Normans.
Stow's account has been disputed in several particulars. Although it may be taken for granted that there was a cross-ferry before there was a bridge, it does not follow that the bridge immediately superseded it; and it has been suggested, as more likely, that both means of transit were used for some time simultaneously, as is the case to-day at other places.
If the first London Bridge was built by Roman engineers during the Roman occupation, it may be assumed that the bridge existed before the church. That the first bridge was a Roman structure has been almost proved by the discovery of Roman coins and other relics among the débris of the original work during the erection of later bridges. We have an evidence of the antiquity of the site in some Roman tesserae, discovered in 1832, while a grave was being dug in the south-east corner of the churchyard, and still preserved in the pavement, near the entrance, in the south aisle of the choir. These tesserae, with the pottery, tiles, coins, lachrymatories, sepulchral urns, etc., excavated from time to time in and about the church, are clear indications of an important Roman settlement.
It is known that after the destruction of Roman London by Boadicea, a great many Romans made their escape into Southwark, where they continued to live, and contributed greatly to the size and importance of the southern suburb. The principal buildings sprang up round the site of St. Saviour's Church, and it has been reasonably conjectured that a temple stood on the very spot that the church now occupies.[1]
It is true that no trace of this temple has been discovered; but the conjecture is not inconsistent with the known principles [15]of the early Christian missionaries, in their contact with paganism, as illustrated in the history and traditions of other important churches.
Stow's phrase, "long before the Conquest," though somewhat ambiguous, has been thought to point to a date posterior to the Roman occupation. Some authorities, therefore, contend that the Romans had erected London Bridge and left the country before St. Mary's was founded, and consequently the bridge the antiquary mentions as built by "Swithun, a noble lady," was not the first. Again, it is doubtful whether the sub-title "Overie" means "of the ferry," or "over the river," or whether the form "Overies," which the word sometimes takes, does not suggest a derivation from "Ofers," "of the bank or shore," a meaning contained in the modern German Ufer. John Overy, or Overs, was the father of Mary, but whether the surname was derived from the place, or vice versa, is uncertain. In any case, the name, whether by accident or design, includes a reference to the foundress as well as to the locality of her foundation.[2]
Stow is obviously wrong, however, as to the person who converted the House of Sisters into a College of Priests, who was not a lady, but St. Swithun, Bishop of Winchester (852-862), whose devotion to the building of churches and bridges is well known.
The character of the foundation, altered by St. Swithun, was again altered in 1106, under Bishop William Giffard, with the co-operation of the two Norman knights to whom Stow refers. They not only erected the first Norman nave, but made a radical change within by abolishing the "College of Priests," in whose place they introduced "Canons regular" of the Augustinian Order, governed by a Prior, thus transforming the Collegiate Church into a monastery. Except as regards the sex of the inmates, the change was a reversion to the idea of the foundress.[3]
[16]The Norman work of this period is the earliest of which any traces remain in the present church, unless the doubtful signs on a shaft in the exterior are to be taken as evidence of Saxon workmanship. This shaft is attached to the north wall of the Chapel of St. John-the-Divine (now used as a clergy vestry), which is perhaps the oldest part of the fabric. The undoubted Norman remains consist of three arches in the same chapel, where their outline is just discernible among the brickwork; the fragment of a string-course, with billet moulding, on the inner wall of the north transept; a portion of the Prior's entrance to the cloisters; the old Canons' doorway; and an arcaded recess. Of these, it may be briefly remarked that the remains of the Prior's door, showing the mutilated shafts and the zigzag moulding of the jambs, are preserved, in situ, in the outer face of the north wall to the new nave. The outline of the Canons' entrance, obviously of much simpler moulding, will be seen on the inner side of the same wall, towards the west end. The Norman recess lies still farther to the west on the same side.
Quite recently a valuable relic of the same period has been discovered in the north-east corner within the above-mentioned chapel (by the side of the new Harvard window)—apparently part of the original arcading to the apse.
Early in the thirteenth century London was visited by one of those great fires, which occurred at rather frequent intervals, before the greatest of all, in 1666, led to the rebuilding of the city, and better means for its protection. The date of the particular fire is sometimes given as 1207, sometimes as 1212 or [17]1213. It is not unlikely that there were several, in one or other of which London Bridge, Southwark, and the church were seriously injured. (Vide Stow and Harleian MSS., No. 565.)
The repairs were soon taken in hand by Peter de la Roche, otherwise de Rupibus, Bishop of Winchester (1205-1238), who altered the nave into the Early English, which was then generally superseding the heavier Norman work, and shortly afterwards built the choir and retro-choir in a still lighter and more ornate style. The architecture gives us the approximate date of de la Roche's work as the early part of the thirteenth century, which is about as near as we can get to it in the absence of a more precise record than that it was "begun after the fire." In consequence of this, or some previous fire, the Canons were led to found a hospital close to the Priory for the relief of the distress and disease caused by the disaster. During the restorations by Peter de Rupibus, in or about 1228, he had the hospital transferred to a more favourable site in the neighbourhood, where the air was fresher and water more abundant, and dedicated it to St. Thomas of Canterbury, to whom the chapel on London Bridge was also dedicated.[4]
In addition to all this excellent work, Bishop de Rupibus built a chapel for the parishioners, the conventual church being reserved for the Prior and monks. This chapel stood in the angle between the walls of the choir and south transept, and was called St. Mary Magdalene Overy.
In the reign of Richard II there was another fire, involving repairs; and then, as well as in the reign of Henry IV, Perpendicular features were introduced by Cardinal Beaufort, Bishop of Winchester (1405-1447), aided by John Gower, the "Father of English Poetry." The Cardinal is said to have restored the south transept at his own expense, and is there commemorated in a sculptured representation of his hat and coat of arms affixed to a pier by the door. The difference in style between the two transepts shows that on the north to be of somewhat earlier date, though it was probably not left untouched by the restorers. [18]The poet Gower founded a chantry in the Chapel of St. John Baptist, in the north aisle, where he was eventually buried, and where daily masses were said for the repose of his soul before the Reformation. His monument was transferred to the south transept during the "repairs and beautifications" of 1832, but is now restored to its original place over the poet's remains in the fifth bay (from the west), of the north aisle of the nave. The chapel and chantry have unfortunately disappeared.
In 1469 the stone roof of the old nave fell down. The accident has been attributed to the removal, in the reign of Richard II, of the flying buttresses by which the vault was originally supported, as is still the case with the choir walls. Another roof of groined oak was soon substituted, as less likely to suffer from its own weight. That it was not a specially light structure, however, may be inferred from the massive bosses preserved from it, and now to be seen on the floor of the north transept.
The crowning piece of work, which very shortly preceded the ruin brought about by the Dissolution, was set upon the Priory Church by Bishop Fox in 1520, in the magnificent altar-screen, which through all its mutilations has borne witness to his work in his favourite device of the "Pelican in her piety," and the humorous allusion to his name, in the figure of a man chasing a fox, among its sculptured ornaments. The west end of the church was considerably altered, and a new western doorway inserted, with a six-light window above it, at about the same time; when also the upper stages of the tower were erected. [19]The window is said to have been altered for the worse in the seventeenth century, and in its last phase the whole façade presented what Mr. Dollman describes as "a heterogeneous mass of masonry and brickwork," not worth preserving when the modern restoration was taken in hand. The flying buttresses have been reproduced in the new nave, and the chief doorway placed in the south-west corner, which the architect was led to believe was its original position.
It is generally admitted that by the sixteenth century the monastic institutions had so far departed from the ideal of their founders, and outlived their usefulness, as to call for some drastic measures for their improvement. Steps had been taken from time to time with this object, before the reign of Henry VIII, when a combination of circumstances, into which we need not now enter, enabled the King to carry out his scheme for the Dissolution of the monasteries, comprising the two chief classes of abbeys and priories into which they were divided. The coming storm was heralded at St. Mary's on 11th November, 1535 on which date, "by command of the king," a solemn procession was held in the church to inaugurate its downfall by a Litany, in which the Prior and Canons took part, "with their crosses, candlesticks and vergers before them," as if in mockery of the state of which they were so soon to be deprived. The "Act of Suppression," passed in 1536, sealed the fate of the smaller foundations, to be followed three years later by the "voluntary surrender" of their property by the larger monasteries, thus making a clean sweep of the whole. The last Prior, Linstede, has been blamed for so far acquiescing in the measure as to accept a pension from the royal bounty; but with the fate of the last Abbot of Glastonbury before him, who had been hanged for his resistance, he probably thought that his own opposition would only have led to a useless martyrdom without averting the fall of his priory. It may be mentioned, as having some bearing on our history, that part of the wealth released by the Act was applied to the foundation of six new bishoprics, thus by a strange coincidence bringing up the English dioceses to the number of twenty-four, originally fixed upon by Pope Gregory the Great, while his successor was set at defiance by the measures through which they were created.
St. Mary Overy now enters on a new phase of existence. We have seen that it had become a double church, by union with [20]the church, or chapel, of St. Mary Magdalene, the one a conventual, the other a public, place of worship. In the immediate neighbourhood there was a third church, dedicated to St. Margaret, which had been founded by Bishop Giffard in 1107, and granted to the fraternity at St. Mary's by charter of Henry I. By an Act of 1540, the year of Linstede's surrender, the whole were united into a single parish, under the title of St. Saviour's, thenceforward the official designation of the Collegiate Church and surrounding district. The new dedication was suggested by, and intended to perpetuate the memory of, the convent of that name in Bermondsey (founded by Alwin Child, a London citizen, in 1082), which shared the fate of its companions at the Dissolution.
Soon after the amalgamation, St. Margaret's Church was secularized, and divided into three portions for use respectively as a Sessions' Court, a Court of Admiralty, and a prison. It stood on the ground where the old Southwark Town Hall was afterwards built, itself a perpetuation of the secular uses to which the deconsecrated church was put before it was destroyed. A relic of St. Margaret's survives in the shape of a monumental slab to Aleyn Ferthing, five times Member for Southwark, about the middle of the fourteenth century. The stone was discovered in 1833 during some excavations on the site of the old church, and transferred to St. Saviour's, where it is imbedded in the pavement of the retro-choir. From 1540 the Priory Church and Rectory were leased to the parishioners by the Crown, at a rental of about £50 per annum, till 1614, when the church was purchased right out from James I for the sum of £800.
The Corporation into whose hands the newly constituted parish of St. Saviour's passed in 1540 consisted of thirty vestrymen, of whom six were churchwardens.[5]
The latter, as representatives of the ancient Seniores Ecclesiastici, were charged with the protection of the edifice and church furniture, but the records show that they had no special veneration for either. The Act of 1540, appointing them to St. Saviour's, had formed them into a Corporation in continuation of the Perpetual Guild or Fraternity of the Assumption, incorporated in 1449. This Guild was afterwards merged in [21]the Churchwardens of St. Margaret's, whence the existing officers were transferred to St. Saviour's on the amalgamation of the parishes, and others added to their number. With the help of their fellow vestrymen they soon set to work to render the Collegiate Church more convenient. To secure an easy communication between that church and the adjacent chapel of St. Mary Magdalene, they cut through the south wall of the choir, and constructed four clumsy arches in it, thus opening the way from one building to the other. From that time forward the smaller of the two was used as a vestibule, and the other chapels and chantries pertaining to the larger church were doomed to destruction, as being no longer required under the altered conditions. The proceedings which strike us as most sacrilegious occurred in the Lady Chapel. Perhaps they cannot be better described than in Stow's graphic words:
The chapel was leased and let out, and the House of God made a bakehouse. Two very fair doors ... were lathed, daubed, and dammed up, the fair pillars were ordinary posts, against which they piled billets and bavens. In this place they had their ovens, in that a bolting place, in that their kneading trough, in another (I have heard) a hog's trough, for the words that were given me were these: "This place have I known a hog-stie, in another a storehouse to store up their hoarded meal, and in all of it something of this sordid kind and condition."
That the description is not exaggerated is proved by the parish registers, which also show that the state of things went on for some years and did not improve with time. On 15th May, 1576, for instance, a vestry order is recorded in which the lessee of the chapel is called upon to repair certain broken windows and remove nuisances. In the following December, a further entry states that fourteen members of the vestry went in a body to the chapel to see whether their orders had been attended to, having allowed the lessee more than six months to act on the notice. They found the place turned into a stable "with hogs, a dung-heap and other filth" about, and were thereupon empowered to take legal proceedings to keep the tenant up to his contract.[6]
[22]In the reign of Edward VI the Prayer-book and its vernacular services were introduced. The people had hardly got used to them before the accession of Queen Mary, and the consequent papal reaction, restored the Latin mass, around which most of the religious controversies of the time were furiously raging. During that brief reign the retro-choir was turned to more respectable use as a Spiritual Court, though the memories attaching to it in that character constitute a gloomy chapter in its history which we would gladly eliminate.
On Monday, 28th January, 1555, and the two following days, a commission, appointed by the Cardinal Legate, sat there for the trial of certain preachers and heretics. It was presided over by Bishops Gardiner, of Winchester, and Bonner, of London, and included eleven other Bishops, besides several eminent laymen. On the first day the proceedings were open to the public, but as the crowd was inconvenient, and the example or logic of the accused thought likely to be contagious, the doors were closed on the Tuesday and Wednesday, except to a few privileged spectators. The trials ended in the condemnation of six clergymen of high standing, viz.:
1. The Rev. Lawrence Saunders, Rector of Allhallows', Bread Street.
2. The Rev. John Bradford, Prebendary of St. Paul's Cathedral.
3. The Rev. John Rogers, Prebendary of St. Paul's, and Vicar of St. Sepulchre's, Newgate Street.
4. The Rev. Rowland Taylor, Rector of Hadleigh, Suffolk.
5. The Right Rev. Robert Ferrar, Bishop of St. David's, and
6. The Right Rev. John Hooper, Bishop of Gloucester, all of whom were afterwards burnt. They are commemorated in the windows of the chapel, which include the Ven. John [23]Philpot, Archdeacon of Winchester, who suffered at the same time, though his examination was held elsewhere. The odium of this melancholy transaction of course rests on the presiding Bishops, neither of whom was afterwards anxious to take the undivided responsibility. Bishop Gardiner did not long survive it. He died on the 13th November, in the same year, at Whitehall, whence his body was conveyed, via Southwark, to Winchester for interment. The funeral procession went by water from Westminster to St. Mary Overy, where his obsequies were performed, and his intestines buried before the high altar, in order that the honour of holding his remains might be shared by the two principal churches in his diocese.[7]
Immediately on the accession of Queen Elizabeth, steps were taken to reconcile the conflicting elements within the Church of England, whose extreme representatives had been brought into violent collision in the previous reign. A compromise was offered to them in a new Prayer-book, which aimed at combining the principles of the first and second books of Edward VI, in order to comprehend within the pale of the Church those who had been excluded from it by a rigid interpretation of the rubrics on either hand. On one side the rubrics of Edward's second book were modified so as to allow greater liberty in the use of ornaments and vestments, while on the other, the sentences employed at the distribution of the elements in Holy Communion, which had been held to support two opposite theories of the Sacrament in the previous books, were united in the new one, as involving no real contradiction.
Notwithstanding the rubric which was inserted in Elizabeth's book for the retention of the ornaments in use under Edward VI, an order was issued in the first year of her reign (18th September, 1559), for the sale of certain "Popish ornaments" at St. Saviour's, to meet the expenses of repairing the church, and in consideration of the purchase of the new lease. A list of the ornaments so disposed of may be interesting:
Two small basons of silver, parcel gilt, weighing 22 ounces, with a salver, double gilt, and a paten, parcel gilt.
Two altar-cloths, and a vestment of black velvet and crimson satin, embroidered in gold and silver.
[24]A cope and vestment (deacon and sub-deacon) of green velvet, with flowers of gold.
Three copper cases, 43 pieces of stuff, and 4 "aules."
The whole of which were sold for £14 5s. 8d.
Other articles sold included:
A painted cloth from before the rood, realizing 7s.
Two altar-cloths of white fustian, 16s.
Two altar-cloths of white damask, with flowers of green and gold, 21s.
Two altar-cloths, pea-green and white damask, 17s.
Two altar-cloths of green and white satin, with letters of gold, 58s.
One altar-cloth of satin, 17s.
Three vestments of blue damask, with crimson velvet crosses, 42s.
A white damask cope; "a little narrow thing like a valance," with the name of Jesus in gold—sold for 8d.
Candlesticks, censers, with "other broken brass," "as little bells and such like," containing in weight, 34 lb., sold at 6d. a pound.
In pursuance of this destructive work an order was given on 31st May, 1561, "That all the church books in Latin be defaced and cut according to the injunctions of the Bishop"; the effect of which has been to deprive us of many valuable parish records which happened to be written in the Latin language, in addition to the more distinctly ecclesiastical books expressly included in the order.
On the very next day another order followed to the effect, "That the Rood Loft be taken down, and made decent and comely as in the other churches in the City." The changes which all this implies in the adornment and accessories of religious worship under Queen Elizabeth, were supplemented by the teaching from the pulpit. This was chiefly done by the "Preaching Chaplains" introduced at St. Saviour's in that reign. The first appointments were made in 1564, when two Chaplains assumed office, and divided the preaching between them.
The arrangement, allowing two men to act simultaneously but quite independently of each other, remained in force till our own times, though its disadvantages soon began to appear. The Chaplains, though committed by their appointment to the general doctrines of the Reformation, were by no means bound to agree on the many debatable questions to which [25]the Reformation had given rise, and did not always convey the same doctrines to their people, or work harmoniously together. It was not, however, till the year 1868 that this inconsistency was corrected by merging the two offices into one; and in 1883 the measure was supplemented by an Act which abolished the office of Chaplain altogether, and made him who then held it the first Rector.
It may here be added that the parishioners had acquired the right of appointment to the pastorate by their purchase of the church in 1614; but the scandals attending the public election at every vacancy led to its abolition in 1885, when the right was transferred to the Bishop of the diocese by Act of Parliament.[8]
In 1618 Dr. Lancelot Andrewes was appointed Bishop of Winchester, where he died in 1626. During his episcopate he often visited St. Saviour's, as the most important church in his diocese, next to his own cathedral. His pronounced churchmanship occasionally brought him into strong contrast with the Chaplains, who usually went much further in the Puritan direction than their Bishop, while they were themselves apt to be pushed forward or restrained by the parishioners. The latter, as holding the appointment in their hands, had established a sort of censorship over their pastors, which they were not slow to exercise against any tendency to "unsound" teaching. The records of the parish show that the Chaplains had to ask leave of absence when they wanted a holiday, and were otherwise kept in excellent order by their lay superiors.
About this time considerable alterations were made in the interior of the church to bring it into line with the current spiritual discipline. In or about 1615 galleries were set up for the first [26]time across the north and south transepts, and in 1618 a screen and gallery in place of the old rood loft between the nave and choir, were "worthily contrived and erected." Somewhere between this date and 1624 an inner porch, of semi-classical design, was inserted at the west end.
That closed and rented pews were introduced at this period may be inferred from the following Representation, made by the churchwardens to the Bishop of the diocese in 1639:
"We assure your Lordship that a Pew wherein one Mrs. Ware sits, and pleads to be placed, is, and always hath been, a Pew for Women of a far better rank and quality than she, and for such whose husbands pay far greater duty than hers, and hath always been reserved for some of the chiefest Women dwelling on the Borough side of the said Parish, and never any of the Bankside were placed there, the Pews appointed for that Liberty being for the most part on the North side of the body of the Church."[9]
The Prayer-book services were suspended at St. Saviour's, as elsewhere, during the Commonwealth, by the Act of Parliament passed on 3rd January, 1645, which established the "Directory" in their place.
"The Directory for the Public Worship of God in the three Kingdoms" was not so much a book of devotions as a set of instructions to the minister, who was allowed the discretion of using what the book provided, or extemporising a service of his own upon its principles. On the Restoration of Charles II, an attempt was made at the Savoy Conference (1661) to reconcile the conflicting religious parties into which the country had been divided—an attempt which was not at all successful with those outside the Church of England. The result of the Conference, as far as the Church was concerned, was the issue of the revised Book of Common Prayer in 1662, which restored, with certain modifications, the form of services withheld during the inter-regnum.
The sacraments had been much neglected under the[27] [28]Protectorate; baptism was seldom administered, and the records of St. Saviour's show that marriages were then performed by the magistrates instead of the ordained ministers, the banns being published in the market-place.
During the next few years various structural alterations were made within and without the edifice. The chief of these were the rebuilding, in 1676, of the Bishop's or Lady Chapel, which had been damaged by fire; and some alteration in the tower pinnacles in 1689, when new vanes (bearing that date) were also set up. Mr. Dollman conjectures that the buttresses, if they ever existed, were then removed from the tower.[10]
The "Bishop's Chapel" was a small building projecting eastward from the retro-choir. The name was popularly conferred upon it as the place of Bishop Andrewes' interment, but there can be no reasonable doubt that it was the true Lady Chapel, and that its more correct designation, though popularly disused, was the "Little Chapel of Our Lady." This small building was destroyed in 1830, as interfering with the approach to new London Bridge, when the body of Bishop Andrewes was transferred to its present place in the retro-choir.
In the eighteenth century the interior was altered in various details, with the object of bringing it into harmony with the current notions of ecclesiastical beauty, and the classical forms which architecture had assumed. In the year 1703 a new altar-piece, in the Corinthian style, was erected in front of Bishop Fox's fine stone screen, which it completely concealed. A wooden framework of classical pillars, with figures of Moses and Aaron on either side, and the Creed, Lord's Prayer, and Ten Commandments in the spaces between them, the whole surmounted by flaming censers and a circle of flying cherubs, made up a composition not at all bad in itself but utterly out of character with the Gothic work behind and around it. At the same time the sanctuary was railed and paved with black and white marble, the body of the church newly paved and galleried, a pulpit with sounding-board erected, and the whole church "cleaned, white-washed, and beautified throughout, at the charge of the parish." That the work was generally approved may be inferred from the remark of Stow's "Continuator": "This is now a very [29]magnificent church since the late reparation"; while another exponent of public opinion, speaking of this and some later improvements of the same kind says, "Though the church hath been often repaired, yet the beauty for which it is justly admired consists in this repair."
In May, 1821, the restoration of the choir was proposed and entertained for the first time, a restoration which the dilapidated state of the clerestory and triforium showed to be necessary. The proposal was not allowed to pass without opposition, for a [30]counter motion was submitted for the complete destruction of the whole building except the tower, to which a brand-new church was to be adapted. Fortunately this latter scheme was negatived by a large majority of the parishioners, and the work of restoration was committed to the then famous Gothic architect Mr. George Gwilt. He did his work most carefully and conscientiously, adhering as far as possible to the original, though hampered throughout his progress by contradictory instructions from the managing committee, who, like most bodies of that kind, were apt to fluctuate between motives of economy and a sense of what was due to the ancient fabric. The Gothic revival was then in an incipient stage, and Mr. Gwilt, or his committee, must be held responsible for the removal of the old east gable, with its five-light Tudor window, erected by Bishop Fox, in place of which a new window of three lights was inserted. During this restoration the Church of St. Mary Magdalene was demolished in 1822, together with some old houses, which are less to be regretted as having encroached too closely on the walls of the choir.
In 1825 the restoration of the nave began to be seriously considered, its dilapidated state having been made more conspicuous by contrast with the restored chancel. Tenders for the work were invited by public advertisement, but nothing important was done while the vestry were discussing the respective advantages of "rebuilding" and "repairing," and the nave was neglected till it got beyond repair. In the meantime the two transepts were restored by Mr. Robert Wallace in 1830.
He substituted new designs of his own for the original tracery in the most important window in the south transept; and (probably influenced by an economical committee) made the fatal mistake of employing cement instead of stone for the interior mouldings, and a soft Bath stone for his repairs to the exterior. The action of time and weather has shown the false economy of the work. In the same year the "Bishop's Chapel" was destroyed, as before mentioned. In 1832 a much graver act of vandalism was threatened by the Bridge Committee in their proposal for widening the roadway, which meant the entire destruction of the retro-choir. The suggestion was to leave a space of sixty feet wide, afterwards extended to seventy, between the east end of the church and the bridge.[11] This was too much for the [31]inhabitants of Southwark, who rose to the occasion in a vigorous protest by which the venerable building was saved.
At their first meeting on the subject (24th January) the vestrymen endorsed the proposal of the Bridge Committee by a large [32]majority. At a subsequent meeting, held within a week, public opinion had been aroused on the subject, and the majority was reduced to three. The moral victory for the Church and Borough of Southwark, headed by Bishop Sumner, was secured by the poll there and then demanded, the result of which was announced, in two days' time, as: "For the retention of the building, 380; against, 140; majority for the retention, 240."
The retro-choir was saved, and Mr. Gwilt completed the good work by restoring it, giving his services gratuitously. The nave had been already doomed. It had got into such a ruinous state by 1831 that at a Vestry Meeting holden on the 3rd, and confirmed on the 10th, of May, it was resolved:
"That the whole of the roof, from the western door to the west end of the tower, called the nave, consisting of ceiling, roof, walls, and pillars, as far as dangerous, be sold and cleared away; the remainder of the walls, pillars, and family vaults to be left open to the weather. And that the choir, north and south transepts, be enclosed, to the eastern part of the church, for divine service; and that the pews, situated in the nave, be removed into such part, for the accommodation of the inhabitants."
In 1838 the nave, having been sufficiently operated on by the climate and other destructive forces, was taken down; and in the following year the foundation stone of a mean and flimsy substitute, in the "Gothic" of the period, was laid by Dr. Sumner, then Bishop of Winchester. The interior, thus limited and reduced, was fitted up with timber staircases, wainscoting, galleries, high pews, and a "three-decker" pulpit, which answered the double purpose of obscuring the sanctuary and enabling the preacher to command his audience in the galleries.
The barbarous result did not escape the sensitive eye of Mr. A.W. Pugin, the great Gothic revivalist, who gave vent to his indignation in a scathing article in the "Dublin Review." He said:
"It may not be amiss to draw public attention to the atrocities that have lately been perpetrated in the venerable church of St. Saviour's, Southwark. But a few years since it was one of the most perfect second-class cruciform churches in England, and an edifice full of the most interesting associations connected with the ancient history of the Metropolis. The roof was first stripped off its massive and solemn nave; in this state it was left a considerable time, exposed to all the injuries of wet and weather; at length it was condemned [33]to be pulled down, and in place of one of the finest specimens of ecclesiastical architecture left in London—with massive walls and pillars, deeply moulded arches, a most interesting south porch, and a splendid western doorway—we have as vile a preaching-place ... as ever disgraced the nineteenth century.
"It is bad enough to see such an erection spring up at all, but when a venerable building is demolished to make way for it, the case is quite intolerable. Will it be believed that, under the centre tower, in the transepts of this once most beauteous church, staircases on stilts have been set up, exactly resembling those by which the company ascend to a booth or race-course?... Nothing but the preaching-house system could have brought such utter desolation on a stately church; in fact, the abomination is so great that it must be seen to be credited."
Strange as it may appear, the seating accommodation under this arrangement was even greater than it is at present, and the congregations at the Sunday services were almost as large as they are to-day. It would be quite wrong, therefore, to suppose that no religious work was going on in the parish. But beyond the parishioners, and the few antiquaries who visited the church from time to time, it was scarcely known to the outside world, except when the bells rang out the old year on the 31st of December, or when a dismal light in the windows proclaimed the Christmas distribution of bread, coals, and blankets to the poor of the neighbourhood.
It was impossible, however, that an edifice with the history and associations of St. Saviour's, should escape the religious and artistic revival of which the Oxford movement was the cause or the outcome; and the restoration of this fine church to its original beauty, and more than its original usefulness, has followed almost as a matter of course. The scheme for its restoration, although in the air for some time previously, began to take a definite shape in 1877, when St. Saviour's, Southwark, with other South London parishes, was transferred from the diocese of Winchester to Rochester. Dr. Anthony Wilson Thorold was appointed to the See of Rochester in the same year, and very soon lent his full energies to the work. In 1889 a meeting of the chief parishioners was summoned to inaugurate the scheme, and a subscription list was at once opened, headed by his Lordship with £1,000. An appeal to the public was immediately issued, and was generously responded to by great and small. Among the larger donations may be mentioned the [34]sum of £5,000 from Lord Llangattock, £2,000 from Messrs. Barclay, Perkins and Co., with several gifts of £1,000 each from Sir Frederick Wigan and others. These large amounts were supplemented by the equally acceptable offerings of humbler people, for which collections were made at numerous churches within and without the diocese. Perhaps the most important of these, in a money sense, was that at a Masonic Service, held in the Collegiate Church itself on Ascension Day, which yielded over £2,000. On 3rd November, Bishop Thorold preached at St. Saviour's on behalf of the fund, and in the same month Sir Arthur Blomfield was chosen as architect for the restoration. The miserable structure of 1839 was at once swept away, and on 24th July, 1890, King Edward VII, then Prince of Wales, laid the foundation stone of the new nave. It was completed within seven years by Messrs. T.F. Rider and Sons after the design of Sir Arthur Blomfield. Guided throughout by the remains of the old work, and many existing drawings of the ancient nave, as a whole, and in its separate details, the architect has succeeded in a practical reproduction of the original building.[12] The erection, with other reparatory work, was accomplished at a cost of over £40,000; but he who had initiated it was not spared to witness its completion. Shortly after its commencement, Bishop Thorold was transferred from Rochester to Winchester, and died in the summer of 1895.
His successor in the See of Rochester, Dr. Randall Thomas Davidson (appointed in 1891), did not allow the work to flag under his administration, which came to an end with the death of Dr. Thorold in 1895. The episcopal changes then made resulted in the translation of Dr. Davidson to the See of Winchester, and the appointment of Dr. Edward Stuart Talbot to Rochester. By a happy coincidence, the parish church at Leeds, from which he was transferred, bore the same dedication as that of the Collegiate Church whose completion it was his good fortune to celebrate.
On Tuesday, 16th February, 1897, the building was reopened after restoration, and reinstated in its position as a Collegiate Church, with the added dignity of a pro-Cathedral, in [35]anticipation of its becoming the Cathedral Church of the new diocese of Southwark already in view.
The Collegiate Chapter was formed by Statutes promulgated by the Bishop of Rochester in February, 1897. The following were the members of that body immediately before the changes consequent on the formation of the new diocese:
Dean:
The Lord Bishop of Rochester, the Rt. Rev. Edward Stuart Talbot.
Sub-Dean:
The Lord Bishop of Southwark, the Rt. Rev. Huyshe Yeatman-Biggs.
Canons:
Rev. William Thompson, D.D. Chancellor.
The Archdeacon of Southwark (Ven. S.M. Taylor, M.A.) Precentor.
Rev. R. Rhodes Bristow, M.A. Canon Missioner.
Rev. Allen Edwards, M.A.
Lay Members of the Chapter:
Sir Frederick Wigan, Bart. Treasurer.
W.A. Bell, Esq. Assistant Treasurer.
J.T. Scriven, Esq. The Warden of the Great Account.
George Newton, Esq. The Rector's Warden.
Other Officers:
Rev. W.A. Chaplin, M.A., Mus. Bac. Succentor and Sacrist.
A. Madeley Richardson, Esq., M.A., Mus. Doc., Oxon. Organist and Director of the Choir.
Rev. J.H. Greig, M.A. Librarian.
A.W. Dodwell Moore, Esq. Chapter Clerk.
Mr. Hutching and Mr. Spice. Vergers.
Mr. Coombes. Chapter House Verger.
The Collegiate Church and Chapter, being dependent on voluntary contributions for their maintenance, a fund was raised which assured a sum of about £2,000 per annum for all purposes for five years. As that period has already expired, [36]a like sum has again to be secured. It may be added that this fund does not suffice to meet the expenses incurred by the daily choral Evensong, which was started in June, 1899. The contributions received for this purpose ("The Daily Choral Service Fund") have hitherto been just sufficient, and it is hoped that by help from a somewhat wider circle of those interested in the efficiency of the Collegiate Church, this service, which has been increasingly appreciated, will not have to be discontinued. The Treasurers are the Bishop of Southwark and the Precentor.
A Collegiate House has also been purchased, in which the unmarried members of the Chapter may reside as well as the Collegiate body. The latter consists of clergy in Priest's Orders, who undertake to place themselves at the disposal of the Bishop for work in connection with the diocese or Collegiate Church.
A valuable addition has been made to the Collegiate buildings in view of the elevation of the church to the rank of a cathedral. The old church of St. Thomas, adjoining the Collegiate House, which would have been pulled down, has been saved and turned into a Chapter House. It serves for diocesan meetings, and will hold about 400 people. It is connected by a corridor with the Foster Hall of the Collegiate House, and thus forms a convenient series of rooms for large or small conferences. It is a plain red brick building, with stone dressings, at the west end of which is a three-storied tower of the same materials. The ground floor of the tower forms the porch. Entering by this way we find ourselves in a lofty oblong hall, about 60 feet by 30, with a gallery on the north and west, and the altar-piece before us at the east end, shut in by a wooden partition, in front of which stand two chairs—one for the Bishop, the other for his Suffragan. The history of the present building dates from 1702, when it was erected on a monastic foundation, the funds being provided by a grant of £3,000—out of the coal dues, pursuant to a Statute of William and Mary, the Governors of St. Thomas's Hospital providing the balance. The date is given on the central panel of the old pulpit, which is preserved, in reduced form, as a reading desk. Both this and the altar-piece are made of oak. The altar-piece is rather a fine specimen of wood-carving in the Corinthian style, with the usual tables for the Creed, etc. (now blank) between two pilasters, surmounted by the arms of George I. The old pews were [37]demolished, as no longer required, when the church was transformed into a Chapter House, but the fine grained oak of which they were made was turned to account for doors and panelling. Below all this there is a crypt, of much earlier date, which now answers the purpose of a refreshment department on special occasions.
Behind the eastern wall a smaller hall has been erected between the Chapter House and the adjacent Collegiate House. This serves the double purpose of a vestibule and a place for smaller gatherings. The generous donor wishes to remain anonymous, but is partially revealed in a tablet over the fireplace, which says:
"As a Thank-offering for many blessings during a long life, a merchant of the City of London constructed this Meeting Hall, and munificently contributed to the purchase of the Collegiate House of St. Saviour, Southwark, Sep 4, 1898," surmounted by his arms and the legend "Watch and be ready."
[38]A library, already consisting of several hundred volumes, is being formed in the Chapter House, for the use of the clergy and licensed Readers of the diocese—in addition to the Collegiate Library proper, which at present is kept in the same place.
With all its advantages, the present Chapter House is acknowledged to be an unworthy representative of the original, as being at an inconvenient distance from the Cathedral, and out of character with it in design. Unfortunately no trace of the old house, or of its exact site, is left to us. The Cloisters and the College, or Priory, are known to have been on the north, the Prior's residence at the north-west angle of the Cloisters, and the Refectory at the north-east end. The whole formed a splendid group of buildings and covered a large area, bounded on the north by the Thames; on the south by the church and churchyard; on the east by the "Bishop's Chapel," with a wall beyond it (at about the distance of the present roadway); and on the west by a small creek (St. Saviour's dock), beyond which lay the Bishop of Winchester's palace and garden.
By an instrument dated 15th July, 1545, the whole of the Priory lands were made over to Sir Anthony Browne, Knt., in the following comprehensive terms: "Totum situm septum circuitum ambitum et precinctum nuper Monasterii sive Prioratus beate Mariae Overey in Com. Surr."
The work of demolition dates from that time, and the old buildings have gradually disappeared to make way for the modern wharves and warehouses which have since occupied the ground. The finishing strokes were put to the destruction during the first half of 1835, when Mr. E.J. Carlos, the archaeologist, visited the ruins, and describes them as then showing "scarcely one stone upon another." They had previously been visited by another antiquary (Mr. John Carter) in 1797 and 1808, when there was a little more to be seen. Both gentlemen gave their experience in the pages of the "Gentleman's Magazine," with a conjectural description of the group of buildings as it had been, contrasted with the desolation they then witnessed. (See the "Gentleman's Magazine" for 1808 and 1835.)
[39]
THE CATHEDRAL FROM THE EAST.
Reproduced from a drawing by Mr. Hedley Fitton, by permission of the "Daily Chronicle."ToList
[1] See a paper read before the Society of Antiquaries, in 1833, by Mr. A.J. Kempe.
[2] Burnham-Overy, in Norfolk, and Barton-Overy, in Leicestershire, show that the suffix is not peculiar to St. Mary's, Southwark.
[3] It may be well to explain that a "Collegiate Church" takes its name from the Collegium, or collected body of priests, attached to it, who were called "Secular Canons" in distinction from the "Regular Canons" of a monastery. The latter were monks who had been admitted to Holy Orders, but still continued in obedience to the rule (regulus) of the foundation to which they belonged. The Seculars were more or less like our parochial clergy in that they were subject to no such regulation, lived and moved without restraint among the people, and in early days were not infrequently married. Until the time of Pope Gregory VII (1073-1085), the celibacy of the extra-monastic clergy was not at all generally insisted on. Even after the twelfth century, when greater strictness had been enforced by the first and second Lateran Councils, the marriage of the secular clergy was frequently connived at by their superiors, who even tolerated a system of concubinage which they were unable to prevent—propter duritiem cordis—by which a law of nature was provided for, in defiance of the law ecclesiastical. The question was finally settled by the Council of Trent in 1563, since when the celibate rule has generally been strictly observed in the Roman Church. The absence of such a rule in the Church of England is, of course, due to the Reformation.
With very few exceptions the English "Colleges" were suppressed by an Act of 1545. The name seems to have clung to St. Saviour's through all its subsequent changes, rather by old association than as having any practical value, till the collegiate character, as well as the title, was formally restored to it in 1897 by Dr. Talbot, then Bishop of Rochester.
[4] The dedication of the hospital was altered to "St. Thomas-the-Apostle," in 1540, when the official title of the church was changed to St. Saviour. To make way for the line of railway between London Bridge and Charing Cross, a wing of the hospital had to be pulled down, and the whole was transferred to the Albert Embankment, where the new buildings were opened by Her late Majesty Queen Victoria in 1871.
[5] In 1900 the number of churchwardens was reduced to five, of whom two only discharge ecclesiastical duties.
[6] That the vestrymen were not indifferent to creature comforts is shown by an entry in their records for 5th April, 1569, from which it appears that it was their wont to eat a calf's head pie in the vestry in celebration of Easter. The luxury was supplemented in 1600-1607 by the gift of a buck and 20s. from Sir Edward Dyer, to provide an entertainment for the vestrymen and their wives at the same season. On the other hand, they were not allowed to have it all their own way, for a resolution of 25th April, 1569, prohibits more than one of them from speaking at once, under a penalty of 4d., and imposes a fine of 2s. 6d. for irreverent behaviour in the vestry. They were also required to wear their gowns in the vestry, and to attend the funeral of any of their confrères, or their wives (if desired), under a penalty of 4d. It is fair to add that they were alive to their responsibilities as they understood them, e.g., on 3rd March, 1571, they gave the clerk warning, and appointed another in his place who was "a good bass and tenor," at a salary of £1 6s. 8d., "that the choir might be better served."
[7] The viscera of his successor, Bishop Horne, are also said to have been buried at St. Mary's in 1579.
[8] We have a striking illustration of the joint pastorate at the same period, when the judicious Hooker was Master of the Temple, and Mr. Travers the Lecturer. The result was that "the forenoon sermon spake Canterbury, and the afternoon Geneva."—Walton's "Life of Hooker."
Another instance of this difference of opinion comes before us at St. Saviour's itself. Dr. Thomas Sutton, who was appointed Chaplain there in 1615, was an ardent denouncer of plays and players, of whose iniquities he was constantly reminded by the Globe and other theatres in the neighbourhood. His superior, Dr. Lancelot Andrewes, on the other hand, does not scruple to draw freely on the theatre for his illustrations. See for example Bishop Andrewes' sermon on St. Matt. vii, 6, preached before James I on Ash Wednesday, 1622.
[9] It may be mentioned, as throwing some light on the above, that the Bankside had acquired an evil reputation through the brothels and other iniquities tolerated in that quarter, and more or less recognised in the Acts of Parliament for their regulation. The north side of a church was in the Middle Ages usually appropriated to women, as inferior to the south, which was reserved for the opposite sex. The north side of the churchyard was used for the burial of ordinary people, a fact which explains St. Swithun's humility in choosing it for his own resting-place.
[10] His words are these: "Supposing Hollar's and other views of the church (in which buttresses at the angles of the tower are shown) to be correct, the buttresses as well as the pinnacles were then removed."
[11] The space was eventually left at 130 feet, as it now stands.
[12] Mr. Dollman, who probably knew more about the ancient fabric than any living man, was heard to express his regret that his own great age prevented his active co-operation, but he was delighted that the work of restoration had fallen to such competent hands.
At the present day St. Saviour's Cathedral is most unfortunate in its surroundings, and cannot be seen as a whole from any point, near or distant. Hemmed in as the church is by London Bridge on the east, the Borough Market and railway arches on the south, and by tall warehouses on the other sides, the confined space in which it stands is a decided hindrance to the near perspective, while the surrounding buildings shut off the view from a distance in all directions.[13]
The railway line from Cannon Street commands a fairly good [42]prospect from the south-west, as it passes the church in its course. A closer prospect is to be obtained from the London Bridge approach which takes in the Lady Chapel, the east and south sides of the choir, the tower and south transept. A few yards further up the slope we, of course, lose the south aspect, but get a fair view, from the north-east corner, of part of the east front and the north transept, including the new Harvard window in the chapel beneath it. If we descend the short flight of steps at the foot of the bridge, and take up a position in the south-east corner of the open ground outside the church railings, we get a fairly good view of the south side from the Lady Chapel to the south-west porch, but lose sight of much of the east end, and therefore of one of the most characteristic external features.
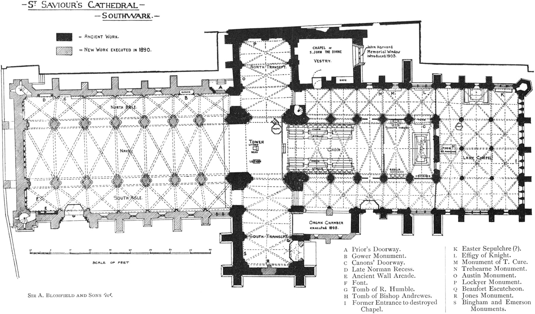
The church lies in a general east and west direction, and is cruciform in plan, consisting of a nave, north and south transepts, a central tower, and choir, beyond which is the retro-choir, or so-called Lady Chapel. The nave and choir have aisles, but the transepts have not. While strict orientation has been secured in the main building, it will be noticed that the chancel is slightly deflected towards the south, in supposed mystic allusion to the drooping head of the Saviour upon the Cross, a piece of symbolism very frequent in Gothic churches, and here rendered peculiarly appropriate by the dedication.[14]
Starting our perambulation at the East End, it will be noticed that the so-called Lady Chapel is actually an enlargement of the choir, such as we find on a much grander scale at Durham or Fountains, and may be compared to the "Presbytery" at Chichester, from which the Lady Chapel projects, or to the "New Building" at Peterborough Cathedral. This addition was made to the church by Peter de Rupibus in the thirteenth century, as a retro-choir or ambulatory. It was carefully restored by Mr. George Gwilt, in 1832, from much external mutilation to something like its original state. The eastern side consists of four bays, divided by buttresses, and surmounted by pointed gables, with ornamental crosses on the apices. In each of the gables there is a triplet of narrow lancet windows, which light the space between the internal vault and the roof. They have sculptured heads in the moulding above the central light in each triplet. The bays below are lighted by a similar series of larger [43]windows of simpler construction, the moulding of the sides being carried over the lancet points in unbroken continuity. In the north-east corner there is a short hexagonal stair turret, but the opposite corner is simply supported by ordinary buttresses. The walls are made up of rubble and flints, with ashlar dressing, as is supposed to have been the case throughout the original church, where, however, the flints are said to have been squared. In the reign of Edward III, a small Lady Chapel was built against the east end of this retro-choir: it projected from the second bay from the south, where the window was removed to connect it with the church. After the interment of Bishop Andrewes within it, this little appendage became popularly known as the "Bishop's Chapel." It was demolished in 1830, on the ground of its supposed interference with the approach to the new London Bridge; but as it only projected thirty-four feet (a distance which would have placed it well within the present churchyard railing) its destruction seems to have been an unnecessary act of vandalism. The retro-choir itself narrowly escaped sharing its fate, but was fortunately spared, and the tomb of Bishop Andrewes was removed to its present position immediately behind the high altar. The true Lady Chapel being destroyed, the dedication seems to have been popularly transferred to the structure so closely associated with it, and most people concerned are now very unwilling to part with the familiar name.[15]
Above the Lady Chapel, as it is now called, we have a view of the East End of the Choir, as restored by Mr. Gwilt at the same time. This part of the church having been considerably altered by Bishop Fox, in or about the year 1520, the restoring architect, though anxious to go back to the thirteenth century [44]work, had scarcely any data to guide him to its reproduction. The result was the more or less original elevation that we now see. It consists of a three-light lancet window at the east end of the choir, with a small circular window, with seven cusps, in the gable above, surmounted by a cross, and a stair-turret, terminating in an octagonal pinnacle at each end of the elevation.[16]
The pitch of Mr. Gwilt's gable was below that of its predecessor; but with this exception (the responsibility for which lies rather with the building committee than with him) his work must be considered very satisfactory. His body now lies at rest in the family vault in the south-east corner outside his work, and he is commemorated in a window within, as well as in a marble tablet behind the altar-screen.
The South side of the Lady Chapel contains a central window of three lights and geometrical tracery, with a lancet window on the right and left. The mouldings of these side windows are not exactly alike, that on the right (of the spectator) being extremely plain, while the other is supported by slender shafts, terminating in delicate floral capitals.
This aspect of the chapel was completely hidden by the parish church of St. Mary Magdalene Overy, erected against it in the thirteenth century, and destroyed in 1822, after having undergone many alterations. The choir entrance, at the intersection of the choir and south transept, is not remarkable, and need not detain us.
The South Transept, which has a public doorway on its eastern side, was erected, with its companion on the north, in the first half of the fourteenth century (circa 1300-1350) in the Decorated style of that period. It was rebuilt by Cardinal Beaufort in the following century, which accounts for certain architectural differences between the two transepts, chiefly noticeable in the windows and in the interior walls. The front of this transept was repaired in brick in 1735, and the restoration of both was taken in hand by Mr. Wallace in 1830. At the earlier date the original window in the south elevation was "enlarged and beautified," which means that the tracery was taken out, and a cheap substitute inserted, without tracery, and [45]with plain mullions instead of the original elaborate lights. Mr. Wallace improved upon this feeble design by introducing another window, on a pattern partly of his own invention, partly based on a circular window in the adjacent Winchester Palace, which is said to have been singularly ill adapted for stained glass.
[46]When the restoration was undertaken by Mr. Wallace, enough of the old work remained to show that the original design had a high-pitched roof, with a gable recessed behind a straight parapet, and that the large window, though all cusping and tracery had disappeared, was similar, in its main divisions, to that which Sir Arthur Blomfield has inserted. Mr. Wallace's restorations, here and elsewhere, were made quite independently of the suggestions to be found in the ancient work, which Sir Arthur was before all things anxious to reproduce. In the present window we have a practical reproduction of the original, as far as its features could be ascertained. It consists of five lights, combining the earlier geometrical with the later flowing tracery of the Decorated period, and an element of Perpendicular.
Below the transoms there is a series of unglazed panels, which have not escaped criticism as spoiling the proportions of the window; but most people are satisfied with them in the interior, where the wall arcading at once explains the necessity, and gives effect to the whole. A simple three-light window has been placed in the gable above. The windows on the east and west sides of this transept, though renovated by Sir Arthur Blomfield, date from the time of Edward III, as Mr. Wallace did not interfere with them beyond shortening the length of one on the east. Below the great window in the south elevation there had formerly been an entrance to this transept, to which a wooden porch was added. These are now swept away, and the entrance has been transferred to the eastern side, formerly blocked up by the church of St. Mary Magdalene. Mr. Wallace had changed the design of the buttresses, and affixed pinnacles to them, on the authority of certain old engravings which represent them as existing at an earlier period. It may be said, however, that the old pictures differ very much from each other in such details, and cannot be relied on for accuracy. Sometimes, no doubt, though almost contemporaneous, they represent alterations actually made at the church within a short time of one another; but the discrepancies between them are just as likely to be due to the caprices of individual engravers. On the other hand, it is fair to them to remember the innovations, for better or worse, which the vestry and churchwardens thought it right to make at frequent intervals. Some of them occur in the history of this very transept. For instance, the original gable was removed early in the eighteenth [47]century, and a covering substituted, of a kind which Mr. Dollman humorously describes as "the pleasing novelty of a hipped roof." Again, in 1679 a sundial was placed over the central window, to give way in 1735 to an ingenious combination of sundial and clock, for which a triangular arrangement, presenting a clock of two faces, was substituted four years later. See illustration, p. 27. All these may now be regarded as among the things that have never been, except in the historical lessons they contain.
The Tower, at the intersection of the nave and transepts, is 35 ft. square externally, and rises to the height of 129 ft. 6 in., exclusive of the pinnacles, which stand 34 ft. higher. The exterior walls throughout consist of the intermixture of flint and stone, characteristic of the rest of the church, except the transepts, which are of Bath stone. It has been stated that the tower was originally supported at the angles by buttresses, but it is not at all certain that this was the case, and it would have been an unusual and dangerous experiment to remove them, unless the tower had been altogether rebuilt. That the old builders did not shrink from such daring alterations, however, is proved by their having removed the flying buttresses from the original nave, which led to the collapse of the roof in 1469. In a bird's-eye view of Southwark, including St. Saviour's Church 'as it appeared' in 1543, the buttresses are absent. In an engraving by Hollar (usually accurate), dated 1647, the buttresses are shown. The present appearance of the tower is against the theory, as there is next to nothing for the buttresses to rest on; but it is probable that the angles were altered at the same time, and Mr. Dollman has given his weight to the conjecture, apparently relying on Hollar's correctness, in preference to less known engravers. The first stage of the tower, just visible above the roof, was erected at the same time as the adjoining transepts. The two upper stages are attributed to Bishop Fox (circa 1520), and are in the Perpendicular style of his date. The uppermost stage is chamfered at the quoins, leaving a small off-set at the level of the next. Each story contains two windows of two lights, transomed, the whole terminating in an embattled parapet, with crocketed pinnacles at the corners, surmounted by vanes. These were put up by Mr. Gwilt in 1818, in place of the old vanes, dated 1689, the pattern of which was slightly different. If the early engravings are to be trusted, Mr. Gwilt [48]also made a considerable alteration in the design of the pinnacles at the same time. The two rooms within the tower are reserved for the ringers and the peal of twelve bells which the church has possessed since 1735.[17]
The South side of the Nave brings us to Sir Arthur Blomfield's chief restoration, or rather rebuilding, of 1890-1897.
As explained in the introductory chapter, the nave had been walled off from the eastern portion of the church and allowed to drop into ruinous neglect from 1831 till 1839, when a flimsy substitute was begun. The foundation stone was laid by Dr. Sumner, then Bishop of Winchester. The fragile nature of this work may be inferred from the fact that it was finished in the following year, and as the floor was raised seven and a half feet above the old level it was impossible to use the new nave in connection with the choir and transepts.
Guided by the ground plan of the thirteenth-century nave, showing the position of the columns of the arcade, and the outer walls generally, as revealed when the modern brickwork was removed, Sir Arthur has succeeded in giving us a practical reproduction of the original, both in character and material.[18] It will be no disparagement to his admirable work to say that it was made more easy by the labours of his predecessors, Mr. Gwilt and Mr. Dollman, and especially by the careful plans and drawings which the latter gentleman left behind him after fourteen years' patient study of the fabric. The south elevation exhibits seven bays, divided and supported by flying buttresses, each bay of the clerestory being lighted by a plain lancet window.
The flying buttresses had been removed from the old nave, with disastrous consequences to the original roof, as already stated. They are now replaced, and at once give strength and [49]effect to the elevation, besides bringing it into harmony with the architecture of the choir, where the flying buttresses were never removed. The wall spaces in the aisle below are occupied by five lancet windows, matching those in the clerestory, except in the bay next the transept, where there is a beautiful window of three lights. Before describing it, the interesting fact may be mentioned that the window in the westernmost bay of this aisle had been concealed and protected, while its neighbours were destroyed, through having a small wooden house, or shed, built up against it. The single window thus accidentally preserved, was taken as a model for the new ones throughout the aisle and clerestory, with the exception of the larger aisle window just referred to. This, though also entirely rebuilt, is a modified reproduction of that which filled the same space in the time of Edward II—a fine example of the Decorated style. Divided by sub-arcuation into three lights, surmounted by circles of quatrefoil tracery in the spandrels of the arches, and supported by composite shafts, with moulded bases and foliated capitals, this elegant window had been allowed to drop into a ruin. Drawings of it had fortunately been taken before it was too late, and the present work gives us the leading features, and practically the details, of the original.
The most conspicuous object in the whole of this elevation is the Doorway to the south-west, which is the principal entrance to the Cathedral. In all probability the door was placed in this position when the Norman nave was built by Bishop Giffard (circa 1106); but its character was altered by Peter de Rupibus, a century later, to bring it into harmony with the rest of his Early English work, when he remodelled the nave in that style.
The porch that we now have agrees in its main features with the drawings taken of the earlier one before it was destroyed. A deeply recessed and acutely pointed arch is divided into two by a central shaft, with moulded base and foliaged capital. The jambs contain five shafts on each side, which differ from that in the centre, in that they are of Purbeck marble, and banded, in pleasing contrast to the plain stone of their own bases and capitals, and of the (unbanded) central shaft. In the tympanum of the double doorway thus formed, there is a pointed arcading, consisting of a central arch and two smaller arches on either side. The deep soffit of the arch in which this [50]elegant arcading is enclosed, is adorned with a series of quatrefoil panels.
From the remains of a bracket discovered in the ruins of the former arcading, it is obvious that the central space was intended for a statue. We are not left to mere conjecture on this point, but have documentary evidence to confirm it, which shows that the recess held a seated figure of the Blessed Virgin, the [51]patroness of the church.[19] The arch is now vacant, though supplied with a suggestive pedestal; and there is one other detail in which the restorer appears to have departed from his original, viz., in not reproducing the small clusters of foliage that were distributed along the hollows of the mouldings.
The long gargoyles projecting horizontally on either side of the roof, and the floriated cross on the apex, are worth notice. The modern restoration is indicated by a cross (patée) carved on the central buttress on this side of the Cathedral, which marks the stone laid by King Edward VII on 24th July, 1900, when His Majesty was Prince of Wales.
The West Front is chiefly remarkable as presenting a dead wall where we usually expect to find the grand entrance. It is a debated question among antiquaries and architects whether the first Norman church ever had a doorway in this front; and the question has not got beyond conjecture as to the Early English church which superseded it in the thirteenth century. It is certain, however, that a rich and elaborate entrance, deeply recessed, was inserted here in the Perpendicular age (sixteenth century), about the same date that the upper stages of the tower were set up, either for the first time, or in place of an earlier doorway.[20]
The same uncertainty attends the history of the great west window; all traces of the original having disappeared when a window of the Perpendicular style was introduced in agreement with the doorway below. Before the alterations, or mutilations, of the seventeenth century, this window was of six lights transomed, with cinquefoil tracery at the heads of the lower (and probably also of the upper) lights, as inferred from the fragments which survived its mutilation.[21]
[52]In the absence of data as to the Early English façade, the architect for the restoration has been thrown to a large extent upon his own resources. The question of the doorway he has answered in the negative. The window he has given us consists of three lancet lights corresponding with those at the east end, but considerably longer, with an unglazed panel of similar design, on either side, diminishing in height from the central light outwards in harmony with the lines of the roof. The north and south ends of the façade are flanked by stair-turrets, square in their lower portion, rising into octagons, and surmounted by sharply pointed roofs. To relieve the monotony of the horizontalism, a simple arcading has been inserted in the wall spaces above the central window, and above the aisle windows (plain lancets) on the right and left. Independently of the question of precedent, the absence of a doorway in this front is quite intelligible at the present day, when the church wall almost touches the narrow public pavement, and the close street of lofty business houses allows no room for perspective, or even convenient access.
The North Side of the nave corresponds with the south, each bay containing a lancet window in the clerestory. The spaces in the aisle below are similarly lighted, except in one bay towards the east, where Gower's monument in the interior necessitates a shorter window, which is here made a double lancet. At the extreme eastern end of this side of the nave we come to a most interesting relic in the remains of the Norman Doorway (twelfth century), which had been the Prior's entrance from the cloisters. Shut in and completely hidden by brickwork, it was discovered in 1829 in a shocking state of mutilation, but fortunately in situ. It was further mutilated, and bricked up again during the building operations of 1839, to be again revealed when the rubbish of that date was cleared away for the new nave, where the fragments are now carefully preserved in the wall. The archivolt is no more, all that we have being some fragments of the jambs on which it rested, one of which, on the east side (on the returned face), shows two old consecration crosses. In its perfect state this fine specimen of late Norman work is known to have consisted of three orders of shafts (banded) in the jambs, with moulded bases and sculptured capitals, the bold archivolt also displaying three orders.
Of these the outermost was of leaf ornament, the second [53]zigzag, and the third a conventional floral design, suggesting a combination of the trefoil and Greek honeysuckle. The zigzag moulding forming the innermost order was continuous along the jambs and arch. Close to this doorway, on its eastern side, there is a smaller, but equally interesting, relic in the remains of a Holy-water Stoup. It is fixed in a large and deep recess, with an angular arch above it, too dilapidated to afford a hint [54]as to the original moulding, which we can only assume was not unworthy of the rich doorway by its side.
A few yards westwards we are reminded of the antiquity of the site by a mass of Roman tiles, arranged herring-bone fashion, as if they had been used in the wall of some earlier (probably Saxon) building on the spot. They are now tightly packed in a case, exactly as they were discovered, for their better protection against relic hunters, whose ideas of property, when it happens to be of a portable kind, are a constant source of anxiety to the vergers.
Our progress along the north wall is here interrupted by the projecting transept, which touches the wooden fence separating the Cathedral from private property. Neither the north end of this transept, nor the north side of the "Lady Chapel," is to be seen from the exterior. It may be mentioned, however, that the windows on the east and west sides of the north transept are extremely simple compared with that in the end of the same transept or with those in the south arm; and that the north side of the "Lady Chapel" differs slightly from the south in the disposition of the windows. Here the largest (a fine example of modern work) is in the easternmost bay, the other two bays being lighted by simple lancets, whereas on the opposite side the largest window occupies the central bay, with a lancet in the bays on either side of it.
Before entering the church, it may be well to walk once more along the east front to see the outside of the new Harvard window in the chapel below the north transept, which stands out in marked contrast to the older work around it. It may also be noticed that while the windows in the choir clerestory are all plain lancets, like those in the restored nave, there is a considerable difference in the glazing. In the choir we have an ornamental pattern of Mr. Gwilt's invention. In the nave Sir Arthur Blomfield has preferred small square panes of glass, as more in character with the lancet type of window, and the other Early English work, which he has so well reproduced.
[55]
THE TRANSEPTS FROM THE NORTH END.
Reproduced from a drawing by Permission of "Church Bells."ToList
[13] There is a further disadvantage, of a more material kind, in the encroachments. The smoke and soot from passing trains on one side, and the dust from a coffee-roasting establishment on the other, are having a sufficiently obvious effect on the fabric, as well as on the surrounding grass-plats. The latter require frequent renewal in consequence.
[14] Perhaps the deflection is more frequently towards the north.
[15] A converse instance of mistaken nomenclature occurs at Westminster Abbey, where the Lady Chapel is commonly called after Henry VII, who began its erection, in place of the earlier chapel, and is buried in it.
In an inventory of 1538 the "Bishop's Chapel" at St. Saviour's is styled "the little Chapel of our Lady," which perhaps indicates that there was an altar to the Virgin in the retro-choir. Two Lady Chapels in one church are not unknown, as, e.g., at Canterbury Cathedral, where there was one in the north-west transept, now called "the Dean's Chapel," and another in the crypt under the high altar.
A case more directly to the point may be quoted from Barnwell Priory, where the Lady Chapel is known to have occupied a similar position to the retro-choir at Southwark, with a "little Lady Chapel" appended to it. (Vide "The Observances in use at the Augustinian Priory of Barnwell," by J. Willis Clark, and the accompanying plans.)
[16] The pinnacle at the south end was removed a few years ago to prevent its falling.
[17] The original number of bells, in 1424, was seven, and their names were Nicholas, Vincent, St. Lawrence, Anna Maria, Stephen, Maria, Augustine. In the same year the bells were increased in weight and one more added to the number. The names were then changed, and became Christ, St. John-the-Evangelist, All Saints', Gabriel, St. Lawrence, Augustine, Mary, St. Trinity. They were recast, with 64 cwt. of fresh metal, in 1735, when the peal was brought up to its present number. More recently the two largest of the treble bells (D# and C#) were slightly reduced in weight.
[18] The builders of 1839 fortunately contented themselves with building round the bases of the piers, which they left on the old foundation.
[19] E.g., in the will of Joan de Cobham, dated 1369, the testatrix expresses her wish to be buried before the door of St. Mary Overie, "where the image of the Blessed Virgin sitteth on high." It will be noticed that this is the principal feature in the Priory seal.
[20] Drawings of the Perpendicular doorway are given by Moss and Nightingale (1817-1818), and by F.T. Dollman (1881). The ruins of the old nave, including this fine doorway, were finally removed towards the end of 1838, to make way for the pure Gothic structure (as it was called in the newspaper descriptions of the day), which was commenced in the following year.
[21] Mr. Dollman holds that the cinquefoil tracery occurred in both divisions, but has omitted it from the upper lights in his drawing of the west elevation, as it appeared before it was finally destroyed.
The Nave was entirely rebuilt by Sir Arthur Blomfield in 1890-1897. Not the least difficult part of the architect's work was the removal of the unsatisfactory structure, of 1839-1840, without destroying the few Norman and Early English features imbedded in the plaster and brickwork, which it was desired to recover as far as possible, and preserve intact and in situ. This has to a great extent been done, thanks to the care with which the debased nave was taken to pieces, every stone that was worth preserving being carefully released from its accretions, measured, and reinstated in its proper place in the new work. Fortunately the earlier nineteenth century builders had not disturbed the bases of the old piers, but had contented themselves with building round them, and when their superstructure was cleared off, enough of the old work remained to show the [58]position of every pier, as well as the lines of the original ground plan. In nearly every part also the old foundations were found satisfactory, though, of course, they were thoroughly tested, and renovation generally applied. The old lines have been adhered to throughout the restoration, and the new nave is a practical reproduction of its Early English predecessor in every detail, with the single exception to be afterwards noticed. This minute adherence to the original includes such intentional irregularities as the unequal distances between the piers and the varying width of the aisles, which not only differ from each other, but are not of the same width throughout in each case.
Ancaster stone has been chiefly employed, except in the roof, where the ribs of the vaulting are of Bath stone, the filling being made up of chalk and firestone.
The nave consists of seven bays on each side, divided by piers, alternately circular and octagonal, like those in the choir, with triple vaulting shafts on the north and south sides (the central shaft in each case being of Purbeck), and a single shaft on the east and west, corresponding with the interior order of the arches. The vaulting shafts are banded. The deeply moulded arches are somewhat loftier and more acutely pointed than those in the choir, placing the triforia on a slightly higher level, but the triforia of nave and choir are alike in that in both cases they consist of four arched openings in each bay. Every bay is walled off from its neighbours on either side, but has an opening at the back into a passage above the aisles, which is continuous throughout nave and choir. In the westernmost bay on either side, the triforium arcade has a wall immediately behind the shafts. In the other bays it is recessed, and open above the level of the aisle vaulting. In these respects the architect has reversed the old arrangement, as in the original nave the two westernmost bays had open triforia, the others simply containing a shallow arcading. This arrangement, taken in conjunction with traces of an incipient tower discovered within the two western bays, seems to show that these bays were intended to form a narthex, or vestibule, to the church, but it does not appear that the tower was ever erected, or that the vestibule ever went beyond the conception. The clerestory is lighted by plain lancet windows, enclosed in an elegant arcading.
Entering the church by the great doorway at the south-west, [59]and looking towards the east, we get a fine perspective of over two hundred feet, including the nave arcading in its three stages, the groined and vaulted roof, and a good view of the choir, terminating in Bishop Fox's fine stone screen, with the three-light window above it.
In both aisles there is an interesting series of modern windows intended to memorialise the great names associated with the [60]Church, the Borough of Southwark, and the history of England—all excellent specimens of the revived art of glass-staining, and all at present designed by Mr. C.E. Kempe. The visitor will find it convenient to begin his examination of the interior at the North Aisle. The window at the extreme west end of this aisle contains a figure of St. Augustine of Hippo, as Patron of the Augustinian Canons, introduced early in the twelfth century, when the Collegiate Church was transformed into a monastery.
The next three windows are at present vacant, but they are already destined for three great names included in the memorial scheme, viz.: Oliver Goldsmith, Dr. Johnson, and Dr. Sacheverell, each of whom has a place in the history of Southwark entitling him to commemoration in the church. Goldsmith once set up as a medical practitioner at Bankside. His friend Dr. Johnson was on friendly terms with the Thrale family, whose successors (Messrs. Barclay, Perkins and Co.) still retain the Doctor's chair on their premises. Dr. Sacheverell was Chaplain at St. Saviour's from 1705 to 1709, and appears to have engaged Johnson's attention, as a preacher, in his childhood.[22]
Beneath the Goldsmith window there is a fine relic in the shape of a late Norman Recess, which has escaped serious mutilation. A segmental arch, surmounted with a simple chamfered moulding with quirks, supported at each end by a column with moulded base and capital, would seem to indicate a seat rather than a tomb, and the date as about the end of the twelfth century. Beneath the Johnson window there is another Norman relic, of about the same date, in the outline of the old Canons' Doorway, formerly connecting the aisle with the cloisters. The extreme plainness of the moulding will be contrasted with the elaborate work in the Prior's entrance further east, on the exterior of the same wall. The next window contains a memorial to Alexander Cruden, compiler of the [61]Scripture Concordance, who died on 1st November, 1770, and was buried in the parish. This window is the gift of Mr. W.H. Francis.
John Bunyan is commemorated in the window beyond it, as having preached and worked in Southwark, and as author of the immortal "Pilgrim's Progress." The cost was defrayed by subscriptions from children of the parish.
The next bay is occupied by a short two-light window (at present plain), and by John Gower's Tomb in the space below. This fine monument was removed to the east side of the south transept during the destructive alterations of the early nineteenth century, but had been worse treated by its friends in 1748, when a large sum was spent on its "embellishment." Its history, combined with that of the Priors who erected it, may be summed up in the opening words of the inscription which was placed in a marble tablet at the back of the tomb to commemorate the embellishment referred to, not without a touch of sarcasm, though, of course, unintentional: "Hoc viri inter inclytos memorandi." Gower died in 1408, eight years after his friend Chaucer. He had been a liberal benefactor to the Church, and founded a chantry in the Chapel of St. John the Baptist, where he was eventually buried. The chapel and chantry are no more, but the monument marks the spot, having been restored in 1894 to its first position. It is in the Perpendicular style, and consists of an altar-tomb, with a dado, ornamented by seven panels in front, on which lies the effigy of the poet, surmounted by a canopy of three ogee arches, with an inner order of five cusps, and terminating in crocketed pinnacles. There is a pilaster set angle-wise at each end, banded at the separate divisions of the monument, and also rising into crocketed pinnacles. There are similar pinnacles between the arches of the canopy. Behind the canopy is a screen, divided into open panels of three trefoil-headed lights. The cornice at the top is modern, and the hands and nose of the figure are restorations.
The poet is represented lying on his back, with his hands joined in prayer, and his head resting upon the three volumes on which his fame depends, the "Speculum Meditantis," "Vox Clamantis," and "Confessio Amantis." He is vested in a long dark habit, buttoned down to the feet, after the manner of a cassock, the ordinary dress of an English gentleman at the time. There is a garland of four roses round his head, and at his feet [62]a lion couchant. The SS collar adorns the neck, with a pendant jewel, on which a swan is engraved—the device of Richard II, to whom Gower was Poet Laureate. On the wall of the canopy, at the foot of the tomb, there is a sculptured and coloured representation of the poet's own shield of arms, crest, and helmet. On the back wall of the recess, above the effigy, there were formerly three painted figures, representing Charity, Mercy, and Pity, each bearing a scroll with an invocation, in Norman-French, for the soul of the departed. After undergoing repainting more than once, with modifications, the figures were scarcely recognisable in 1832, when the monument was repaired, but the figures were unfortunately obliterated. The inscription along the ledge of the tomb, which had also been destroyed, is now replaced: "Hic jacet I. Gower, Arm. Angl: poeta celeberrimus ac hoc sacro benefac. insignis. Vixit temporibus Edw. III, Ric. II, et Henri IV." The short window above Gower's tomb is not without suggestion in its vacancy. The last bay of the aisle was occupied by the Prior's doorway, the existing fragments of which are preserved in situ on the exterior.
The window above it is most appropriately dedicated to Gower's contemporary, Chaucer. It was presented by General A.W. Pigott in memory of his sister, and was unveiled by the present Poet Laureate on 25th October, 1900, the fifth centenary of Chaucer's death. The artist has succeeded in compressing a rather large subject into the single lancet. The middle compartment depicts the pilgrims setting out from the old "Tabard" inn, above which (in the upper division) rise the tower of St. Saviour's and the spire of Canterbury, the starting-point and the goal of the pilgrimage. The compartment beneath contains a full-length figure of Thomas Becket, a study in ecclesiastical vestments, his right hand raised in blessing, the left holding the archiepiscopal cross. The whole is crowned with a medallion portrait of the author of "The Canterbury Tales."
If the visitor will now turn to the right and take up a position outside the chancel railings, he will probably be at the best point for seeing the East Window, unless a strong light happens to be behind it to bring out the details at a distance.

JOHN GOWER'S MONUMENT.
From an engraving in the Crowle-Pennant Collection, British Museum, 1801.ToList
It is placed in an elegant quintuplet arcading, the outer arches of which are blind, leaving the central arches for the three lancets composing the window. It contains the Crucifixion in the central light, with the attendant figures of St. John[63] [64]and the Blessed Virgin at the sides, the whole thus forming a pictorial substitute for the rood-screen that formerly stood before the choir. The design of this window is also by Mr. Kempe, but it shows a certain departure from his characteristic style in that it is more of a picture and less of a kaleidoscope than most of his other windows. In colouring and accuracy of delineation (anatomical and otherwise) it is perhaps more modern and less mediaeval in treatment than we should be led to expect from the artist's better known manner. The predominant tone is blue, relieved by a delicate base and canopy of amber, and the whole composition is full of the devotional spirit of the old masters in stained glass, though obviously subject to modern influences. A complete contrast, in subject and in colouring, is presented in the great West Window, by Mr. Henry Holiday. This window also consists of three lancet lights, which, though considerably longer than those at the east end, scarcely afford room for the many details of the extensive theme that has been chosen. It is a combination of the six "Days" of Creation with the Benedicite omnia opera as a hymn of praise from created nature. In some respects the treatment of the subject suggests the influence of the school that we associate with the names of Burne-Jones, William Morris, and Rossetti. This gift to the Cathedral came from Mr. T.H. Withers. The space beneath the west window, usually occupied by a porch, is lined with two series of arched panels, seven in the higher row, nine in the lower. The latter are less acutely pointed, and much shorter, than the others, and also differ from them in that the shafts are of Purbeck marble.
On the inner south-west wall there are some extremely interesting fragments of the ancient thirteenth-century wall arcade. The peculiar construction can be inferred from the three arches that are left, viz., that in every bay one of the three arches rested on a corbel, while the others were supported by shafts, with moulded bases and foliated capitals; a precedent which has been followed in the new arcading on the west wall.
The South Aisle.—The window in the western wall contains a figure of St. Swithun, in cope and mitre. He is here commemorated as having converted the original "House of Sisters" into a College of Priests, and, as it were, to balance the other conversion referred to in the companion window in the north aisle.
Above the Early English arcading the westernmost bay contains a window commemorating St. Paulinus. After the defeat of his patron, Edwin, at the battle of Hatfield the saint fled from Northumbria into Kent (circa 633), where he acted as Bishop of Rochester till his death in 644. The connection of St. Saviour's with the See of Rochester, though quite modern and now severed, is fittingly indicated by this memorial. This extreme [66]bay of the aisle constitutes the Baptistery, and the scene chosen for illustration from the life of St. Paulinus represents him in the act of baptizing a large number of people in a river.[23]
The Font stands below this window in its proper place near the entrance. There was a time in the history of the English Church when the symbolism of position was thought of less account than the administration of the initial Sacrament "in the presence of all the congregation" (see the Rubric of 1549, repeated in Elizabeth's Prayer Book), an object supposed to be defeated where the Baptistery was at the west end, and enclosed, as was frequently the case. The font was consequently removed in many churches towards the east, and at St. Saviour's a special pew was provided near to it for the sponsors. It was known as the "Christening Pew," but has long since gone the way of the other incongruous wooden fittings. The new font, in the old position, was presented by Mrs. Barrow in memory of her husband, and designed by Mr. G.F. Bodley. It is made of Verde di Prato marble, octagonal in shape, and rests upon a circular base surrounded by detached pillars, all of the same material. The faces of the octagon are concave, and without decoration, except that towards the east, which displays a star in a sunk gilded panel.
Dramatic Windows.—The chief feature of this aisle is the fine series of windows representative of the drama in the Golden Age of Queen Elizabeth. The first of the series is devoted to Edward Alleyn (1566-1626), who was "bred a stage player," and lived near the group of theatres in Southwark, but is perhaps better known as the founder of the splendid College of "God's Gift" at Dulwich.
The window was presented by the governor, old scholars, and friends of the College, and was unveiled by the Duke of Connaught on 22nd June, 1898. Alleyn himself is represented as the central figure, reading the charter of his foundation in the College Chapel, attended by Bacon, Inigo Jones, and other contemporaries. The upper part of the window contains Alleyn's portrait, and the lowest compartment a figure of Charity holding a scroll with the appropriate quotation from Psalm XXXIV, II.
The next three windows commemorate Francis Beaumont [67](1585-1616), John Fletcher (1579-1625), and Philip Massinger (1583-1639). The first and second of these great dramatists, so intimately associated in their lives and in their writings, could hardly be separated in any commemoration. They are accordingly here represented, not only in adjacent windows, but combined by allegorical allusion in the first. The design portrays David and Jonathan, with an inscription from the opening verse of Psalm CXXXII (Vulgate): "Ecce quam bonum, et jucundum: habitare fratres in unum."
The Scripture parallel was not quite verified in the case of the poets. Fletcher certainly lies somewhere in St. Saviour's, but no man knows the exact place of his burial. Beaumont lies in the more famous Poets' Corner at Westminster. The "Beaumont" window was presented by Mr. W.H. Francis, in memory of his father. The "Fletcher" window, in the next bay, came from Mr. T.F. Rider, whose firm were the builders of the nave. The subject chosen for illustration was suggested by the [68]dramatist's "Knight of Malta." St. John the Baptist stands in the lower compartment, as Patron of the Knights of St. John, holding a standard displaying the suitable word "Concordia." The ceremony of Investiture, with attendant figures, fills the space above, surmounted by the poet's head crowned with bay leaves.
The mantle of these great dramatists is acknowledged to have fallen on Philip Massinger, commemorated in the next window. It was the first of the series to be inserted, and was unveiled by Sir Walter Besant in 1896.[24] The subject is taken from Massinger's fine play, "The Virgin Martyr," and represents an angel bearing flowers and fruits of Paradise from the martyr (St. Dorothea) to a sceptical lawyer who had asked for the token for his conviction. Below this central compartment is a figure of St. Dorothea, and above it a medallion portrait of the dramatist.
Massinger is buried in the church, as certified by an entry in the "Parochial Monthly Accounts," but the same uncertainty attends his remains as those of his friend Fletcher. There is a tradition that they were both interred in one grave, which is not at all unlikely, but no one knows where it is, their names on the chancel floor being modern and counting for nothing.
The series of windows could only be appropriately concluded by one great name, "the protagonist on the great arena of modern poetry, and the glory of the human intellect" (De Quincey).
The Shakespeare window was presented by Sir Frederick Wigan, Bart., in memory of his brother-in-law, Arthur Cecil Blunt. It is a triplet, and displays in its central light an allegorical figure of "Poetry," supported by Shakespeare and Spenser in the lights on either hand. Above the Muse the sacred Dove is hovering, symbolical of the divine inspiration which we may presume guided the poets in their work, and at the base is a quotation from Wisdom, viii, 4 (Vulgate): "Doctrix disciplinae Dei, et electrix operum illius."
The faces of Edmund Shakespeare[25] and A.C. Blunt are [69]introduced in the quatrefoils of the heading, the former as buried in the church, the latter the gentleman commemorated by the donor.
William Shakespeare is known to have lived near the old Bear Garden and his own theatre, "The Globe," in Southwark, where his brother Edmund also lived while trying his fortune on the stage. The immortal name has, therefore, a direct association with St. Saviour's Church and parish, entitling it to the special memorial.
The Choir was erected by Peter de Rupibus in the early part of the thirteenth century. In its more mature and elaborate work it shows a considerable advance on the simplest form of Early English, though the apparently low elevation, and massiveness of the piers and lower arcading, are obviously not free from Norman influences. It is divided into five bays by alternate circular and octagonal piers, the dwarfed appearance of which is relieved by triple vaulting shafts on the north and south sides, and single shafts to support the arch mouldings. The central shafts are not of Purbeck, as in the nave, and they are not banded, except where crossed by the abacus moulding of the capitals and the triforium string-course. The piers have all plain capitals and well cut base mouldings. The triforium arcade, like that in the nave, consists of four arched openings in each bay, and, unlike the clerestory, has no continuous passage along the choir wall. Each bay, however, has an opening at the back into the space between the vault and roof of the aisle.
While both sides of the choir are alike in their main features, there is an interesting difference in detail, especially to be noticed in the greater simplicity of the south side, where the triforium capitals are less elaborate, and the dog-tooth ornament is omitted from the outer jambs of the openings.
On the south side, moreover, the arches have corbels, with sculptured heads, to support their inner mouldings, in place of the full-length shafts which occur on the responds at the ends, and on all the piers of the opposite side. These differences, though perhaps partly referable to the delightful vagaries of Gothic architecture, are supposed to have a special significance at St. Saviour's, where the north was the side of the Prior.
The roof is not strictly original, most of it having been rebuilt in 1822-1824, when, however, the old material was worked in again as far as possible, and the old quadripartite groining [70]adhered to. It may be noticed that the vaulting is carried out very systematically and correctly, the only defect being that the wall-ribs die into the vaulting surfaces, instead of being brought down to the clerestory sill. The plough-share surfaces (as they are called) are nevertheless well cut back to concentrate the lateral pressures against the external buttresses. In the nave the new vaulting has the wall-ribs properly supported by light [71]shafts in the angles of the clerestory openings, whilst in the transepts the inner archivolt of the windows answers the same purpose.
It is highly probable that the choir formerly extended to the western side of the tower, as indicated by the step between the nave and tower pavement.
The Altar-platform, though raised seven steps above the [72]nave pavement, gives the altar a rather low elevation as compared with the lofty Continental altars, whether abroad, or introduced here in recent years on the Continental example. Herein it exhibits a peculiarity of the English use, as illustrated in many pre-Reformation churches, where the occasional deviations from rule can generally be accounted for by the lofty crypt beneath, as, e.g., at Canterbury.[26]
Behind the altar rises the magnificent Screen, erected by Bishop Fox in 1520, which almost fills the eastern end of the choir. This fine work had been more or less mutilated through the iconoclastic zeal of ultra-reformers, who deprived it of the sculptured figures in the niches. It was further ill-treated during the architectural supremacy of Sir Christopher Wren and his school, when the smaller canopies and other projections were pared off to make a level surface for the classical piece of woodwork placed in front of it. When this incongruous structure was removed and the restoration taken in hand (in 1833) by Mr. Wallace, liberties were again taken with the unfortunate screen, more or less spoiling the design, though undertaken on a good motive. Perhaps the least objectionable of these innovations was the insertion of panels for the Creed, Lord's Prayer, and Ten Commandments, in perpetuation of those in the wooden altar-piece, where the formulae had been set up in the spirit of the Injunctions of 1536 and 1538. Above the stages Mr. Wallace introduced rows of angels, the highest row being surmounted by a cornice of strawberry-leaf ornament for which there was no sort of precedent, either in the original work here, or in other altar-screens of similar character elsewhere.[27]
The screen is about thirty feet in height, and extends to the main arcades on either side. Three tiers of canopied niches, ten in each tier, divided down the centre by a perpendicular series of three larger niches, all occupied by statues, made up a composition which was at once "a thing of beauty" and an object lesson on the Incarnation. The total number of niches (thirty-three) suggested a mystic reference to the years of our Lord's earthly life, while the image of the Pelican "in her piety," [73]here and there, besides being a reminder of Bishop Fox (whose peculiar device it was), also typified the sacrament of the altar. The original materials of which the screen was built are quoted as "Caen and fire-stone," for which Mr. Wallace substituted stone from Painswick in Gloucestershire, as more easily obtained and agreeing in colour with the old work.[28]
Above the altar the first architect had left a vacant panel (square) possibly intending it for the reception of sculpture or mosaic. This space, as well as some of the side panelling, was covered by the Decalogue, etc., before mentioned. The space is now vacant, pending the complete restoration of the screen, and is simply concealed by the dorsal and lateral curtains. The doors on each side will be noticed, with their depressed ogee headings, which indicate that this screen is of somewhat later date than the corresponding one (also by Bishop Fox) at Winchester. Another indication to the same effect has been detected in the grotesque carvings in the spandrels, which are here of a humorous character, whereas at Winchester the minor decorations are entirely sacred, e.g., the Annunciation and Visitation.
On the north side of the choir, in the easternmost arch, is the Monument of Richard Humble, erected by his son Peter in 1616. He quotes his father in the inscription as "Alderman of London," which is supposed to be inaccurate, as the prospective alderman, though represented in the official gown, is said to have declined office for political reasons. The monument is a good specimen of the Jacobean style. Under an arched canopy, supported by Ionic pillars, Richard Humble is kneeling at a small altar, or prie-Dieu, with his two wives behind him, the second wearing a conical hat, his sons and daughters being represented in bas-relief on the north and south sides of the basement. On the altar side there are also some verses, by an unknown author, in which human life is compared to "the damask rose and blossom on the tree," with other images of its vanity and shortness. There is a dash of Elizabethan vigour in the versification, mixed with a certain quaintness which points to the decadence, and the lines have been attributed to such different writers as Francis Beaumont and Francis Quarles. The figures in the monument have been [74]"beautified" with imitations of marble and alabaster. The canopied stalls for the Canons were erected as a memorial to Bishop Thorold, from the diocese of Rochester, as notified on a plain brass tablet.
Those for the choir and cathedral officers were provided by an anonymous benefactor. The absence of "return stalls" is accounted for by the fact that St. Saviour's is a parish church as well as a cathedral, for which reason it is desired to keep the choir as open as possible.
It may be here mentioned that the twelve boys who sing at the daily services are known as "the Wigan Chanters," after Sir Frederick Wigan, Bart., who has made provision for their salary, and the silver badges to be worn by them on Sundays and holy days. The badges are engraved on the face with the priory arms—"Argent, a cross fusilly gules: in the dexter chief, a cinquefoil gules"—with an inscription on the reverse.
The low wrought-iron chancel-railing was presented by Mr. [75]Barclay; the holy table (a classical wooden structure), by Mr. J.F. France, in place of the former table, also of classical design, which has been transferred to the retro-choir. The chalice and paten, crosses, vases, books, embroidery, etc., have been bestowed from time to time by various friends and worshippers.
The Retro-choir (now known as the Lady Chapel) was erected by Peter de Rupibus at about the same time as the choir, but in a much lighter and more graceful fashion, which places it among the best examples of Early English architecture in the country. The groined vault rests on six slender pillars, with detached shafts. The divisions thus formed make up twelve compartments of nearly equal size. Perhaps the best general prospect is to be obtained from the south-east corner, which takes in the whole length of the chapel, with the altar, now on the north, and the tomb of Bishop Andrewes on the western side. In the central bays on that side there were formerly two arches open to the choir, one on each side of the [76]space now occupied by the tomb. These were converted into triplet openings during the reign of Edward III, with flowing tracery in the head of each arch. When Bishop Fox's screen was erected in the sixteenth century, these openings were walled-up, and the doorways already mentioned inserted below the tracery, in correspondence with the design of the screen, of which they formed part, one on each side of the high altar.
Another good view is to be gained from the south-west corner, which includes the series of triplet windows in the four eastern bays. The northernmost of these was till recently occupied by the altar, but it has been transferred to the central bay on the north side, thus sacrificing the orientation for a supposed better position, in regard to the general shape of the chapel, there being no central space for it on the eastern side, where another altar was required to balance the irregularity. Before the Reformation there certainly were two altars on that side, one at each extremity, where piscinae were discovered during the restorations of 1832. The piscina at the north end was then restored, and is still in existence: as the other was too far gone for repair, the space was filled up.
It has been conjectured that each of the four eastern bays formerly contained an altar, one of them being dedicated to the Blessed Virgin. This circumstance has probably contributed to the popular designation of the retro-choir as the Lady Chapel, since the demolition of the so-called "Bishop's Chapel," to which the title properly belonged.[29]
This "Little Chapel of Our Lady," as it was originally called, extended eastwards from the bay (the second from the south), now occupied by the "Benson" window, where two straight joints in the masonry indicate the position of the arch that once led into it. In the north-east angle is a slender shaft supporting a diminutive statue of a bishop, in cope and mitre, with his right hand raised in the act of benediction. This has taken the place of another figure, with flowing hair, supposed to represent St. Mary Magdalene, to whom the demolished church, adjoining the south choir-aisle, was dedicated. Beneath this statue is a door, which used to give access to the staircase in [77]the turret already noticed in the angle outside. The staircase, however, is destroyed. In the same bay on the north wall, there is a stone bench, in the shape of a coffin, about nine feet long. This has been assumed to be the burial-place of the Foundress, but it is more probable that it was the base on which the "Easter Sepulchre" was placed in Holy Week.
In the south-west corner there is a small Gothic font. It was presented by Mr. Charles Harris (Member for Southwark) in 1860, who is himself commemorated in a tablet beneath the Jesse window in the south transept. The font is still used for baptisms, the present Lady Chapel being also the parish church.
The Tomb of Bishop Andrewes.—On the destruction of the so-called "Bishop's Chapel" in 1830, the tomb was removed from its eastern end to the honourable position it now occupies. There had been a fire in 1676, which destroyed the roof of the little chapel, and the canopy of the monument, but the tomb and effigy were fortunately uninjured. The canopy [78]was not replaced, and the tablet which once stood at the feet is now at the head of the recumbent figure. Otherwise the monument remains in its original state, and is an interesting example of the Renaissance style at a period of transition. There had been a doubt as to the exact whereabouts of the Bishop's remains, some people thinking they had been deposited in a vault beneath. The question was settled at the removal, when the leaden coffin was found, resting on a cross of brickwork, within the tomb. The coffin was exposed for a few days for the public satisfaction, and then replaced in the interior of the tomb, where it now lies. The painted figure above it represents the Bishop vested in chimere and rochet, enveloped in a rich mantle, with the cross of St. George, encircled by the Garter and motto of the Order, "Honi soit qui mal y pense," embroidered on the left shoulder—insignia to which Lancelot Andrewes was entitled as Bishop of Winchester and Prelate of the Order. The head wears an academic cap, and rests upon a cushion, and the right hand holds a book, probably intended for the famous "Manual of Devotions."
The tablet at the head is surmounted by the arms of the See of Winchester, impaled with the private arms of Dr. Andrewes, supported by two figures in a sitting posture. These represent the cardinal virtues, Justice and Fortitude, so conspicuous in the Bishop's life. The figures formed part of the original decoration of the canopy. The Latin inscription at the head is from an entry in Archbishop Laud's "Diary," and shows a slight inaccuracy in grammar as well as in the date. This is given as September 21st, 1626, whereas Dr. Andrewes is known to have died on September 25th. The grammatical error is unimportant, while the gist of the sentence sums up the life and character of the departed in the brief form of an epigram: "Lumen Orbis Christiani." The inscription at the foot simply refers to the restorations of the monument in 1703 and 1810.
The Windows in the Retro-Choir. There is no ancient glass in the Cathedral, the oldest being that in the windows here set up to the memory of the Anglican martyrs, and chiefly remarkable as examples of the art of glass staining at a bad period. Seven martyrs are thus commemorated, viz., three in each of the extreme bays on the eastern side, and one in the central bay on the south. Taking them in order, the window at the north end is devoted to the Rev. Lawrence [79]Saunders, the Right Rev. Robert Ferrar, and the Rev. Rowland Taylor, each figure occupying a separate light in the triplet. Entwined about the robes of the third there is a scroll bearing the supplication from the Litany in the early prayer-books against "the tyranny of the Bishop of Rome and all his detestable enormities."
The corresponding window in the southernmost of the four eastern bays contains the figures of the Rev. John Rogers, Bishop Hooper, and the Rev. John Bradford.
The seventh of the martyrs is memorialised in the central window on the south, viz., the Ven. Archdeacon Philpot, the three lights being filled with pictorial scenes from his trial. He is here commemorated as having suffered at the same time with the others, though he was separately tried in the Bishop of London's house, by St. Paul's Cathedral. The rest were tried [80]in this very chapel, then (and still occasionally) used as a Consistory Court. There is thus a peculiar appropriateness in the local commemoration, and especially in the position of the first window of the series, as it was in that identical bay that the Royal Commissioners sat in judgement, and pronounced sentence on the men they regarded as heretics. The lancet on the eastern side of the "Philpot" window is dedicated to Grace Pearse, and dated 1845. The other is at present filled with plain glass awaiting a suitable commemoration. The two triplets between the martyrs' windows on the east contain memorials to the Rev. W. Curling (1879) and the Rev. S. Benson (1881), who were co-chaplains at St. Saviour's.
These windows were contributed by the parishioners, and show some advance on those to the martyrs in their scriptural subjects as well as in their general treatment and colouring.
By far the best window is that of three lights on the north side. The architecture is in the Decorated style with reticulated tracery, as restored on the ancient model. The glass is modern, by Kempe, in his best mediaeval manner, in which respect, as well as in subject matter, the window presents a strong contrast to the earlier ones in its neighbourhood. The three lights contain figures of King Charles I, Thomas Becket, and Archbishop Laud, martyrs of another school, perhaps equally worthy of remembrance, as having suffered for their opinions.
On the western wall a granite tablet is to be noticed to the memory of George Gwilt, the architect who did so much work at the church in his day, and gave his services gratuitously during the restoration of this chapel. He died at the age of eighty-one, in the year 1856, and is buried in the family vault outside the southern wall.
[81]The Choir Aisles, architecturally similar, differ very much in their contents, which are more interesting in the north aisle. On the south side of this aisle the Humble monument is conspicuously seen through the choir railings. The opposite side is lighted by three windows, more interesting in motive and association than in themselves. The first of these was presented in 1867 by Mr. Benson, the chaplain commemorated in the window already noticed in the retro-choir, and represents St. Peter in the Chamber of Dorcas (Acts, ix, 39). The next contains a picture of the Good Samaritan, erected in 1866 to the memory of John Ellis. The third, of three lights, was inserted in 1858 to the memory of George Wood, surgeon, who was so much appreciated by the parishioners that 670 of them contributed to the cost of his memorial. The central light contains a picture of Christ healing a cripple. The outer lights are at present plain.
In the wall beneath these windows two recesses will be noticed, exactly alike in size, and in their segmental headed and traceried canopies. Their proximity and close resemblance formerly led to the conjecture that they were the tombs of the two Norman knights, William Pont de l'Arche and William Dauncey, who co-operated with Bishop Giffard in refounding the Priory. If this is the case, the tombs must have undergone alteration at a later date, as the decoration is in the Perpendicular style, and much more ornate than that of the recess at the west end of the same wall, undoubtedly of late Norman, or Transitional, design. The westernmost of the two, again, has been held to be the burial-place of Thomas Cure, a local benefactor in the reigns of Edward VI, Mary, and Elizabeth, who is commemorated by a tablet within it. The Latin epitaph (1588) is a string of punning allusions to his name. The most recent theory, and the most probable, respecting the recesses, is that they mark the tombs of Priors belonging to the Tudor period. The easternmost now contains the effigy of a supposed Crusader, which, after undergoing many "translations" from its unknown original place to the lumber of the church, and then to a ridiculous upright position against the north wall, has now found shelter in the recess which happens to hold it exactly. It is a remarkably fine piece of oak carving, and represents a knight clad in chain armour, consisting of a hauberk with sleeves, over which is thrown a surcoat crossed by [82]two belts, one round the waist for the sword, the other crossing the body diagonally to hold the shield. The cross-guard of the sword is of metal, and is probably a reparation. The head wears a conical helmet, and the feet rest upon a lion. The legs are crossed at the knees, and the knight is in the act of placing his sword in the scabbard, both of which details are open to various interpretations. Conjecture has also been busy as to the person represented, who is now thought to have been a member of the de Warren family, several of whom were buried in the church, and the style of armour, unless a clever imitation, points to the date of Edward I or Edward II. After having been overlaid with successive coats of paint, which completely blocked up and concealed the delicate chain-work, the figure has been more or less redeemed, but not restored to its original colour. This appears to have been mainly a [83]pale blue, not unlike the real armour, but it is now coated with bronze.[30]
The most conspicuous monument in the aisle is that of John Trehearne, servant to Queen Elizabeth and "Gentleman [84]Portar" to James I. Flanked by two pilasters, carved in the Italian style, supporting a plainer canopy, the monument consists of three parts: first a plain base; then a plinth, on the front of which (in bas-relief) are the four children of the deceased in a kneeling posture; and, lastly, on the top of the tomb, the kneeling figures of Trehearne and his wife in the picturesque costume and ruff collars of the age. The principal figures are holding a tablet between them inscribed with a eulogistic epitaph in English, the moral of which is that if Trehearne's royal master could have retained his services, his heavenward progress would have been considerably delayed. The Vestry minute for 15th October, 1577 (quoted by Dr. Thompson), shows the deceased to have been a passive resister in the matter of tithes, for which he had to pay double in the long run. He died on 22nd October, 1618, and was buried the very next day. His wife died on 22nd January, 1645. She was followed by the eldest son on 22nd of August in the same year, and they were all buried in the one grave.
A door in the aisle communicates with the Chapel of St. John the Divine, at present used as a clergy vestry. Fortunately it has not shared the fate of the companion chapel of St. John the Baptist. Up to a quarter of a century ago it had been turned to account as a Magistrates' Court, and still retains the Royal Arms over the large pew erected for the purpose. This, with the iron safe and wooden cupboards set up against the walls, still gives the chapel some of the appearance of a Committee room, and helps to conceal some most interesting architectural features. A shaft had long been visible on the exterior which was thought to show signs of Saxon workmanship. This fragment, added to the known fact that the chapel was one of the oldest parts of the church, if not the oldest of all, has led to a fuller examination in recent years, revealing the outlines of three Norman arches in the inner walls, and still more recently the shafts of a wall-arcade on the eastern side, apparently indicating an apsidal termination.
Henceforth the chapel will be associated with the name of John Harvard, who was born in the parish, and baptized in the church on 29th November, 1607, and its restoration is intended to take the form of a memorial to that great and good man. It [85]is not unlikely, in fact, that his name will popularly supersede the original dedication (almost forgotten already) much in the same way as the "Little Chapel of our Lady" was overshadowed by the great name of Bishop Andrewes.
The first practical step in this direction was taken by the Hon. Joseph H. Choate, who manifested great interest in the ancient fabric while he was American Ambassador, and presented the east window to the chapel in commemoration of John Harvard, founder of the renowned university which bears his name. The window, 'unveiled by Mr. Choate on Monday, 22nd May, 1905, is of three lights, transomed, as designed by Sir Arthur Blomfield and Sons, the glass being made in America under the supervision of Mr. Charles F. McKim, the famous American architect. The design is by Mr. John La Farge. In the central light of the lower division the Baptism of Christ is depicted, attendant angels occupying the sides. The upper division contains the arms of Emmanuel College, Cambridge, where John Harvard was educated, and of the Harvard University, with its mottoes, Veritas and Christo et Ecclesiae. The base bears the inscription, "In memory of John Harvard, founder of Harvard University in America, baptized in this church, Nov. 29, 1607."
The window is a noteworthy example of modern work, and the treatment of the familiar subject is distinctly original, in which respect, as well as in colouring, it presents a very striking contrast to the other windows, especially to those of mediaeval [86]character, throughout the church. Perhaps it is fortunate that it occupies an isolated position in the chapel, where the brilliance and peculiarity of the colouring are seen to full advantage without detriment to the other windows.
It is hoped that this generous gift inaugurates the restoration of the old chapel to its original dignity, as a worthy memorial to him whose name will henceforth be inseparable from it. The intention is to equip it with an altar and other necessary fittings for use at early celebrations and small gatherings of people, at present without accommodation. A new vestry for the clergy is badly wanted, as well as for the choir, whose cassocks and surplices now hang in the adjacent aisle.
The South Choir Aisle is lighted by a small lancet above the entrance porch representing the Good Shepherd; by another lancet to the memory of John Herd, an inhabitant; and by a window of three lights. The last commemorates George Gwilt, the distinguished architect who did so much for the restoration of 1832-3, elsewhere described.
Two tablets in the same aisle are worth noticing. The first is a brass, dated 1652, on the pier between the choir and aisle entrance, in memory of Susanna Barford, who died at the early age of ten years and thirteen weeks. The inscription quotes her as, "The Non-such of the world for Piety and Vertue in soe tender years." Below these words there is an epitaph in rhyming couplets and complimentary terms, separated from the inscription by a death's head and crossbones, and a pair of wings supporting an hourglass, on the dexter and sinister sides respectively. This is the only brass with any approach to antiquity in the Cathedral, though the matrix of another, evidently thought more worthy of a private collection, has been detected in one of the recesses, lately described, in the opposite aisle. The other memorial is a plain marble slab, scarcely seen in the darkness between the windows. It commemorates Abraham Newland, the model chief cashier of the Bank of England, whose strict notions of duty would not allow him to sleep a single night off the premises during the twenty-five years of his appointment. He died in 1807, two months after taking his pension, leaving £60,000, in the funds, to his landlady. This inexpensive memorial is a token of her gratitude.
The Organ.—On the south side of the aisle is the organ-chamber erected by Sir Arthur Blomfield and Sons, after much [87]discussion as to a suitable place for the new instrument, for which it was eventually decided to build the chamber over part of the site once occupied by the Magdalen Church. The old organ used to stand in the gallery at the west end of the debased nave, and was since removed to the north transept. When it was finally taken down it was unsaleable as a musical instrument, and had to go for what it would fetch as so much wood and metal. Some relics of it have, however, been preserved in the shape of the large gilded angels which adorned its front. These are now stored above the tall iron safe in the Harvard chapel. The present organ and the chamber which contains it were both presented by the late Mrs. Robert Courage as a memorial to her husband.
The new organ, built by Messrs. Lewis and Co., Limited, is of peculiarly rich and pleasant tone. It contains more than 4,000 pipes and consists of four manuals, with a system of interchangeable composition pedals, the whole embodying the most recent improvements for altering and combining the stops, and working the instrument to the best advantage with the least exertion. The action is electro-pneumatic, and the wind is supplied by a rotary hydraulic engine.[31]
Imbedded in the pavement at the entrance to this aisle there is an interesting collection of Roman tesserae, which have been carefully preserved as an evidence of the antiquity of the site.
The Tower.—A great difference is to be noticed between the arches of the east and west sides and those of the north and south. The former are evidently of the same age (thirteenth century) as the nave and choir, while the others indicate that the transepts were not built till the following century. There is an important difference also between the north and south arches, in that the shafts of the former stop considerably short of the ground, whilst those on the south are carried down to the pavement.
The moulding of the western arch is supported by the heads of a king and queen (uncertain), and on the southern side of the eastern, or choir, arch there is the head of a bishop.
Above the arches there is an open arcade on the four sides of [88]the tower, which communicates with the roof above the nave, choir, and transepts. The comparatively modern ceiling, which limited the view upwards within the tower, has now been removed, and the roof raised to its original level beneath the ringers' floor. This new roof is of oak, in which some bosses from its fifteenth century predecessor have been inserted. Pendent from it is the fine Chandelier of wrought iron and brass, presented to the church in 1680 by Dorothy Applebee, who was buried within the sanctuary two years later. This chandelier had been transferred to the choir during the degradation of the old church, in which position it was by no means without precedent in ancient churches, but its original place here was in the tower, to which it has been restored.
Sir Arthur Blomfield's work included the complete restoration of the tower windows and the interior walls.
The Pulpit comes from a relative of the Rev. W. Curling, the chaplain commemorated in one of the Lady Chapel windows, and is intended as a personal memorial to the same man. It is a delicate piece of carved oak, somewhat out of character with the massive stone-work around it, and is approached by a staircase still more slender in appearance. The carving, however, is well executed, and many notable sermons have already been preached from it, which, thanks to the sounding-board, have been tolerably well heard throughout the church.
The Lectern was presented by Mrs. Richard Hunt, in memory of her husband. It is of bronze with a brass pedestal, and represents an eagle holding a dragon in his claws.
The North Transept differs materially from the south in the dimensions and character of the windows, which in the south transept are larger and more elaborate. In the north transept there are three on each side, those next the tower being simple lancets, the others of two lights without tracery. All these at present contain plain glass. The two-light windows are exact reproductions of the originals, from fragments of which they were first restored by Mr. Wallace in 1833. The exceptionally large window on the north side is the gift of Mr. F.L. Bevan, and was unveiled by the Duke of Connaught on 22nd June, 1898, in double commemoration of the Prince Consort and the Diamond Jubilee of Queen Victoria. The present window, by Mr. Kempe, takes the place of an inferior one set up in 1861 to the memory of Prince Albert shortly after his death.
[89]It contains in its four lights the figures of Gregory the Great, King Ethelbert, Stephen Langton, and William of Wykeham. The subjects were chosen as illustrating important stages in the history of England and the National Church, which it is sought to epitomize in the decoration of this representative Cathedral.
It is supposed that this transept once formed a chapel dedicated to St. Peter, and was screened off from the tower for that purpose. This probably accounts for the fact that the piers of the tower arch are left plain to the height of about 12 ft., above which begin the six clustered columns similar to those which rise from the ground level on the south side. The conjecture is supported by the discovery of an aumbrey at the eastern end of the north wall, which of course implies an altar and a chapel. The transept is now used as a sort of ecclesiastical museum for antiquities previously distributed about the church. Perhaps the most interesting, certainly the most ancient, of these is a stone coffin, with a portion of the lid of Purbeck marble, discovered during the restorations. There was a skeleton within it, but whose it is impossible to say, though the ornamental design on the lid points to the twelfth century, and to a person of importance. It bears a raised cross of unique pattern at the head of a stem which obviously extended to the foot of the coffin. The arms of the cross are of equal length and terminate in chain-work, the angles of intersection being occupied by representations of the sun, crescent moon, and stars. The symbolism of these figures has been variously interpreted, and, as the coffin bears no date or inscription, it has given rise to much speculation as to whether its occupant was one of the Priors or a crusader. The skeleton, though said to have been discovered in an almost perfect condition, contained no key to the mystery.
A relic of the Norman age is preserved in the north wall, above the aumbrey, viz., a portion of a string-course with billet moulding—a further evidence of the age of this part of the church. The arches between the choir and nave aisles are worth notice as architectural curiosities. The former shows a strange angular introduction in the moulding of its southern side. The latter has an acute arch, without moulding, constructed within it, apparently to strengthen the walls.
On the floor by the eastern wall lies one of those charnel house memorials, in the shape of a ghastly and desiccated human figure, of the kind not uncommon in tombs of the sixteenth [90]century. To whose tomb this figure belonged there is no evidence to show.
Against the east and west walls are piled some curious bosses from the old oak roof erected in 1469, after the stone roof had fallen down. There were originally about a hundred and fifty of these grotesque specimens of wood-carving, but there are now only about one-third of them left, including those placed in the new roof within the tower.
The fine chest against the western wall was presented about the middle of the sixteenth century by Hugh Offley and Robert Harding, Aldermen and Sheriffs of London, who were related by marriage. The chest is made of oak, with various fancy woods inlaid, e.g., walnut, pear, cherry, box, rosewood, ash, yew, holly, and ebony, distributed over the surface so as to bring their colours into agreeable contrast in the design. This appears to represent the façade of a classical building, the panels on [91]the front of the chest being divided by the pilasters of the architecture. The central panel contains the first owner's initials, "H.H.O." The others hold the crests and armorial bearings of the two families.
On the western wall of this transept there is a remarkable monument, which cannot be better described than in the words of John Strype:
"The Austin Monument," he says, "is emblematical of Christ[92] and of the Resurrection, according to the pious fancy of the devout Mr. Austin, who set it up at first. First, there is the representation of a rock, upon which is writ 'Petra erat X.T.S.', i.e., the Rock was Christ. Down this rock runs a stream of water, and through this same rock is creeping a serpent; whereby he strips off his old skin, which hangs on that part which is not yet got through. At the foot of this rock, and out of it, grows up standing corn, on which is a label with these words, 'Si non moriatur, non reviviscit,' i.e., if it dieth not, it liveth not again. Underneath this corn, upon the basis, is this significant motto, 'Nos sevit, fovit, lavit, coget, renovabit,' i.e., He hath sown, cherished, washed us, and He shall gather us together, and renew us. Upon the top of this rock standeth an angel; in his left hand a sickle, his right hand pointing up towards the sun shining in his glory, with a label upon the lower rays of it, 'Sol Justitiae,' i.e., the Sun of Righteousness. On the right and left sides of this monument are instruments of husbandry hanging by a riband out of a death's head, as ploughs, whips, yokes, rakes, spades, flails, harrows, shepherds' crooks, scythes, etc., over which is writ, 'Vos estis Dei Agricultura,' i.e., ye are God's husbandry. On the outside of these, on the right and left, are two harvest men with wings, the one with a fork, the other with a rake behind him. They are in light garments, sitting, and leaning their heads upon their hands, their elbows resting upon their knees, as weary and tired, and resting after their harvest work; and having straw hats on, very comely; underneath them these words, 'Messores congregabunt,' i.e., the reapers shall gather. Under all this is a winnowing fan, within which is the representation of a sheet of parchment, as it were, stretched upon it; on which is writ the inscription."
The inscription (Latin) agrees in its figurative language with the character of the monument. It practically states that William Austin had the tomb constructed, while he was yet alive, as a burial-place for his wife, his mother (Lady Clarke), and himself, and that the three were laid there in succession in 1623, 1626, and 1633. William Austin was a barrister, who wrote a number of devotional pieces in verse and prose. He died on 16th January, 1633, and his second wife published them in 1635, "as a surviving monument of some part of the great worth of her ever-honoured husband." The son William, like his father a poet and a lawyer, was also buried at St. Saviour's.
Another noteworthy monument is that on the north wall to Lionel Lockyer, inventor and patentee of the miraculous pills, "Radiis Solis Extractae," to be taken early in the morning [93]against fogs, contagious airs, and all diseases known and unknown, to improve personal beauty, and make old age delightful. The glowing epitaph of twelve lines is at once a eulogy on the man, and a bold advertisement of the medicine. Lockyer died on 26th April, 1672. An air of sanctimonious benevolence will be noticed on the face of the recumbent doctor—probably a faithful portrait—not unlike the expression given to the quack doctor in one of Hogarth's famous pictures. The face of the cherub above wears a look of intense agony, which frivolous people are wont to attribute to the panacea. Higher up on the same wall there is a Hatchment, with the armorial bearings of the person to whom it refers, and the motto Resurgam. The conspicuous place and large characters look as if specially chosen with reference to the fabric, to which the word may well be applied.
On the east wall hangs an escutcheon of the arms of Queen Anne, with the motto Semper eadem. The arms seem to have been painted over some previous heraldic achievement, which includes the figures of "Justice" and "Mercy," or two similar characters, standing on a platform in the middle of a Rotunda. There is a peculiarity also in the omission of the year, which is usually given with the Royal Arms hung up in churches. The escutcheon is said to have been brought from the neighbouring Sessions Court, and set up in the first instance in the choir, to commemorate the visit of Queen Anne, when she came to hear Dr. Sacheverell. Appearances seem to show that it was repainted, and the Queen's initials inserted, to suit the occasion.
The South Transept.—The solid panels, noticed outside as diminishing the effect of the great south window, are accounted for in the interior, where the mouldings of two lofty arches occupy the wall, their apices reaching to the window sill. These the restorer has wisely left intact, and the window, seen from within, appears in admirable proportion, and well suited to its place. It is of five lights, and occupies the entire breadth of the transept. The style is described by the architect, Sir Arthur Blomfield, as "Transitional between Flowing Decorated and Perpendicular." Presented by Sir Frederick Wigan, Bart., in memory of his daughter, the glazing of this fine window was entrusted to Mr. C.E. Kempe. He has taken as his subject the "Tree of Jesse," as a connecting link between the scripture subjects represented elsewhere, and the modern [94]historical windows, whether commemorating distinguished clergy or laity of the Catholic Church.
There was formerly a doorway cut through one of the arches beneath this window. The space is now filled up, restoring the arcading to its original state, and the entrance transferred to the eastern wall, where the inner porch occupies the space beneath the organ front. There are three windows above, of three lights each, corresponding with those on the opposite side, except in the tracery. The window over the door, as well as that facing it, is in memory of Mr. Henry Wood, Warden of the Great Account (1899-1900). The six divisions in each contain the same number of figures from the Old Testament, viz., in the eastern window, Enoch, Noah, Moses, Abraham, Jacob, and Joseph; and in the western, Isaiah, Jeremiah, Micah, Hosea, David, Ezekiel. Both these windows are due to Sir Frederick Wigan, who presented them in 1900.
Next to the "Wood" window, on the western side, there is another fine one to the memory of Elizabeth Newcomen, a great benefactress to the neighbourhood, buried in the church in 1675.[32]
This window came from the Governors and Scholars, past and present, of the school which she founded, and from the parishioners. The glass is by Kempe. The figures in the upper division are St. John Baptist, Elijah, and Malachi; and in the lower, Zechariah, Solomon, and St. Elizabeth, the last a tribute to the lady's own Christian name.
It will be seen from this description that there are three windows awaiting subjects (and donors) in the south transept, two on the eastern, and one on the western side. The whole series is intended to illustrate the Gospel genealogy and the Incarnation, in continuation of the idea suggested in the Jesse Tree.
The most important monuments in the south transepts are those of John Bingham, Richard Benefeld, William Emerson, and the Rev. Thomas Jones.
The "Bingham" monument (1625) was formerly in the Magdalene Church, whence it was removed to the west side of this transept when the church was destroyed. An arched recess, [95]flanked by consoles, contains a half-length coloured effigy of the deceased, in gown and ruff. Below this is a panel, surmounted by arches and supported by pilasters, enclosing a tablet, with the inscription to John Bingham, Sadler to Queen Elizabeth and James I. The spandrels of the arch above the figure contain the arms of the City of London and the Sadlers' Company. The family arms surmount the whole. Bingham is quoted in the inscription as "a good benefactor to the parish and free school"; besides which he was one of the Trustees to whom the church was conveyed by James I, and we have to thank him and his confrères that it has not gone the way of the Priory buildings formerly surrounding it.
The "Benefeld" monument (1615) is chiefly interesting for its quaint Latin epitaph. This speaks of his remains as purified by the frankincense, myrrh, amber, etc., which symbolise the discipline of life.
William Emerson and his family, ancestors of the better known Ralph Waldo, were also good benefactors, especially to the poor of the parish, who still enjoy the pensions founded by their bounty. The inscription on William Emerson's monument (1575) describes him as having "lived and died an honest man," and concludes with the warning, Ut sum sic eris, illustrated by a small memento mori, in the form of a skeleton, recumbent on the base.
An ornamental marble tablet (1762), on the south wall, commemorates the Rev. Thomas Jones, who died of a fever contracted during his parochial visitings, and was buried in a vault in the "Little Chapel of Our Lady." He was chaplain at St. Saviour's from 1753 till he died at the early age of thirty-three. A faithful and zealous evangelical pastor at a period of general debility in the Church of England, he was hampered throughout his ministrations by the governing body, who not only had the right of selecting their ministers, but exercised a jealous censorship on their teaching and practice, when they showed any tendency to "unsoundness" or undue enthusiasm. Above the tablet containing the inscription there is a bust of Mr. Jones, in the clerical dress and necktie of his date, with a cherub on each side.
The architectural differences between the north and south transepts are largely accounted for by the rebuilding of the latter, in the fifteenth century, by Cardinal Beaufort.
[96]On a pier by the transept door his work is commemorated in a sculptured and coloured representation of his arms—the fleur-de-lis of France, quartered with the lions of England—surmounted by a cardinal's hat, with its tasselled strings, twisted into a true-lover's knot, pendent on either side.
Henry Beaufort, born in 1377, was a natural son of John of Gaunt by Catherine, widow of Sir Hugh Swynford. His parents [97]were married in 1396, and their issue legitimated by Richard II in the following year; but the bastardy is supposed to be indicated in the bordure compony surrounding the shield. Henry Beaufort was translated to Winchester in 1404, in succession to William Wykeham. He was raised to the cardinalate in 1426, and died in 1447. Among the famous marriages that have taken place in the church, perhaps the most famous is that between James I of Scotland and the Cardinal's niece, Joan Beaufort, in the year 1423, when the wedding banquet was served in the adjacent Bishop of Winchester's palace.
In the restoration by Sir Arthur Blomfield, the windows of both transepts were rebuilt, the pointed roofs raised to their old level, and the walls underpinned and refaced (externally) with Box Ground and Bath stone, in place of the inferior material employed in 1830, care being taken to place the stone in the natural direction of the strata.
All whitewash and plaster facing have been stripped off the walls throughout the old parts of the church, to make the restoration as complete as possible, not only in the purity of the new work, but in the removal of what was fictitious and incongruous from the old.
[22] "When Dr. Sacheverell was at Lichfield (in 1712) Johnson was not quite three years old. My grandfather Hammond observed him at the Cathedral perched upon his father's shoulders, listening and gaping at the much celebrated preacher. Mr. Hammond asked Mr. Johnson how he could possibly think of bringing such an infant to church, and in the midst of so great a crowd. He answered, because it was impossible to keep him at home; for, young as he was, he believed he had caught the public spirit and zeal for Sacheverell, and would have stayed for ever in the church, satisfied with beholding him."—Boswell's "Life of Johnson," Chap. I.
[23] Bede informs us that St. Paulinus baptized a number of people in the Rivers Glen (= Bowent) and Swale, in Yorkshire. ("Eccles. Hist.," Book II, Chap. xiv.) The latter of these incidents is supposed to be here depicted.
[24] Dr. Thompson gives a selection from the long list of subscribers, which includes, besides nobility and clergy, many of the leading actors, dramatic critics, and novelists of the day—showing the widespread interest taken in the memorial.
[25] Edmund Shakespeare is described in the Burial Register as "a Player," to which the Monthly Account adds that he was "buried in the church with a forenoon knell of the great bell," costing 20s. (Vide Dr. Thompson's "History.")
[26] The present elevation of the altar at St. Saviour's has been criticised as above the level which a strict adherence to precedent, here and elsewhere, required.
[27] E.g., Christ Church Priory, St. Alban's Abbey, All Souls', Oxford, and Winchester Cathedral.
[28] See an interesting article signed "E.I.C." (E.J. Carlos), in the "Gentleman's Magazine" for 1834, Part i, pp. 151-154.
[29] In Pennant "History of London" (1790), and Moss and Nightingale's "History and Antiquities of St. Saviour's Church" (1817-1818), the retro-choir is spoken of as "The Chapel of the Virgin Mary," in distinction from that then known as "the Bishop's Chapel."
[30] In Seymour's "History" (1734), written when the figure was standing upright, it is described as "new painted and flourished up, and looking somewhat dreadful."
In Pennant's "History of London" (vol. i, edit. 1801), it is said to have been removed from the north transept to make room for the Lockyer monument (1672), and then set up against the north wall.
[31] For full particulars of the organ the reader is referred to the specification in the Appendix, as furnished by the builders, Messrs. Lewis and Co., Limited, Ferndale Road, Brixton, S.W.
[32] The veneration in which her name is held is further attested in the parish, where the old street in the Borough, till recent years known as King Street, has been renamed Newcomen Street.
The two dioceses with which St. Saviour's Church and parish have hitherto been associated are Winchester and Rochester. The former was originally one of the largest in England, extending as it did in one direction from the south of London to the Channel Islands; the latter the smallest of all, covering only a portion of the county of Kent. Various changes have been made from time to time in the area of both in attempts to equalise the duties of their Bishops, and to meet other altering conditions. Of these changes the first that concerns us was that made in August, 1877, when the parishes wholly or partly within the parliamentary divisions of East and Mid Surrey (with two exceptions) were transferred from the dioceses of Winchester and London to Rochester. The Borough of Southwark, including St. Saviour's Church, was thus brought from the jurisdiction of the first to the last of these dioceses. In the following year the portion of Surrey included in the transfer was formed into the new Archdeaconry of Southwark; and a few months later (August, 1878) the patronage of the benefices thus transferred, and hitherto held by the Bishops of London and Winchester, was vested in the Bishop of Rochester. In 1879, in 1886, and again in 1901, the Rural Deaneries of Rochester were rearranged, thus shifting more or less the boundaries of the Southwark Archdeaconry. But the area of the Rochester Diocese was left undisturbed till 1904, when "the Southwark and Birmingham Bishoprics Act" of that year allowed the Diocese of Southwark to be formed out of it. St. Saviour's had been popularly known as a pro-Cathedral for some years previous to 1905, when it was formally constituted the Cathedral of Southwark. The architecture of the fabric, with its long history and associations, had long pointed to this fine church for the purpose, for which it [100]was further prepared by Sir Arthur Blomfield's restoration, begun in 1890.
Dr. Anthony Wilson Thorold was appointed to the See of Rochester in 1877, and translated to Winchester in 1891. It was, therefore, in his time that the first diocesan changes affecting St. Saviour's were made, and the restoration of the church was actively taken in hand. By far the most important part of this work was the rebuilding of the nave, which he had the satisfaction of seeing well advanced before his translation. Some of his predecessors had become alive to the necessity of reducing the onerous duties of the See, but it was left to him to give effect to their wishes by the creation of the Archdeaconry of Southwark, with an eye to its forming the nucleus of a separate diocese. His successor, Dr. Randall Thomas Davidson, now Archbishop of Canterbury, lent his full energies to the work thus begun, in which he was ably supported by the Suffragan Bishop of Southwark, Dr. Huyshe Yeatman-Biggs, consecrated in 1891 and promoted to the See of Worcester in 1905 in consequence of the episcopal changes brought about by the Act of Parliament just mentioned. Before Dr. Davidson's removal to Winchester in 1895, besides supervising the restoration of Rochester Cathedral, he was able to do a good work more directly concerning the Southwark Diocese, in the erection of the Bishop's House by Kennington Park. The funds were provided by the Ecclesiastical Commissioners from the sale of Danbury Palace, hitherto the residence of the Bishops of Rochester, but now disposed of as inaccessible and otherwise inconvenient. In place of it the new house was built in the heart of the most thickly peopled part of the diocese, within the Southwark Archdeaconry, and probably in view of its ultimately becoming the residence of the Bishop of Southwark. Dr. Davidson himself was not destined to occupy it, as it was not finished till he was on the eve of translation. On 12th November, 1895, Edward Stuart Talbot was enthroned as his successor in the See of Rochester, and at once took up his abode at Kennington, where he will continue to live at this easy centre of communication between him and his people now that he is Bishop of Southwark.
It will be seen from the accompanying map that the new diocese has been made to include the whole of the county of London south of the Thames, and the Archdeaconry of Kingston, thus reducing the area of Rochester to about half [101]its previous size and relieving it of its most thickly crowded portion.
The population of the diocese of Rochester at the census of 1901 was 2,254,947. The population of the Southwark Diocese at the present time is roughly estimated at 2,000,000, rather more than less. It consists of 294 parishes, ministered to by 687 licensed clergy, or about one to every 3,000 people, except in South London, where the proportion is about one to every 4,000.
Bounded on the north by the Thames, on the east, south, and west by the dioceses of Canterbury, Chichester, and Winchester respectively, the space enclosed presents an irregular figure varying from some three miles in breadth, in its central portion, to about thirteen along its southern frontier, and about twenty in its widest part towards the north. Its greatest length in a straight line from London Bridge to Felbridge is about twenty-five miles. Geographically the map suggests a couple of small continents joined together by a sort of isthmus in the middle, where the breadth is narrowed by the sweeping bays, or inlets, formed by the encroaching dioceses on the right and left.
By Letters Patent, dated 17th May, 1905, Dr. Edward Stuart Talbot, previously Bishop of Rochester, was appointed to the newly-founded See of Southwark. For its better organisation he lost no time in applying to the Crown for the appointment of two Suffragan Bishops, suggesting one for Woolwich, as a place of great national importance and a centre of vigorous municipal and industrial life; the other for Kingston, as representing the ancient and rural side of the diocese. By the approval of His Majesty the appointments were made in the same month, viz.: the Rev. John Cox Leeke, Hon. Canon of Rochester Cathedral and Rural Dean of Woolwich, to be Bishop Suffragan of Woolwich; and the Rev. Cecil Hook, Vicar of All Saints', Leamington, and Hon. Canon of Worcester Cathedral, to be Bishop Suffragan of Kingston-on-Thames.
In one sense the most important difficulty to be overcome in the formation of the new diocese was the raising of the capital to provide for the endowment, a sine qua non to the Parliamentary sanction. The requisite sum was provided by voluntary contributions, great and small, throughout the undivided diocese of Rochester, and throughout the country; not the least interesting item being the "shilling fund," promoted by the Rev. [102]T.B. Dover, Vicar of Maiden, which resulted in an Easter offering of exactly £2,200. The capital was brought up to £109,000 by the time the new appointments were made. It is intended to provide a minimum income of £3,000 for the Bishop of Southwark, and a house for his successor in the See of Rochester, in lieu of the house at Kennington Park, transferred from the old to the new diocese. The funds of the latter have since been augmented by a grant of £25,000 from the Bishop of London, out of the compensation money (£100,000), paid by the City and South London Electric Railway Company for undermining the City Church of St. Mary Woolnoth in order to build a station. This sum of £25,000 is specially destined for church extension, and Dr. Talbot set apart £2,000 of it, directly it was granted, for that purpose in the Woolwich area.
Mr. Harry Lloyd, of Woodlands, Caterham, is acting as Hon. Treasurer to the fund which has been opened for the complete equipment of the diocese.
The Cathedral Church of St. Saviour is as yet without endowment, and depends entirely upon voluntary offerings for its expenses. These were estimated on the average at about £2,500 till last year, when the cost of maintenance amounted to £3,096, besides which about £350 was required for the College of Clergy. Attention was called to this matter by the Ven. Archdeacon Taylor during his Visitation held in the Cathedral on 25th May, 1905, when he made an earnest appeal to the church people of the diocese for their help and sympathy on behalf of the Cathedral, the Bishop and his Suffragans, and all concerned in the work.
The duties before them, in the arrangement and control of the various elements of which the diocese is composed, will obviously not be light, but ought to be extremely interesting and rewarding. They will have to deal with extremes, which may there be said to meet, in a combination of rural and urban, ancient and modern, commercial, industrial, and aristocratic life, a variety in unity such as the Catholic Church itself presents, of which the diocese may be regarded as a miniature.
"In veste varietas sit: scissura non sit."
List of the Priors of St. Mary Overie
| Appointed. | ||
| 1. | Aldgod | 1106 |
| 2. | Algar | 1130 |
| 3. | Warin | 1132 |
| 4. | Gregory | 1142 |
| 5. | Ralph | 1150 |
| 6. | Richard | 1154 |
| 7. | Valerianus | 1163 |
| 8. | William de Oxenford | 1189 |
| 9. | Richard de St. Mildred | 1203 |
| 10. | William Fitz Samari | 1205 |
| 11. | Martin | 1206 |
| 12. | Robert de Oseney | 1218 |
| 13. | Humphrey | 1223 |
| 14. | Eustachius | 1240 |
| 15. | Stephen | 1253 |
| 16. | Alan | 1266 |
| 17. | William Wallys | 1283 |
| 18. | Peter de Cheyham | 1306 |
| 19. | Thomas de Southwark | 1326 |
| 20. | Robert de Welles | 1331 |
| 21. | John de Peckham | 1348 |
| 22. | Henry Collingbourne | 1359 |
| 23. | John Kyngeston | 1395 |
| 24. | Robert Weston | 1397 |
| 25. | Henry Werkeworth | 1414 |
| 26. | John Bottisham | 1452 |
| 27. | Henry de Burton | 1462 |
| 28. | Richard Briggs | 1486 |
| 29. | John Reculver | 1491 |
| 30. | Richard Michell | 1499 |
| 31. | Robert Shouldham | 1512 |
| 32. | Bartholomew Linstede (alias Fowle) | 1513 |
The last-named surrendered the Priory to Henry VIII in 1540, when he was granted a pension of £100 per annum, and the use of a house within the close. The aggregate granted to the other annuitants (eleven in number), amounted to £70. The pensions were to be paid half yearly. The annual value of the Priory at the surrender was estimated at £656 10s., from which "Reprisals," amounting to £32 3s. 6d., were deducted by the Commissioners, leaving £624 6s. 6d. net.
The Priory Seal
The impressions given (p. 103) are taken from a fine, but imperfect, sulphur cast in the British Museum (4050 lxxii, 66 and 67) of the Seal in use in the twelfth century. It is circular, about 2-3/8 inches in diameter, and contains, within a vesical compartment, a figure of the Blessed Virgin, seated on a carved throne, holding a fleur-de-lis in her right hand, and supporting with her left the Infant Saviour upon her knee. The Holy Child is distinguished by a cruciform nimbus, while that of the Virgin is a plain circle. The Child is raising the right hand in benediction, and holds in the left an orb. The vesica is bordered with a double dotted line, containing the salutation: "Ave: Maria: gracia: plena: Dñs: tecum: benedicta." A similar border, immediately within the circumference, holds the legend: "Sigillum ecclesie sancte Marie de Suthewercha."
The space between the circumference and the vesica is occupied on each side by two angels, with expanded wings, those above issuing from waves, those below kneeling.
The reverse contains a small counterseal, 1-3/8 inch in diameter. The figure is an angel, with nimbus and expanded wings, issuing from waves, with (probably) an orb in the hands.
The inscription: "Ave: Mater: Misericordie."
It may be mentioned that the design of the seal varied with different Priors. The British Museum possesses several casts, and an original in red wax (attached to a deed), the design on which is indistinguishable. The specimen chosen appears to be the most interesting and elaborate, though not the most ancient, of those in the collection.
List of the Chaplains of St. Saviour's
(Compiled by the Rev. Dr. Thompson, and here reproduced by his permission.)
| Appointed. | ||
| 1. | Rev. Kelle | 1563 |
| 2. | James Holyland | 1564 |
| 3. | Harman | 1565 |
| 4. | Styles | 1578 |
| 5. | Smythe | 1582 |
| 6. | Pattersle | 1585 |
| 7. | Hansonne | 1585 |
| 8. | Thos. Rattdcliffe | 1585 |
| 9. | M. Ed. Philips | 1589 |
| 10. | Butterton | 1599 |
| 11. | Marberry | 1601 |
| 12. | Currie | 1603 |
| 13. | Knapp | 1604 |
| 14. | Snape | 1604 |
| 15. | Church | 1605 |
| 16. | Symonds | 1605 |
| 17. | Francis | 1606 |
| 18. | James Archar | 1614 |
| 19. | Dr. Thomas Sutton | 1615 |
| 20. | Harris | 1623 |
| [105]21. | P. Micklethwaite | 1625 |
| 22. | Rev. Nicolas Morton | 1627 |
| 23. | Stephen Watkins | 1654 |
| 24. | Robert Knightly | 1656 |
| 25. | Dr. William Hoare | 1678 |
| 26. | Dr. Samuel Barton | 1687 |
| 27. | Dr. H. Sacheverell | 1705 |
| 28. | Dr. Thomas Horne | 1709 |
| 29. | Wainford | 1724 |
| 30. | Dr. Benj. Slocock | 1725 |
| 31. | John Smith | 1729 |
| 32. | Thomas Jones | 1753 |
| 33. | William Day | 1762 |
| 34. | Sambrook Russell | 1768 |
| 35. | Philip Batteson | 1769 |
| 36. | W. Winkworth | 1794 |
| 37. | W. Mann | 1804 |
| 38. | Thomas Bird | 1807 |
| 39. | Dr. W. Harrison | 1808 |
| 40. | W. Curling | 1833 |
| 41. | S. Benson | 1843 |
| 42. | Dr. W. Thompson | 1879 |
Note.—An interval of over twenty years will be noticed between Nos. 24 and 25, during which the names of other "Ministers" appear in the Registers.
It was the rule for two Chaplains to be in office at once till 1881, when Dr. Thompson was made sole Chaplain. In 1885 he was appointed Rector, and in 1897 Canon and Chancellor of the Collegiate Church.
The Rev. Mr. Kelle was dismissed in January, 1564, for refusing to wear a surplice at the Communion; but in consideration of his old age he was presented with the sum of £4, "by the good wyllys" of the Vestry and Churchwardens.
Messrs. Holyland and Harman were then elected, as of a more compliant temper, their "wages" being fixed at £20 a year "and not the christenings, and to leave at a fortnight's warning." Mrs. Holyland was to receive "for her wages" ten shillings.
By far the most prominent in the list is Dr. Sacheverell. The two sermons which led to his impeachment were preached at the Derby Assizes on 15th August, and at St. Paul's Cathedral on 5th November, 1709. These, with his published Answer and the Speech in his Defence, delivered at Westminster Hall on the 7th March, 1710, are still exciting reading.
Vestments, Plate, and Ornaments at St. Saviour's[33]
An examination was made on the 20th October, 1552, by the agents "assigned and appointed by the Commissioners, and by them sworn truly to enquire and find out the whole of all such plate, jewels, and ornaments, as since the beginning of the King's [106]reign that now is belonged to the Church of Saint Saviour in Southwark, as far as in them lieth."
The duty of the agents involved a comparison of the goods which they actually found in the church with the existing inventories, the most important of which was the inventory made on 26th February, 1548, by the retiring Wardens, and handed to their successors in office with the property transferred to their care at the same time. The contents of this inventory are as follows; the entries, however, have been shortened and the spelling modernised:
Two principal copes of blue tissue "with priest, deacon, and sub-deacon, with all their apparel."[34]
Three other principal copes of the same material with ut supra.
Three principal copes of red tissue with ut supra.
A cope of cloth of gold with ut supra (lacking two albes and two head-pieces).[35]
A cope of blue velvet embroidered with flowers with ut supra.
Three copes of white camlet embroidered with flowers with ut supra (lacking two head-pieces and two "fannelles").[36]
Three copes of white damask, with holy-water "sprynkes" with ut supra.
A cope of white damask with flowers.
A cope of blue tinsel.
A cope of red worsted with flowers, and his vestment of the same, and a deacon of red damask, lacking an albe.
A cope of blue worsted with l. and x.
A cope of silk "bawdekyn"[37] for Sundays.
[107]A cope of black worsted with priest, deacon, and subdeacon, with all their apparel.
Two "desk-cloths"[38] of blue with x. and l.
Two "desk-cloths" of silk with images.
A cope of white tissue given by "Maister Fowle."[39]
Workday Vestments.[40]
A vestment of red damask with an albe.
A vestment of red velvet with a green cross.[41]
A vestment of blue velvet with x. and l. and his albe.
A vestment of red velvet embroidered with moons and stars.[42]
A vestment of satin of Bruges, with a green cross, and a picture of Our Lady and her Son.
A vestment of red "bawdkyn," with a lion of gold.
A vestment of "bawdkyn," with a crucifix.
A "cross-cloth"[43] of purple damask, with an image of the Trinity of gold.
A "cross-cloth" of the same material, with St. Margaret.
A "cross-cloth" of green sarcenet, with the Assumption of Our Lady in gold.
Two "lawnes" for the cross,[44] one blue and one white, both fringed with gold.
Two "canabye-cloths,"[45] one of cloth of gold, the other of blue velvet with flowers of gold, both fringed.
Seven corporas-cases.[46]
A fore front of cloth of tissue.
Two pieces of blue velvet, with flower-de-luces.
A fore front of white damask embroidered.
Two cloths of tissue for the High Altar.
A fore front of red worsted.
A cloth of red and blue to hang over the table of the High Altar.[47]
[108]A veil for Lent in the chancel.
Two hangings for Our-Lady altar (above and beneath) of red tissue.
Hangings for the same altar[48] (above and beneath) of white and green damask embroidered with flowers.
Hangings of the Trinity altar, of red damask with flowers of gold.
Hangings of red silk for the same altar, with a picture of the Trinity and Our Lady.
Another hanging of white taffata, with the Passion of Christ.
A black hearse-cloth[49] of worsted, with a white cross.
St. John's Altar.
Hangings, above and beneath, of cloth of gold.
Two hangings of blue damask embroidered.
Two hangings of white chamlet embroidered with flowers.
Hangings of russet sarcenet embroidered with "iij levyd gresse."[50]
One hanging of "dornyx."
Banner-cloths.
Two streamers of sarcenet, one blue, the other green.
Fourteen "cross-cloths," banner-cloths of all sorts, good and bad, silk and other.
Altar-cloths, etc.
Eight altar-cloths of diaper, and four plain.
Nine surplices.
Three towels—two of diaper and one plain.
A cushion of green silk.[51]
A carpet[52] before the high altar.
Latten.
One holy-water pot.
Two pair of great standards.[53]
[109]One pair of small [standards].
The best hearse-cloth of St. Katherine.[54]
The Trinity hearse-cloth.[55]
Two other hearse-cloths, good and bad.[56]
Plate.
A monstrance of silver and gilt,[57] with a "burrall" (= beryl).
Two candlesticks of silver and parcel gilt.[58]
A pax of silver and gilt, with a "burrall."[59]
Two basons of silver and parcel gilt.[60]
A pair of censers of silver parcel gilt.[61]
A ship[62] of silver parcel gilt.
A single cross of silver parcel gilt.
A "maser" with a border and a "knop" of silver all gilt.[63]
Two pieces of silver "knoppis which was in the brest of the image of the Resurrection."
Other lists follow, and contain goods and ornaments that were missing, or that had been sold by various churchwardens since the beginning of the reign of Edward VI.
From these we learn that the church had also possessed such vestments and ornaments as the following:
"Item a vestment of blewe velvyt with a crosse of redde velvyt sprenged with gold with all thinges perteyninge to the same."
"All thinges perteyninge to the same" here includes the vestments for the assistants, and the stoles, maniples, and apparels.
"Item a vestment of white bustyan, with a redde cross and all thinges perteyninge to the same."
Evidently vestments of coarse white stuff such as were universal in England during the first four weeks of Lent, cf. the "ash-coloured," or white vestments still worn on weekdays in Lent in the South of France.
"Item an altar cloth hanginge afore the altare of redde silke with a crucyfix."
This was probably the frontal used in Passiontide, i.e., from Passion Sunday until Easter. Other Lenten ornaments were the following:
"Item iiij paynted clothes for altar clothes in Lent."
"Item iij paynted clothes to hange upon saynt Katerynes and saynt Margarettes in Lent."
The following is an interesting description of a panelled or striped frontal and frontlet:
"Item an altar cloth for the frontur of thalter of redde velvyt and yelowe & redde damask in paynes with Kateryn wheles in the bordour above."
The sales are quoted as realising in all £165 17s. 8d., but an addition of the separate items does not result in this total.
The difficulties in the way of an exact calculation are (1) lax or ambiguous entries, e.g.:
"Item iiij chalyces wayng liiij onz. wherof ij communyon cuppis were made by the said Calton (purchaser of a previous lot) waynge but lij onz.... xvijs viii.d"
(2) The omission of prices, and (3) the disappearance of articles quoted as "myssinge at the praysement of the vestry stuff," or (4) "myssinge and not delyveryd to the now Churche wardens neither sold or accompted for to thuse of the Churche."
The conclusion arrived at by the representatives of the parish is thus stated: "And where yt is a parcell of our othe to present howe and to what use the moneye cummynge of the sale of our ornamentes and plate is employd and in what place of our church it is bestowed, to that we saye yt is not in our wyttes to tell ... and surly yf there be not moche more reparacyons done upon the said churche shortly yt will utterly dekay."
The list of "plate and other things" left in the church is as follows:
Two communion cups with a cover all gilt.
Nineteen albes and six amices, lacking all their apparel, "whereof the wardens have made sixteen surplices for the choir, which was all that could be made of them."
Towels and tablecloths, good and bad, diaper and plain xij.
A cushion of green silk.
Three hearse-cloths, one of Our Lady, another of Saynt Katheryne, and one of blue and red velvet.
Six "bells of accorde" and one small bell.
[111]Which bells the parish bought of the late king of famous memory king Henry the eight at the purchesing of the hole church.
A bible and a paraphrases.
Three communion books and four psalters printed.
Two pair of good organs furnished.
A chest with two locks for the alms for the poor.
Five "great pieces of leed squayr lyeinge upon the bellowes."
This is followed by a Memorandum, which is not without a touch of humour under the circumstances, pointing out that "it appears in the accounts of Nycholas Stokbrige and his companions (Wardens of the first and second year) that they have not charged themselves in their book a good carpet and a chapel bell."
(Signed by) Thomas Dyson,
Roger Pylfold, and
Thomas Dowman.
The Inventories are given in extenso among the "Inventories of the Goods and Ornaments of the Churches in the County of Surrey in the reign of Edward VI," carefully edited by J.R. Daniel Tyssen, Esq., F.S.A., for the "Surrey Archaeological Collections," from the original documents in the Public Record Office.
[33] The explanations in the footnotes have been kindly furnished by Mr. F.C. Eeles, Secretary to the Alcuin Club.
[34] The term "vestment" was often used to include not merely the chasuble, but also the other vestments of the celebrant and his assistant ministers; sometimes it also included the vestments of the altar, the frontal and upper frontal; it nearly always included the apparels, sometimes also the albe and amice, but at other times these were reckoned separately among the linen.
Sometimes the vestments for the celebrant, the gospeller, and the epistoler, were called "priest, deacon, and subdeacon," instead of chasuble, dalmatic, and tunicle. Sometimes the last two vestments (often identical in appearance) were both called dalmatics, or "deacons," or were both called tunicles.
Apparels were pieces of coloured or embroidered material sewn on to the albe and amice; they were on the skirt and sleeves of the former, and the amice apparel was like a large embroidered collar. These additions to the albe and amice were always used in England, and of course lace was unknown in old times.
[35] The amices are here called "head-pieces," as they were properly little hoods which could be turned up so as to cover the head, and were actually so worn out of doors. The Dominican Friars still wear the amice on the head when approaching the altar at mass.
Sets of vestments often had copes belonging to them. The cope was required not only for use when censing altars at choir services, but also for the celebrant in the procession which (like our Litany) preceded the principal celebration of the Eucharist on Sundays.
[36] Fannelles = fanons or maniples.
[37] Cloth of gold.
[38] Hangings for lecterns.
[39] Probably the last Prior, alias Linstede.
[40] "Work-day vestments" means vestments for use on weekdays at low masses.
[41] A vestment with a Latin cross on the back of the chasuble; these were common in England in the sixteenth century.
[42] Vide the design on the coffin-lid now preserved in the North Transept (p. 89).
[43] A small banner which was hung on the processional cross.
[44] Probably curtains for hanging behind the rood.
[45] Canopies for hanging above the pyx, which contained the reserved Sacrament, and was, as usual in England, suspended over the high altar. N.B.—The Roman form of altar-tabernacle seldom if ever seems to have been used in England.
[46] Burses, to keep the corporals in.
[47] The "table of the high altar" was the reredos, only exposed on high days, this cloth or upper frontal concealing it at other times. The reredos must not be confused with the great altar screen: it was quite small, and was immediately at the back of the altar itself.
[48] "Hangings for altars above and beneath" include frontals and upper frontals, the latter taking the place of the reredos, or being used to cover it at ordinary times. Some of these hangings may be "riddels" or curtains to hang at the ends of the altar. These used to hang at right angles to the reredos, and close to the altar ends.
[49] I.e., a funeral pall.
[50] Shamrock or trefoil.
[51] A cushion to lay the altar book upon. Such cushions were often very rich and handsome, and in the days of large books and fine bindings were almost necessary. They were much more general than desks.
[52] I.e., a frontal; the same word is used in the Canon of 1603, which orders a frontal.
[53] Four great standard candlesticks to stand on the pavement before the altar. Large churches often had more than two standard lights. The pair of small standards (the next entry) were probably for one of the lesser altars.
[54] Probably included under "Latten" by mistake or carelessness.
[55] Ibid.
[56] Ibid.
[57] This ornament was used in one or two processions when the Holy Eucharist was carried. The "burrall" is the glass in the middle wherein the Sacrament was placed. Only rich churches possessed this ornament, which was of very late introduction. It is needless to add that the still more modern service of Benediction of the Blessed Sacrament was never in use in England.
[58] Probably to stand on the high altar.
[59] Perhaps held a relic.
[60] To stand on the high altar for ornament.
[61] Two censers were commonly carried side by side in procession in England.
[62] Incense-boat.
[63] The "maser" is quoted as "given to the Wardens when they meet to drink on."
Specification of the Organ
(Furnished by the builders, Messrs. Lewis and Co., Limited)
Choir Organ, C C to C. 61 Notes.
| Lieblich-gedact | 16 feet |
| Geigen Principal | 8 feet |
| Salicional | 8 feet |
| Dulciana | 8 feet |
| Lieblich-gedact | 8 feet |
| Salicet | 4 feet |
| Flauto Traverso | 4 feet |
| Lieblich-gedact | 4 feet |
| Lieblich-gedact | 2 feet |
| Mixture (3 ranks) | 2 feet |
Ten Key-touches for Couplers and fixed Combinations.
Great Organ, C C to C. 61 Notes.
| Contra Viola | 16 feet |
| Bourdon | 16 feet |
| Open Diapason, No. 1 | 8 feet |
| Open Diapason, No. 2 | 8 feet |
| Stopped Diapason | 8 feet |
| Flûte Harmonique | 8 feet |
| Octave | 4 feet |
| Flûte Harmonique | 4 feet |
| Octave Quint | 2-2/3 feet |
| Super Octave | 2 feet |
| Cornet (3, 4, and 5 ranks) | 2-2/3 feet |
| Mixture (4 ranks) | 1-1/3 feet |
| Trumpet | 8 feet |
Ten Key-touches for Couplers and fixed Combinations.
[112]Swell Organ, CC To C. 61 Notes.
| Bourdon | 16 feet |
| Open Diapason | 8 feet |
| Rohr-flöte | 8 feet |
| Viole de Gambe | 8 feet |
| Voix Célestes | 8 feet |
| Geigen Principal | 4 feet |
| Rohr-flöte | 4 feet |
| Flautina | 2 feet |
| Mixture (4 ranks) | 1-1/3 feet |
| Bassoon | 16 feet |
| Horn | 8 feet |
| Voix Humaine | 8 feet |
| Oboe | 8 feet |
| Clarion | 4 feet |
Ten Key-touches for Couplers and fixed Combinations.
Solo Organ, CC To C. 61 Notes.
| Flûte Harmonique | 8 feet |
| Vox Angelica | 8 feet |
| Unda Maris | 8 feet |
| Flûte Harmonique | 4 feet |
| Cor Anglais (Ten. C) | 16 feet |
| Bombarde | 16 feet |
| Clarionet | 8 feet |
| Orchestral Oboe | 8 feet |
| Tuba Magna | 8 feet |
| Trompette Harmonique | 8 feet |
Solo Organ is inclosed in a separate Swell Box.
Ten Key-touches for fixed Combinations and Solo Stops.
Pedal Organ, C C C To F. 30 Notes.
| Great Bass | 32 feet |
| Major Violon | 32 feet |
| Great Bass | 16 feet |
| Violon | 16 feet |
| Sub Bass | 16 feet |
| Dulciana Bass | 16 feet |
| Violoncello | 8 feet |
| Flute Bass | 8 feet |
| Flute | 4 feet |
| Contra Posaune | 32 feet |
| Posaune | 16 feet |
| Trombone | 16 feet |
| Trumpet | 8 feet |
Couplers.
| Choir to Pedal. Great to Pedal. Swell to Pedal. Solo to Pedal. Choir to Great. |
Choir to Pedal. Swell to Great. Solo to Great. Swell to Choir. Solo to Swell. Solo Octave. |
Tremulant to Swell.
Six Pedals for Interchangeable Combinations.
Ordinary Swell Pedal for Solo Organ.
Balanced Pedal for Swell Organ.
Balanced Pedal for Crescendo over Entire Organ, including the Solo Swell Shutters.
The entire action is Electro-pneumatic. The Console is detached and placed behind the Choir Stalls.
| Length of nave | internal | 104 feet. |
| Length of choir | internal | 78 feet. |
| Retro-choir from east to west | internal | 78 feet. |
| Total length | internal | 248 feet. |
| Breadth, including aisles | internal | 60 feet. |
| Retro-choir from north to south | internal | 61 feet. |
| Transepts from north to south | internal | 116 feet. |
| Transepts from east to west | internal | 26 feet. |
| Height of nave | internal | 55 feet. |
| Height of choir | internal | 53 feet 6 inches. |
| Height of tower (exclusive of the pinnacles, which rise 34 feet above it). |
129 feet 6 inches. | |
| Area | internal | 17,113 sq. feet. |

PROPOSED RESTORATION IN ST. SAVIOUR'S CHURCH, SOUTHWARK; FOUNDATION STONE
LAID BY THE PRINCE OF WALES, JULY 24TH, 1890.ToList
Typographical errors corrected in text:
***END OF THE PROJECT GUTENBERG EBOOK BELL'S CATHEDRALS: SOUTHWARK CATHEDRAL***
******* This file should be named 24616-h.txt or 24616-h.zip *******
This and all associated files of various formats will be found in:
http://www.gutenberg.org/2/4/6/1/24616
Updated editions will replace the previous one--the old editions will be renamed.
Creating the works from public domain print editions means that no one owns a United States copyright in these works, so the Foundation (and you!) can copy and distribute it in the United States without permission and without paying copyright royalties. Special rules, set forth in the General Terms of Use part of this license, apply to copying and distributing Project Gutenberg-tm electronic works to protect the PROJECT GUTENBERG-tm concept and trademark. Project Gutenberg is a registered trademark, and may not be used if you charge for the eBooks, unless you receive specific permission. If you do not charge anything for copies of this eBook, complying with the rules is very easy. You may use this eBook for nearly any purpose such as creation of derivative works, reports, performances and research. They may be modified and printed and given away--you may do practically ANYTHING with public domain eBooks. Redistribution is subject to the trademark license, especially commercial redistribution.
*** START: FULL LICENSE ***
THE FULL PROJECT GUTENBERG LICENSE
PLEASE READ THIS BEFORE YOU DISTRIBUTE OR USE THIS WORK
To protect the Project Gutenberg-tm mission of promoting the free
distribution of electronic works, by using or distributing this work
(or any other work associated in any way with the phrase "Project
Gutenberg"), you agree to comply with all the terms of the Full Project
Gutenberg-tm License (available with this file or online at
http://www.gutenberg.org/license).
Section 1. General Terms of Use and Redistributing Project Gutenberg-tm
electronic works
1.A. By reading or using any part of this Project Gutenberg-tm
electronic work, you indicate that you have read, understand, agree to
and accept all the terms of this license and intellectual property
(trademark/copyright) agreement. If you do not agree to abide by all
the terms of this agreement, you must cease using and return or destroy
all copies of Project Gutenberg-tm electronic works in your possession.
If you paid a fee for obtaining a copy of or access to a Project
Gutenberg-tm electronic work and you do not agree to be bound by the
terms of this agreement, you may obtain a refund from the person or
entity to whom you paid the fee as set forth in paragraph 1.E.8.
1.B. "Project Gutenberg" is a registered trademark. It may only be
used on or associated in any way with an electronic work by people who
agree to be bound by the terms of this agreement. There are a few
things that you can do with most Project Gutenberg-tm electronic works
even without complying with the full terms of this agreement. See
paragraph 1.C below. There are a lot of things you can do with Project
Gutenberg-tm electronic works if you follow the terms of this agreement
and help preserve free future access to Project Gutenberg-tm electronic
works. See paragraph 1.E below.
1.C. The Project Gutenberg Literary Archive Foundation ("the Foundation"
or PGLAF), owns a compilation copyright in the collection of Project
Gutenberg-tm electronic works. Nearly all the individual works in the
collection are in the public domain in the United States. If an
individual work is in the public domain in the United States and you are
located in the United States, we do not claim a right to prevent you from
copying, distributing, performing, displaying or creating derivative
works based on the work as long as all references to Project Gutenberg
are removed. Of course, we hope that you will support the Project
Gutenberg-tm mission of promoting free access to electronic works by
freely sharing Project Gutenberg-tm works in compliance with the terms of
this agreement for keeping the Project Gutenberg-tm name associated with
the work. You can easily comply with the terms of this agreement by
keeping this work in the same format with its attached full Project
Gutenberg-tm License when you share it without charge with others.
1.D. The copyright laws of the place where you are located also govern
what you can do with this work. Copyright laws in most countries are in
a constant state of change. If you are outside the United States, check
the laws of your country in addition to the terms of this agreement
before downloading, copying, displaying, performing, distributing or
creating derivative works based on this work or any other Project
Gutenberg-tm work. The Foundation makes no representations concerning
the copyright status of any work in any country outside the United
States.
1.E. Unless you have removed all references to Project Gutenberg:
1.E.1. The following sentence, with active links to, or other immediate
access to, the full Project Gutenberg-tm License must appear prominently
whenever any copy of a Project Gutenberg-tm work (any work on which the
phrase "Project Gutenberg" appears, or with which the phrase "Project
Gutenberg" is associated) is accessed, displayed, performed, viewed,
copied or distributed:
This eBook is for the use of anyone anywhere at no cost and with
almost no restrictions whatsoever. You may copy it, give it away or
re-use it under the terms of the Project Gutenberg License included
with this eBook or online at www.gutenberg.org
1.E.2. If an individual Project Gutenberg-tm electronic work is derived
from the public domain (does not contain a notice indicating that it is
posted with permission of the copyright holder), the work can be copied
and distributed to anyone in the United States without paying any fees
or charges. If you are redistributing or providing access to a work
with the phrase "Project Gutenberg" associated with or appearing on the
work, you must comply either with the requirements of paragraphs 1.E.1
through 1.E.7 or obtain permission for the use of the work and the
Project Gutenberg-tm trademark as set forth in paragraphs 1.E.8 or
1.E.9.
1.E.3. If an individual Project Gutenberg-tm electronic work is posted
with the permission of the copyright holder, your use and distribution
must comply with both paragraphs 1.E.1 through 1.E.7 and any additional
terms imposed by the copyright holder. Additional terms will be linked
to the Project Gutenberg-tm License for all works posted with the
permission of the copyright holder found at the beginning of this work.
1.E.4. Do not unlink or detach or remove the full Project Gutenberg-tm
License terms from this work, or any files containing a part of this
work or any other work associated with Project Gutenberg-tm.
1.E.5. Do not copy, display, perform, distribute or redistribute this
electronic work, or any part of this electronic work, without
prominently displaying the sentence set forth in paragraph 1.E.1 with
active links or immediate access to the full terms of the Project
Gutenberg-tm License.
1.E.6. You may convert to and distribute this work in any binary,
compressed, marked up, nonproprietary or proprietary form, including any
word processing or hypertext form. However, if you provide access to or
distribute copies of a Project Gutenberg-tm work in a format other than
"Plain Vanilla ASCII" or other format used in the official version
posted on the official Project Gutenberg-tm web site (www.gutenberg.org),
you must, at no additional cost, fee or expense to the user, provide a
copy, a means of exporting a copy, or a means of obtaining a copy upon
request, of the work in its original "Plain Vanilla ASCII" or other
form. Any alternate format must include the full Project Gutenberg-tm
License as specified in paragraph 1.E.1.
1.E.7. Do not charge a fee for access to, viewing, displaying,
performing, copying or distributing any Project Gutenberg-tm works
unless you comply with paragraph 1.E.8 or 1.E.9.
1.E.8. You may charge a reasonable fee for copies of or providing
access to or distributing Project Gutenberg-tm electronic works provided
that
- You pay a royalty fee of 20% of the gross profits you derive from
the use of Project Gutenberg-tm works calculated using the method
you already use to calculate your applicable taxes. The fee is
owed to the owner of the Project Gutenberg-tm trademark, but he
has agreed to donate royalties under this paragraph to the
Project Gutenberg Literary Archive Foundation. Royalty payments
must be paid within 60 days following each date on which you
prepare (or are legally required to prepare) your periodic tax
returns. Royalty payments should be clearly marked as such and
sent to the Project Gutenberg Literary Archive Foundation at the
address specified in Section 4, "Information about donations to
the Project Gutenberg Literary Archive Foundation."
- You provide a full refund of any money paid by a user who notifies
you in writing (or by e-mail) within 30 days of receipt that s/he
does not agree to the terms of the full Project Gutenberg-tm
License. You must require such a user to return or
destroy all copies of the works possessed in a physical medium
and discontinue all use of and all access to other copies of
Project Gutenberg-tm works.
- You provide, in accordance with paragraph 1.F.3, a full refund of any
money paid for a work or a replacement copy, if a defect in the
electronic work is discovered and reported to you within 90 days
of receipt of the work.
- You comply with all other terms of this agreement for free
distribution of Project Gutenberg-tm works.
1.E.9. If you wish to charge a fee or distribute a Project Gutenberg-tm
electronic work or group of works on different terms than are set
forth in this agreement, you must obtain permission in writing from
both the Project Gutenberg Literary Archive Foundation and Michael
Hart, the owner of the Project Gutenberg-tm trademark. Contact the
Foundation as set forth in Section 3 below.
1.F.
1.F.1. Project Gutenberg volunteers and employees expend considerable
effort to identify, do copyright research on, transcribe and proofread
public domain works in creating the Project Gutenberg-tm
collection. Despite these efforts, Project Gutenberg-tm electronic
works, and the medium on which they may be stored, may contain
"Defects," such as, but not limited to, incomplete, inaccurate or
corrupt data, transcription errors, a copyright or other intellectual
property infringement, a defective or damaged disk or other medium, a
computer virus, or computer codes that damage or cannot be read by
your equipment.
1.F.2. LIMITED WARRANTY, DISCLAIMER OF DAMAGES - Except for the "Right
of Replacement or Refund" described in paragraph 1.F.3, the Project
Gutenberg Literary Archive Foundation, the owner of the Project
Gutenberg-tm trademark, and any other party distributing a Project
Gutenberg-tm electronic work under this agreement, disclaim all
liability to you for damages, costs and expenses, including legal
fees. YOU AGREE THAT YOU HAVE NO REMEDIES FOR NEGLIGENCE, STRICT
LIABILITY, BREACH OF WARRANTY OR BREACH OF CONTRACT EXCEPT THOSE
PROVIDED IN PARAGRAPH F3. YOU AGREE THAT THE FOUNDATION, THE
TRADEMARK OWNER, AND ANY DISTRIBUTOR UNDER THIS AGREEMENT WILL NOT BE
LIABLE TO YOU FOR ACTUAL, DIRECT, INDIRECT, CONSEQUENTIAL, PUNITIVE OR
INCIDENTAL DAMAGES EVEN IF YOU GIVE NOTICE OF THE POSSIBILITY OF SUCH
DAMAGE.
1.F.3. LIMITED RIGHT OF REPLACEMENT OR REFUND - If you discover a
defect in this electronic work within 90 days of receiving it, you can
receive a refund of the money (if any) you paid for it by sending a
written explanation to the person you received the work from. If you
received the work on a physical medium, you must return the medium with
your written explanation. The person or entity that provided you with
the defective work may elect to provide a replacement copy in lieu of a
refund. If you received the work electronically, the person or entity
providing it to you may choose to give you a second opportunity to
receive the work electronically in lieu of a refund. If the second copy
is also defective, you may demand a refund in writing without further
opportunities to fix the problem.
1.F.4. Except for the limited right of replacement or refund set forth
in paragraph 1.F.3, this work is provided to you 'AS-IS,' WITH NO OTHER
WARRANTIES OF ANY KIND, EXPRESS OR IMPLIED, INCLUDING BUT NOT LIMITED TO
WARRANTIES OF MERCHANTIBILITY OR FITNESS FOR ANY PURPOSE.
1.F.5. Some states do not allow disclaimers of certain implied
warranties or the exclusion or limitation of certain types of damages.
If any disclaimer or limitation set forth in this agreement violates the
law of the state applicable to this agreement, the agreement shall be
interpreted to make the maximum disclaimer or limitation permitted by
the applicable state law. The invalidity or unenforceability of any
provision of this agreement shall not void the remaining provisions.
1.F.6. INDEMNITY - You agree to indemnify and hold the Foundation, the
trademark owner, any agent or employee of the Foundation, anyone
providing copies of Project Gutenberg-tm electronic works in accordance
with this agreement, and any volunteers associated with the production,
promotion and distribution of Project Gutenberg-tm electronic works,
harmless from all liability, costs and expenses, including legal fees,
that arise directly or indirectly from any of the following which you do
or cause to occur: (a) distribution of this or any Project Gutenberg-tm
work, (b) alteration, modification, or additions or deletions to any
Project Gutenberg-tm work, and (c) any Defect you cause.
Section 2. Information about the Mission of Project Gutenberg-tm
Project Gutenberg-tm is synonymous with the free distribution of
electronic works in formats readable by the widest variety of computers
including obsolete, old, middle-aged and new computers. It exists
because of the efforts of hundreds of volunteers and donations from
people in all walks of life.
Volunteers and financial support to provide volunteers with the
assistance they need, is critical to reaching Project Gutenberg-tm's
goals and ensuring that the Project Gutenberg-tm collection will
remain freely available for generations to come. In 2001, the Project
Gutenberg Literary Archive Foundation was created to provide a secure
and permanent future for Project Gutenberg-tm and future generations.
To learn more about the Project Gutenberg Literary Archive Foundation
and how your efforts and donations can help, see Sections 3 and 4
and the Foundation web page at http://www.gutenberg.org/fundraising/pglaf.
Section 3. Information about the Project Gutenberg Literary Archive
Foundation
The Project Gutenberg Literary Archive Foundation is a non profit
501(c)(3) educational corporation organized under the laws of the
state of Mississippi and granted tax exempt status by the Internal
Revenue Service. The Foundation's EIN or federal tax identification
number is 64-6221541. Contributions to the Project Gutenberg
Literary Archive Foundation are tax deductible to the full extent
permitted by U.S. federal laws and your state's laws.
The Foundation's principal office is located at 4557 Melan Dr. S.
Fairbanks, AK, 99712., but its volunteers and employees are scattered
throughout numerous locations. Its business office is located at
809 North 1500 West, Salt Lake City, UT 84116, (801) 596-1887, email
business@pglaf.org. Email contact links and up to date contact
information can be found at the Foundation's web site and official
page at http://www.gutenberg.org/about/contact
For additional contact information:
Dr. Gregory B. Newby
Chief Executive and Director
gbnewby@pglaf.org
Section 4. Information about Donations to the Project Gutenberg
Literary Archive Foundation
Project Gutenberg-tm depends upon and cannot survive without wide
spread public support and donations to carry out its mission of
increasing the number of public domain and licensed works that can be
freely distributed in machine readable form accessible by the widest
array of equipment including outdated equipment. Many small donations
($1 to $5,000) are particularly important to maintaining tax exempt
status with the IRS.
The Foundation is committed to complying with the laws regulating
charities and charitable donations in all 50 states of the United
States. Compliance requirements are not uniform and it takes a
considerable effort, much paperwork and many fees to meet and keep up
with these requirements. We do not solicit donations in locations
where we have not received written confirmation of compliance. To
SEND DONATIONS or determine the status of compliance for any
particular state visit http://www.gutenberg.org/fundraising/pglaf
While we cannot and do not solicit contributions from states where we
have not met the solicitation requirements, we know of no prohibition
against accepting unsolicited donations from donors in such states who
approach us with offers to donate.
International donations are gratefully accepted, but we cannot make
any statements concerning tax treatment of donations received from
outside the United States. U.S. laws alone swamp our small staff.
Please check the Project Gutenberg Web pages for current donation
methods and addresses. Donations are accepted in a number of other
ways including checks, online payments and credit card donations.
To donate, please visit: http://www.gutenberg.org/fundraising/donate
Section 5. General Information About Project Gutenberg-tm electronic
works.
Professor Michael S. Hart is the originator of the Project Gutenberg-tm
concept of a library of electronic works that could be freely shared
with anyone. For thirty years, he produced and distributed Project
Gutenberg-tm eBooks with only a loose network of volunteer support.
Project Gutenberg-tm eBooks are often created from several printed
editions, all of which are confirmed as Public Domain in the U.S.
unless a copyright notice is included. Thus, we do not necessarily
keep eBooks in compliance with any particular paper edition.
Each eBook is in a subdirectory of the same number as the eBook's
eBook number, often in several formats including plain vanilla ASCII,
compressed (zipped), HTML and others.
Corrected EDITIONS of our eBooks replace the old file and take over
the old filename and etext number. The replaced older file is renamed.
VERSIONS based on separate sources are treated as new eBooks receiving
new filenames and etext numbers.
Most people start at our Web site which has the main PG search facility:
http://www.gutenberg.org
This Web site includes information about Project Gutenberg-tm,
including how to make donations to the Project Gutenberg Literary
Archive Foundation, how to help produce our new eBooks, and how to
subscribe to our email newsletter to hear about new eBooks.
EBooks posted prior to November 2003, with eBook numbers BELOW #10000,
are filed in directories based on their release date. If you want to
download any of these eBooks directly, rather than using the regular
search system you may utilize the following addresses and just
download by the etext year.
http://www.gutenberg.org/dirs/etext06/
(Or /etext 05, 04, 03, 02, 01, 00, 99,
98, 97, 96, 95, 94, 93, 92, 92, 91 or 90)
EBooks posted since November 2003, with etext numbers OVER #10000, are
filed in a different way. The year of a release date is no longer part
of the directory path. The path is based on the etext number (which is
identical to the filename). The path to the file is made up of single
digits corresponding to all but the last digit in the filename. For
example an eBook of filename 10234 would be found at:
http://www.gutenberg.org/dirs/1/0/2/3/10234
or filename 24689 would be found at:
http://www.gutenberg.org/dirs/2/4/6/8/24689
An alternative method of locating eBooks:
http://www.gutenberg.org/dirs/GUTINDEX.ALL
*** END: FULL LICENSE ***