SIEMENS NIXDORF

H351

Device Type

Internal CD-ROM

Interface

ATAPI

Spin Rate (Read)

16x

Formats Supported Read

CD-XA, CD-DA, CD-R, CD-I, CD-ROM (Mode 1 & Mode 2), Photo-CD, Video CD, CD-Plus

View

Top

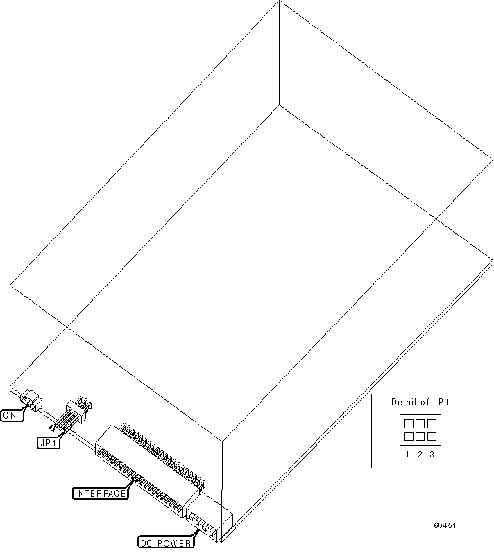
CONNECTIONS

Function

Label

Digital audio line out

CN1

ATAPI MASTER/SLAVE

Setting

JP1/1

JP1/2

JP1/3

Single drive only/Master in two drive system

Open

Open

Closed

Slave in two drive system

Open

Closed

Open

Master/slave determined by cable select

Closed

Open

Open