ACER

CRW622

Device Type

Internal CD-ROM

Interface

ATAPI

Spin Rate (Read/Write)

2x Write, 6x Read

Formats Supported Read

CD-XA, CD-DA, CD-I, Photo-CD, CD-Extra

Formats Supported Write

CD-DA, CD-I, Photo-CD, CD-Extra

View

Top

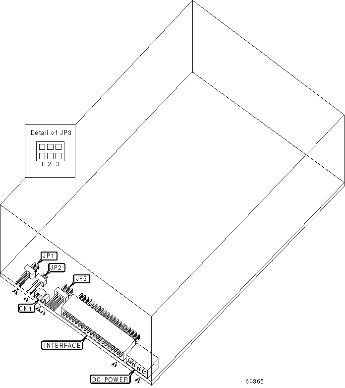
CONNECTIONS

Function

Label

Audio line out

CN1

USER CONFIGURABLE SETTINGS

Setting

Label

Position

»

Factory configured - do not alter

JP1

Unidentified

»

Factory configured - do not alter

JP2

Unidentified

ATAPI MASTER/SLAVE

Setting

JP3/1

JP3/2

JP3/3

Master/Slave determined by Cable Select

Closed

Open

Open

Single drive only

Open

Open

Closed

Master in two drive system

Open

Open

Closed

Slave in two drive system

Open

Closed

Open