STANDARD MICROSYSTEMS CORPORATION
ARCNET PC130
|
NIC Type |
ARCnet |
|
Transfer Rate |
2.5Mbps |
|
Data Bus |
8-bit ISA |
|
Topology |
Star |
|
Wiring Type |
RG-62A/U 93ohm coaxial |
|
Boot ROM |
Available |
|
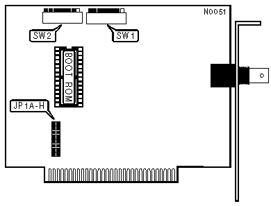
NODE ADDRESS | ||||||||
|
Node |
SW1/1 |
SW1/2 |
SW1/3 |
SW1/4 |
SW1/5 |
SW1/6 |
SW1/7 |
SW1/8 |
|
0 |
- |
- |
- |
- |
- |
- |
- |
- |
|
1 |
Off |
On |
On |
On |
On |
On |
On |
On |
|
2 |
On |
Off |
On |
On |
On |
On |
On |
On |
|
3 |
Off |
Off |
On |
On |
On |
On |
On |
On |
|
4 |
On |
On |
Off |
On |
On |
On |
On |
On |
|
251 |
Off |
Off |
On |
Off |
Off |
Off |
Off |
Off |
|
252 |
On |
On |
Off |
Off |
Off |
Off |
Off |
Off |
|
253 |
Off |
On |
Off |
Off |
Off |
Off |
Off |
Off |
|
254 |
On |
Off |
Off |
Off |
Off |
Off |
Off |
Off |
|
255 |
Off |
Off |
Off |
Off |
Off |
Off |
Off |
Off |
|
Note:Node address 0 is used for messaging between nodes and must not be used. A total of 255 node address settings are available. The switches are a binary representation of the decimal node addresses. Switch 1 is the Least Significant Bit and switch 8 is the Most Significant Bit. The switches have the following decimal values: switch 1=1, 2=2, 3=4, 4=8, 5=16, 6=32, 7=64, 8=128. Turn off the switches and add the values of the off switches to obtain the correct node address. (On=0, Off=1) | ||||||||
|
TIMEOUT CONFIGURATION | |||||
|
Response Time |
Idle Time |
Reconfig. Time |
JP1A |
JP1B | |
| » |
1190µs |
1237µs |
1680ms |
Open |
Open |
|
563µs |
624µs |
1680ms |
Closed |
Open | |
|
285µs |
316µs |
1680ms |
Open |
Closed | |
|
78µs |
86µs |
840ms |
Closed |
Closed | |
|
BOOT ROM | ||
|
Setting |
JP1C | |
| » |
Disabled |
Open |
|
Enabled |
Closed | |
|
INTERRUPT REQUEST | |||||
|
IRQ |
JP1D |
JP1E |
JP1F |
JP1G |
JP1H |
|
2 |
Open |
Open |
Open |
Open |
Closed |
|
3 |
Open |
Open |
Open |
Closed |
Open |
|
4 |
Open |
Open |
Closed |
Open |
Open |
|
5 |
Open |
Closed |
Open |
Open |
Open |
|
7 |
Closed |
Open |
Open |
Open |
Open |
|
I/O BASE ADDRESS | |||
|
Address |
SW2/1 |
SW2/2 |
SW2/3 |
|
260h |
On |
On |
On |
|
290h |
On |
On |
Off |
|
2E0h |
On |
Off |
On |
|
2F0h |
On |
Off |
Off |
|
300h |
Off |
On |
On |
|
350h |
Off |
On |
Off |
|
380h |
Off |
Off |
On |
|
3E0h |
Off |
Off |
Off |
|
BASE MEMORY ADDRESS & BOOT ROM ADDRESS | |||||||
|
Base Address |
Boot ROM Address |
SW2/4 |
SW2/5 |
SW2/6 |
SW2/7 |
SW2/8 | |
| » |
D0000 - D07FFh |
D2000 - D3FFFh |
On |
Off |
Off |
On |
On |
|
C0000 - C07FFh |
C2000 - C3FFFh |
On |
On |
On |
On |
On | |
|
C0800 - C0FFFh |
C2000 - C3FFFh |
On |
On |
On |
On |
Off | |
|
C1000 - C17FFh |
C2000 - C3FFFh |
On |
On |
On |
Off |
On | |
|
C1800 - C1FFFh |
C2000 - C3FFFh |
On |
On |
On |
Off |
Off | |
|
C4000 - C47FFh |
C6000 - C7FFFh |
On |
On |
Off |
On |
On | |
|
C4800 - C4FFFh |
C6000 - C7FFFh |
On |
On |
Off |
On |
Off | |
|
C5000 - C57FFh |
C6000 - C7FFFh |
On |
On |
Off |
Off |
On | |
|
C5800 - C5FFFh |
C6000 - C7FFFh |
On |
On |
Off |
Off |
Off | |
|
CC000 - CC7FFh |
CE000 - CFFFFh |
On |
Off |
On |
On |
On | |
|
CC800 - CCFFFh |
CE000 - CFFFFh |
On |
Off |
On |
On |
Off | |
|
CD000 - CD7FFh |
CE000 - CFFFFh |
On |
Off |
On |
Off |
On | |
|
CD800 - CDFFFh |
CE000 - CFFFFh |
On |
Off |
On |
Off |
Off | |
|
D0800 - D0FFFh |
D2000 - D3FFFh |
On |
Off |
Off |
On |
Off | |
|
D1000 - D17FFh |
D2000 - D3FFFh |
On |
Off |
Off |
Off |
On | |
|
D1800 - D1FFFh |
D2000 - D3FFFh |
On |
Off |
Off |
Off |
Off | |
|
D4000 - D47FFh |
D6000 - D7FFFh |
Off |
On |
On |
On |
On | |
|
D4800 - D4FFFh |
D6000 - D7FFFh |
Off |
On |
On |
On |
Off | |
|
D5000 - D57FFh |
D6000 - D7FFFh |
Off |
On |
On |
Off |
On | |
|
D5800 - D5FFFh |
D6000 - D7FFFh |
Off |
On |
On |
Off |
Off | |
|
D8000 - D87FFh |
DA000 - DBFFFh |
Off |
On |
Off |
On |
On | |
|
D8800 - D8FFFh |
DA000 - DBFFFh |
Off |
On |
Off |
On |
Off | |
|
D9000 - D97FFh |
DA000 - DBFFFh |
Off |
On |
Off |
Off |
On | |
|
D9800 - D9FFFh |
DA000 - DBFFFh |
Off |
On |
Off |
Off |
Off | |
|
DC000 - DC7FFh |
DE000 - DFFFFh |
Off |
Off |
On |
On |
On | |
|
DC800 - DCFFFh |
DE000 - DFFFFh |
Off |
Off |
On |
On |
Off | |
|
DD000 - DD7FFh |
DE000 - DFFFFh |
Off |
Off |
On |
Off |
On | |
|
DD800 - DDFFFh |
DE000 - DFFFFh |
Off |
Off |
On |
Off |
Off | |
|
E0000 - E07FFh |
E2000 - E2FFFh |
Off |
Off |
Off |
On |
On | |
|
E0800 - E0FFFh |
E2000 - E2FFFh |
Off |
Off |
Off |
On |
Off | |
|
E1000 - E17FFh |
E2000 - E2FFFh |
Off |
Off |
Off |
Off |
On | |
|
E1800 - E1FFFh |
E2000 - E2FFFh |
Off |
Off |
Off |
Off |
Off | |