OLIVETTI
M300-02 (BA013)
M300-02F (BA013)
|
Processor |
80386SX |
|
Processor Speed |
16MHz (M300-02) 25MHz (M300-02F) |
|
Chip Set |
Unidentified |
|
Video Chip Set |
Western Digital |
|
Maximum Onboard Memory |
10MB |
|
Maximum Video Memory |
Unidentified |
|
Cache |
None |
|
BIOS |
Unidentified |
|
Dimensions |
254mm x 218mm |
|
I/O Options |
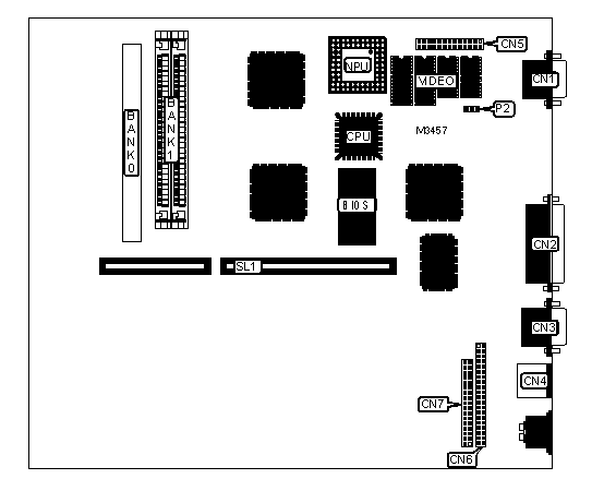
Floppy drive interface, IDE interface, parallel port, PS/2 mouse port, serial port, feature connector, VGA port, riser slot |
|
NPU Options |
80387SX |
|
CONNECTIONS | |||
|
Purpose |
Location |
Purpose |
Location |
|
VGA port |
CN1 |
Feature connector |
CN5 |
|
Parallel port |
CN2 |
IDE interface |
CN6 |
|
Serial port |
CN3 |
Floppy drive interface |
CN7 |
|
PS/2 mouse port |
CN4 |
Riser slot |
SL1 |
|
USER CONFIGURABLE SETTINGS | |||
|
Function |
Label |
Position | |
|
Password enabled |
P2 |
Pins 2 & 3 closed | |
|
Password disabled |
P2 |
Pins 1 & 2 closed | |
|
DRAM CONFIGURATION | ||
|
Size |
Bank 0 |
Bank 1 |
|
2MB |
2MB |
None |
|
4MB |
2MB |
(2) 1M x 9 |
|
10MB |
2MB |
(2) 4M x 9 |
|
Note: Bank 0 is factory installed and is not configurable. | ||
|
VIDEO MEMORY CONFIGURATION |
|
Note: The size and chip type of the video memory is unidentified. |
|
CONNECTIONS | |
|
Purpose |
Location |
|
Console connector |
P3 |
|
USER CONFIGURABLE SETTINGS | |||
|
Function |
Label |
Position | |
|
Battery installed |
P1 |
Closed | |
|
Battery not installed |
P1 |
Open | |